|
关注东余 掌握全案设计逻辑 项目类型:大平层 项目面积:136㎡ 项目坐标:四川
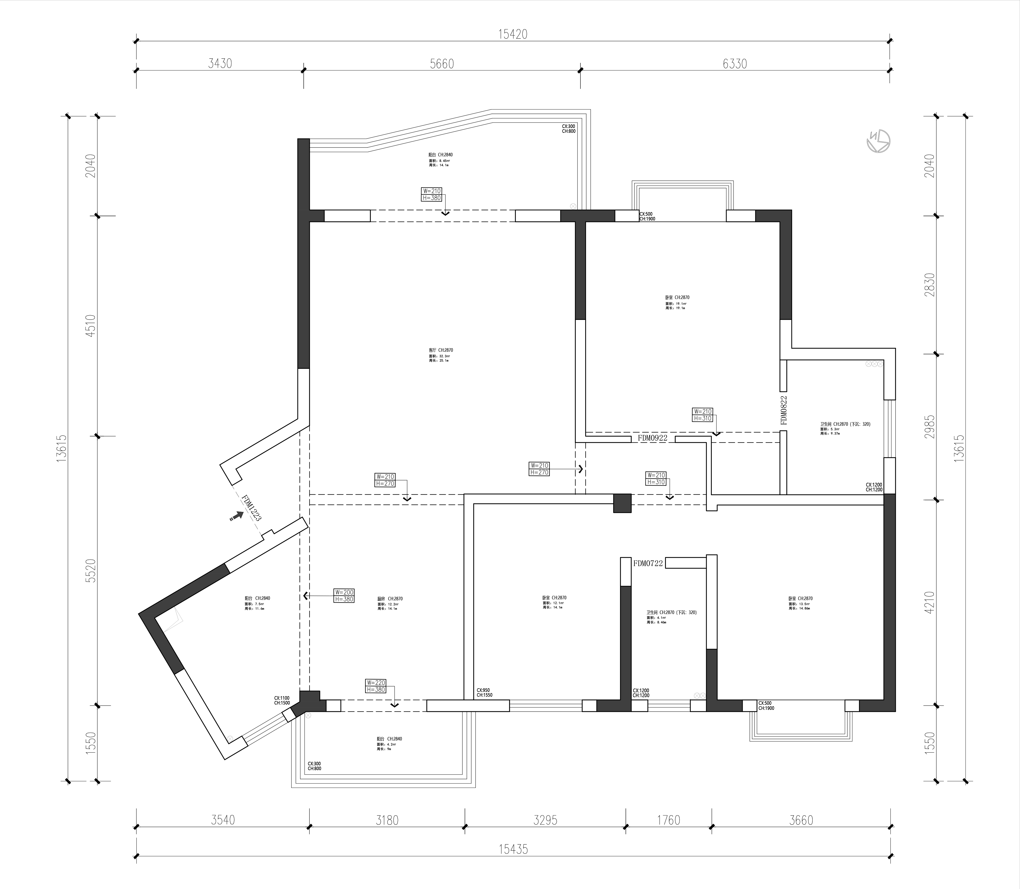
优化设计:东余户型优化 原始结构图
基本情况和设计需求 基本情况 1.家庭常住成员:3口人(夫妻2人和1个孩子) 2.孩子目前一年级 3.装修预算50万 设计需求 1.弱化异形的结构感、让空间好用 2.需要一个书房空间(并且满足偶尔睡眠使用) 3.餐厅需要6人桌、不考虑4人桌 4.书房空间希望可开可合即满足办公又满足偶尔的睡眠使用 5.客厅需要方正、给人感受开阔明亮 6.阳台需要考虑一些绿植 7.儿童房需要有书桌满足未来学习、储物希望能多一点 8.主卧需要套房空间并且卫生间淋浴房需要独立、同时内部有储物 手绘思路
平面方案布置图
关注东余、服务全国设计师! 东余业务合作 1、高定户型优化合作 2、SU模型表达 3、全案设计课程 超高性价比、值得你拥有! 联系我:DYDD-001 官方公众号:东余方案设计(关注官方公众号 了解最多项目完整动态) 本文以及方案均为东余原创 已申请原创保护 转载注明出处! |
精华推荐
换一换



发表评论0