| 用浅色系,打造一个会呼吸的家! | 个性设计,让梦想照进装修,致力于将专业设计、施工执行、产品配套服务给广大业主。 ——文青设计 今日主人公是一对住在杭州的夫妻。两人都就职于航空公司,工作性质决定了高频率的出差,而且他们对声音和光都比较敏感,所以设计之初,夫妻俩就指出了重点:需要安静的空间,来保证充足的睡眠时间。 关于风格,大家最终定在轻法式,全屋以明亮温柔的奶白色打底,选用简洁而灵动的艺术造型软装和家具,不做过多装饰,也能打造超高颜值。 三室两厅一厨两位的130㎡原户型,各功能区都算齐整且分布合理。主要问题在于,次卧算上开发商送的面积,整体面积算下来比主卧还要大,且主卧又因为自带生活阳台,噪声较大,于是设计师决定将主次卧对调,让父母卧室有了阳光充足的生活阳台,夫妻俩的卧室又能新增一个超大的衣帽间。 玄关
入户设置双开门,推门而入的动作,赋予“回家”这个词满满的仪式感。奶白与阳光交错散发出来的温柔,顺着地板拼接纹理的纹理蔓延,家的气息慢慢渗透进室内的每一个角落。
进门右手边定制整面的收纳柜,形成额外拥有11个平方的储物室,夫妻俩出差使用的行李箱,或是不美观的大件家政用品,都可以拥有足够的“藏身”空间。 厨房 厨房入口用长虹玻璃门隔绝油烟,黑色地柜与冰箱经典大气,墙面的裂纹砖则彰显着空间的特立独行。 餐厅
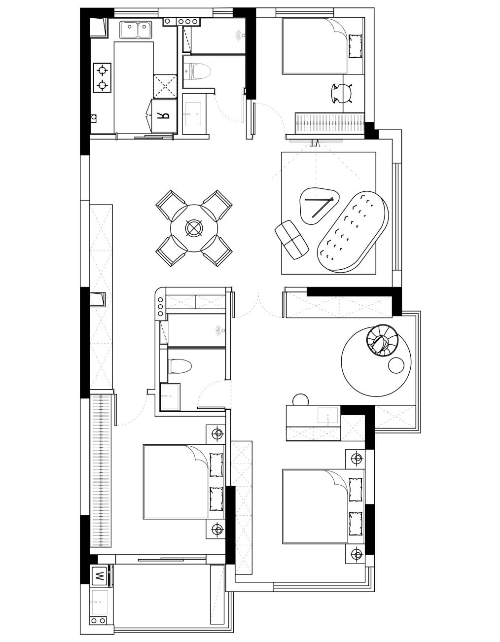
餐厅新砌薄墙设置餐边收纳柜,也作为公共空间的水吧区。为营造统一性,大到餐桌的材质样式,小到柜子上的饰品色系,每一件都经过了精心挑选。 三张样式各异的餐椅彰显着个性与品味,仿佛每个家庭成员都拥有专属的座位。 餐厅看向客厅的视角,餐椅纤细的框架增加了通透感,艺术感十足的吊灯散发着暖色的光,给就餐空间营造放松、温柔氛围。 由玄关延伸至餐区的整墙收纳柜,采用极简的纯白色,视觉上不显过满,柜门自带的纹理从细节上起到装饰作用。 客厅 客厅区域舍弃了繁杂的装饰设计,两侧背景大面积留白,融合开放空间,没有掺杂任何多余的色彩,而是运用材质本身的凹凸来营造层次感。 圆弧形多人沙发与懒人沙发随意摆放,灵活的小推车充当茶几功能,闲暇时慵懒地窝进沙发或盘坐于地毯,随手从小推车取放茶水与书籍。 没有花哨装饰,也能美得挪不开眼,这个“轻法式”之家的装修智慧,相信一定会对你有所启示。 颜值极高的单品随意装饰角落,画框电视、复古音响,在极简的硬装中,锦上添花的软装也应当更简洁克制。 无主灯设计呼应了整体简洁的设计语言,角落的落地灯、天花不起眼的射灯,在夜晚以更均匀的光源,实现宁静与放松。 家中每个角落都精心设计,阳光被纱帘过滤出温柔的面孔,随手一拍都很出片。 为了弱化干区门框的存在感,特意采用弧形门洞来柔和视线。 采用背景墙同款材质装饰两侧房门,让原本突兀的门体化身为整体的一部分。 主卧 一组充满仪式感的双开门,将主卧与外侧的活动区隔离开来。 原户型的主次卧室对调之后,使得现在的主卧拥有大面积的衣帽间。 将女主人的化妆区独立开来,一是为了更多的储物空间,二是梳妆打扮时可以不打扰休息的家人。 在纯净的奶白中选用大反差的黑色,让空间有了视觉重心,也替代了传统床头。 不规则排列的线条感,将原本低矮的层高从视觉上放大,也能打消深色带来的厚重感。 主卫 主卫延续卧室的基调,采用深色立面,同时搭配浓郁法式复古的五金,让每日洗漱都充满仪式感。 次卧 原本带有良好采光阳台的次卧,如今作为给父母使用的房间。木质、棉麻带来自在,软包床头舒适十足。 儿童房 儿童房一改“鲜艳活泼”的传统印象,采用复古壁纸、藤编元素、奶白基调,这些经典元素可以更久地伴随孩子的成长。 公卫 穿过拱门即是公卫干区,花色半墙、黑框玻璃门与白纱帘,让这方小小的角落也颜值爆表。 平面布置图
把家设计成自己喜欢的模样,大概是人生最幸福的事情之一吧。家,作为长久陪伴我们的温暖容器,提醒我们热爱生活、感受细小的点滴,人生中的阴晴雨雪、时光流转,都会是我们的专属记忆。 房屋信息 项目地址:浙江 杭州 使用面积:120㎡ 项目花费:50w 设计机构:文青设计 |
精华推荐
换一换




发表评论0