求大神指点不足之处,优化一下~

2025-10-11/ 户型方案/ 户型交流/ 只看大图 阅读模式
仅供分享不做任何商业用途,版权归原作者所有,谢谢配合。

马上注册,结交更多好友,享用更多功能,让你轻松玩转社区。

您需要 登录 才可以下载或查看,没有帐号? 注册

x
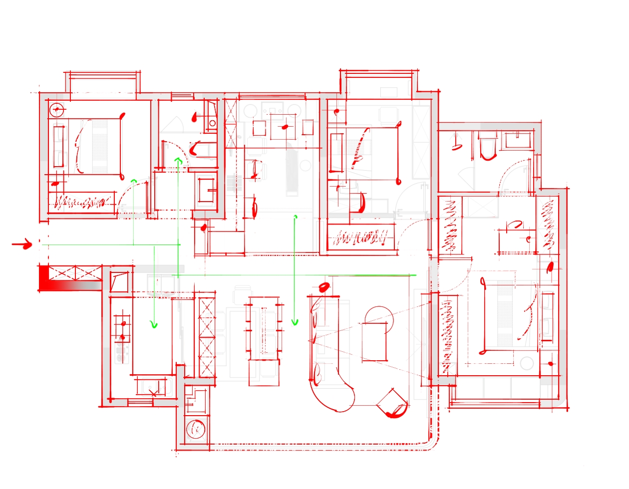
需求:1.各房间规划已在图上标明。
          2.每个卧室带有飘窗,结合不同房间功能优化飘窗设计。
          3.书房不封,做开放式,和客厅形成一个大空间,兼顾办公和聊天喝茶,古筝功能。
      

微改户型

微改户型

原始户型

原始户型

 

基础户型-模型.pdf

19.99 KB, 下载次数: 47

房间布局 -模型.pdf

81.52 KB, 下载次数: 37

标签: 意式轻奢
精华推荐
换一换

发表评论1

求大神指点不足之处,优化一下~
拓者推荐
  • 重庆站】精工课(5月27-28日)
  • 郝泽伟设计工作室 | 《木朴》
  • 会讲方案的设计师,行走的印钞机
  • CCD·艺澍家|上海·甘云间!
  • 王小锋 | 1006㎡泉州建发缙湖别墅!
  • CCD-华润 CCBD 889㎡设计方案
  • 【召禾设计]天际江景超大平层方案
  • 【WSD世尊】建发·云启玉诸
  • CCD-华润玺宸上院中叠样板间
  • CCD-武汉绿城外滩玫瑰园别墅
  • 2025拓者年费+案例Vip会员说明!
  • 【 拓者年费--CAD图纸】
  • 【 拓者年费--户型方案】
  • 【 拓者年费--豪宅视频】
  • 【 拓者年费--灵感图库】