本帖最后由 青山周平 于 2025-10-12 19:23 编辑
△ 建筑立面效果图
△ 公区与室内效果图 项目位于广州中旅九龙湖阿那亚,作为图书品牌naive理想国打造的精品酒店,集合了书店、餐饮、住宿功能为一体。建筑场地选址在河岸边,背靠小镇,既贴近自然生态,又富有生活与人文气息。
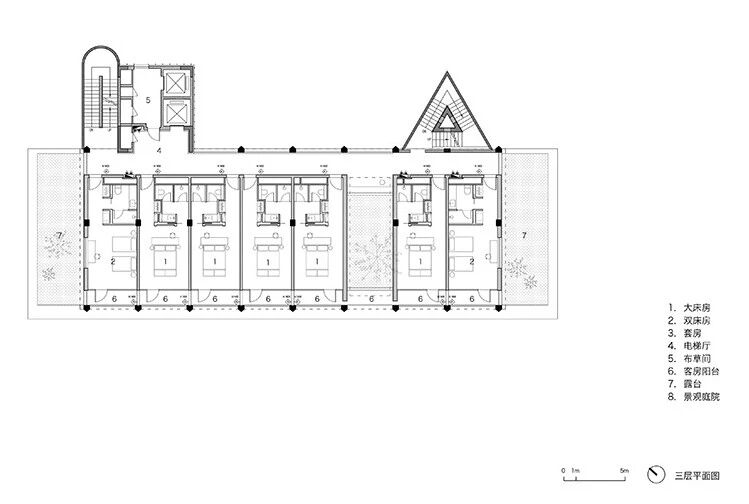
△ 场地环境实景图 建筑共分为四层,首层是公共的书店和餐厅,二至四层为酒店客房。整体由四个堆叠的体块组成,随着楼层的增加,体积逐渐减小,呈现出富有力量感的阶梯式造型,如同一座层层堆叠的“书山”,体现了特色酒店的阅读主题。 作为地块中最靠近岸边的建筑,退台的设计也从视觉上消解了建筑体量,减少压迫感,形成宜人的尺度。晴天时,建筑与水中的倒影相映成趣,增添了一份柔美与灵动,与环境形成对话。
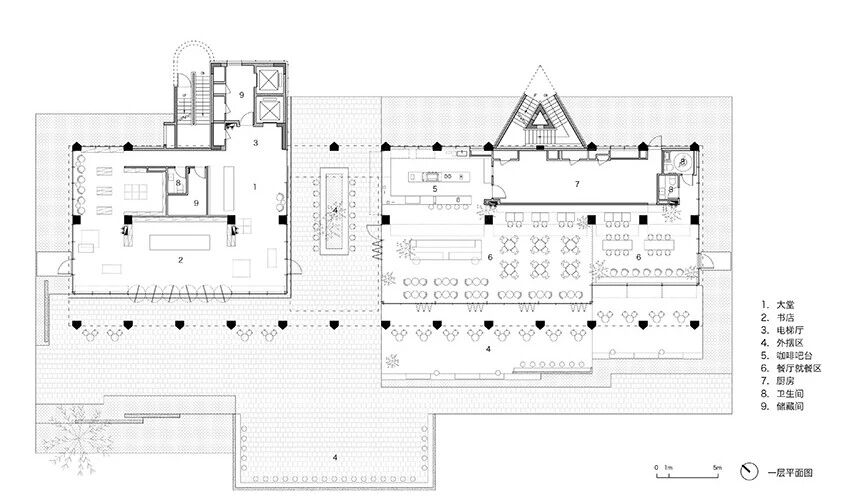
△ 在建中的“书山”建筑 立面形象以结构为造型的核心,设计选择将外围结构体系的梁、板、柱直接暴露。建筑外形直接体现内在建造逻辑,去除多余的装饰,真实呈现结构与材料,传达原始本真的设计理念。多边形立柱形成连续柱廊,简洁有序,赋予建筑典雅的雕塑感,同时通透轻盈,模糊室内外边界,最大限度保证建筑平立面的开放自由。 △ 立面效果图 △ 施工中的建筑立面 在建筑的首层和三层分别有两个挑高的半室外中庭。一层的架空中庭一面正对观景平台打开,另一面连接商业街区,成为建筑首层的空间枢纽,增强公共属性,消解封闭感,使建筑以开放姿态容纳各方来客。庭院中心设有可围坐的花池,分隔书店与餐厅,同时通过人的活动成为空间过渡与连接,使室内外相互融合。 △ 一层平面图 △ 咖啡厅架外空入口效果图 △ 大堂入口效果图 三层中庭为绿植庭院,在整齐排列的客房间引入自然光和大树,让自然景观贯穿建筑。两个挑空庭院不仅增强了建筑空间与人的互动,也打破了立面重复的韵律,形成空间的变奏,穿透的视线赋予建筑立面“呼吸感”。 △ 三层平面图 △ 退台与中庭空间效果图 △ 建筑立面效果图 在设计时,我们充分考虑了在地性的表达。首层屋檐和廊柱让人联想到广州的骑楼。骑楼作为典型的外廊式建筑,具有“上楼下廊”的特点,上层居住,一层商业店铺依托敞开廊道,穿行其中,满是商业活动和生活气息,而骑楼也成为了广州的文化名片。 △ 施工中的廊道空间 项目也使用了相似的空间构成逻辑。首层的对外商业空间,包括酒店大堂、书店、咖啡吧及餐厅都排布在柱廊之下,避风雨、防日晒,为人们提供舒适的穿行和停留空间。立面设计了大量可整体打开的折叠门窗,进一步模糊室内外的界限。 △ 大堂效果图 △ 餐厅效果图 △ 书店效果图 架空走廊上方的楼层在柱间分隔出18间面向河景的观景客房,让客人与河景直接对话,俯瞰对岸和河流景观。层层退后的造型为每间客房创造出屋檐下的阳台,即使在广州炎热的夏天也能获得一丝清凉。柱廊作为建筑的第二层表皮,一定程度遮挡了河对岸视线,为客房提供了足够的隐私。 方案在岭南传统建筑的基因中,创造出当代立面表情,承载了丰富的现代生活活动,以当代手法呼应当地历史文脉。” △ 大床房效果图 △ 双床房效果图 △ 套房客厅效果图 △ 套房卧室效果图 在材料方面,整个建筑的结构主体采用红色混凝土。清水混凝土一次浇注成型的天然质感呈现出自然纯粹的特质,顺应整体建筑追求真实质朴的设计逻辑和语言,赋予建筑清雅厚重的美感。乱纹红铜板与红色混凝土搭配,运用于室外疏散楼梯和核心筒外立面。金属的精致与混凝土的粗野温润,对比中加强了立面的层次感。明快的色调也让建筑从青山绿水之间跳脱出来,带来活力和愉悦的度假氛围。 △ 施工中的红色混凝土立面材质 △ 施工中的一层挑空区 设计图纸 △ 二层平面图 △ 四层平面图 △ 屋面层平面图 完整项目信息 项目名称 | 广州阿那亚理想国酒店 项目地点 | 广州市花都区九龙湖度假区 项目类型 | 酒店 建筑师 | 青山周平、藤井洋子、刘凌子、王嘉慧、冯蕾、陈璐、杨易欣、张昕翌 业主 | 中旅集团 建筑面积 | 2600平方米 设计周期 | 2022年1月—2024年7月 施工周期 | 2023年2月—今 主要材料 | 彩色混凝土、红铜板、肌理涂料 效果图 | B.L.U.E.建筑设计事务所 施工摄影 | DONG建筑影像 |
精华推荐
换一换


发表评论0