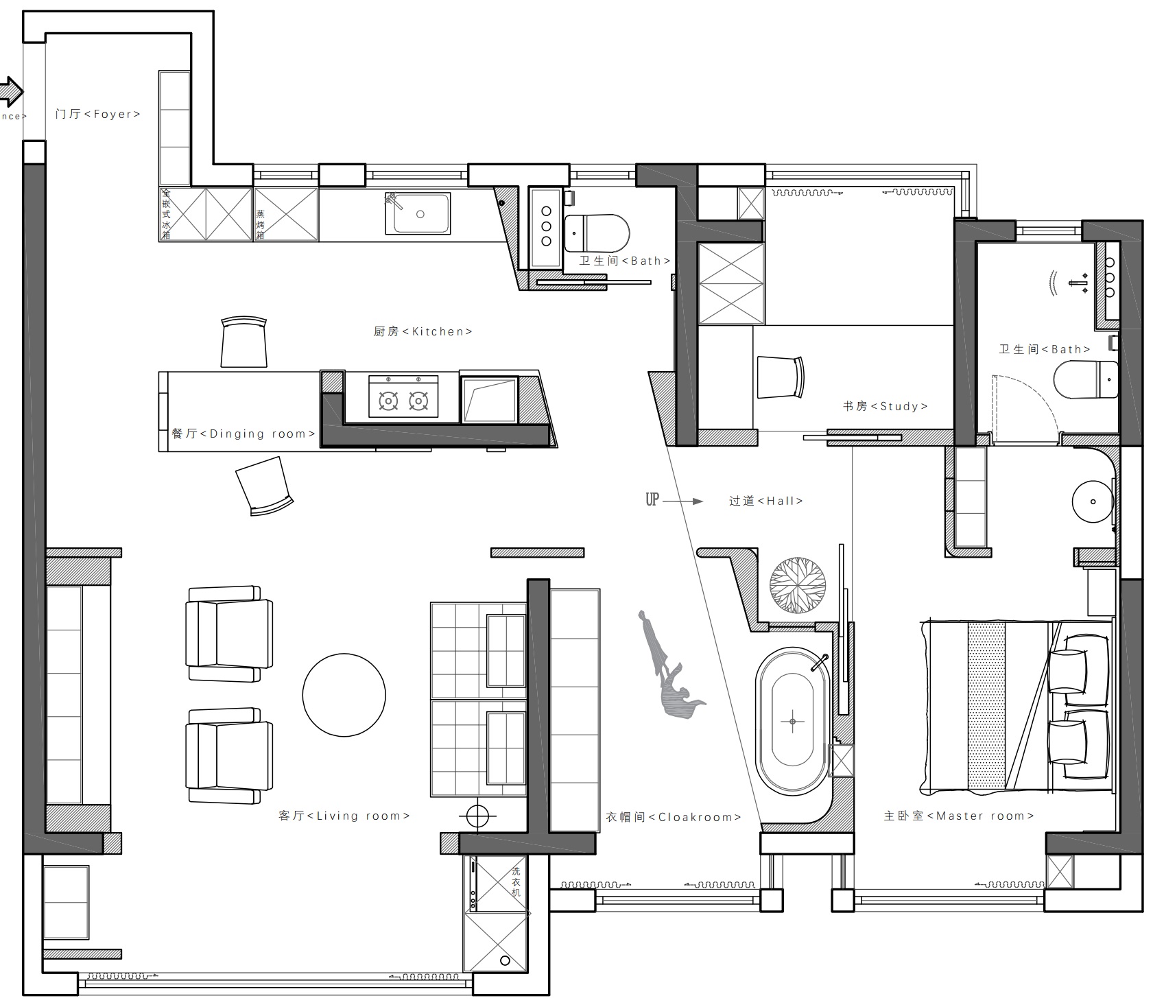
南京 / 先峰住宅 设计之初 提出“未来”“自然”“持久”“诗性”四个要素 所以在内部 整个住宅结构体块都是外露和无装饰 从公共到私密空间都采用统一色调 共同目标是通过凝聚和简化来重新定义住宅内现有空间 打破以前所有生活区域聚集的底层逻辑 拆解物理边界 引入原始几何图形体现自然风貌 创造一个循环开放的生活空间
设计出品:邸岸空间建筑设计 项目地址:南京 项目面积:120㎡ 项目类型:住 宅 摄影:郑 昊 |
精华推荐
换一换




发表评论0