CAD施工图+高清效果图【社区活动中心】包头万科北区邻里中心售楼处

2025-10-17/ CAD图纸/ 售楼处/ 只看大图 阅读模式
仅供分享不做任何商业用途,版权归原作者所有,谢谢配合。

马上注册,结交更多好友,享用更多功能,让你轻松玩转社区。

您需要 登录 才可以下载或查看,没有帐号?注册

x
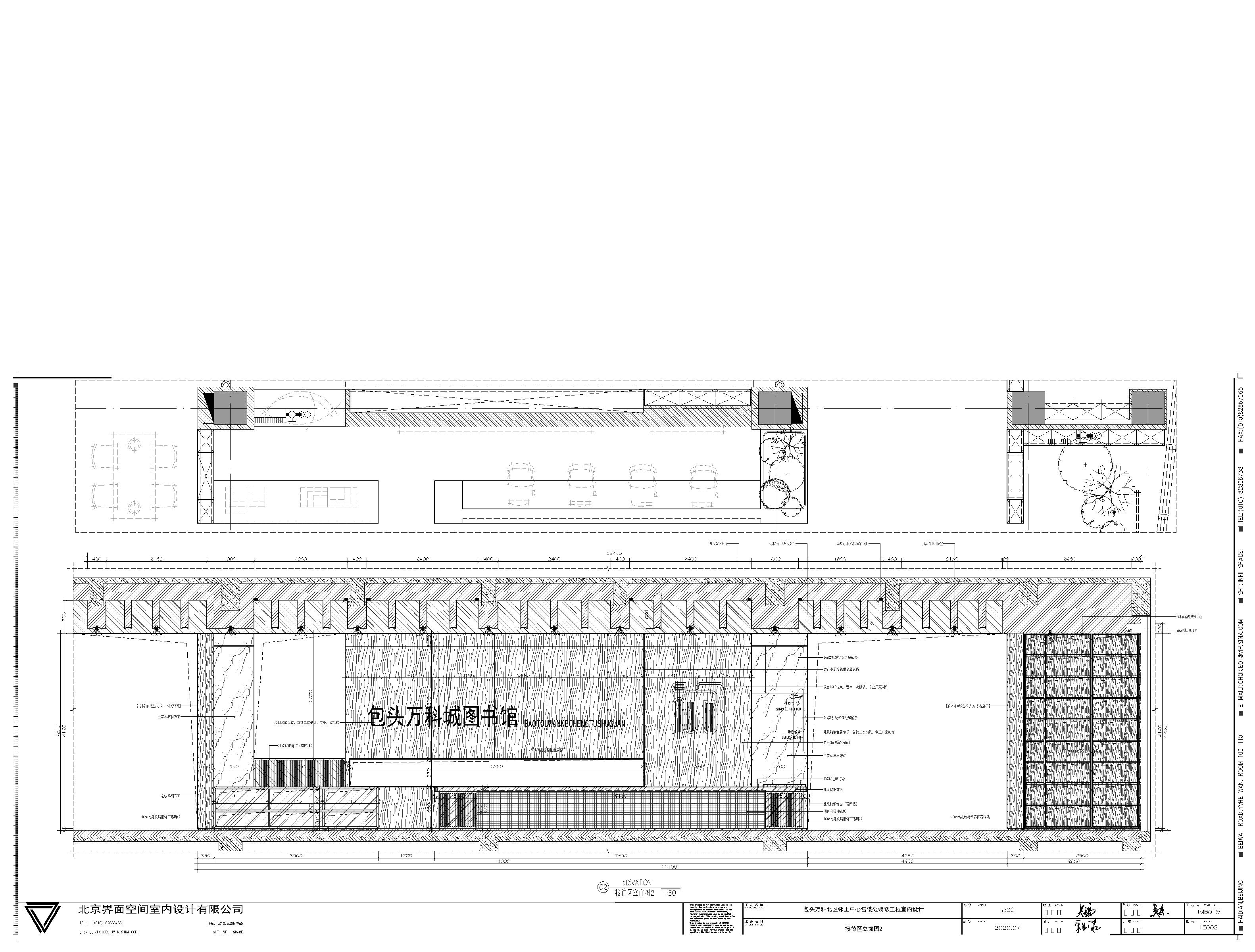
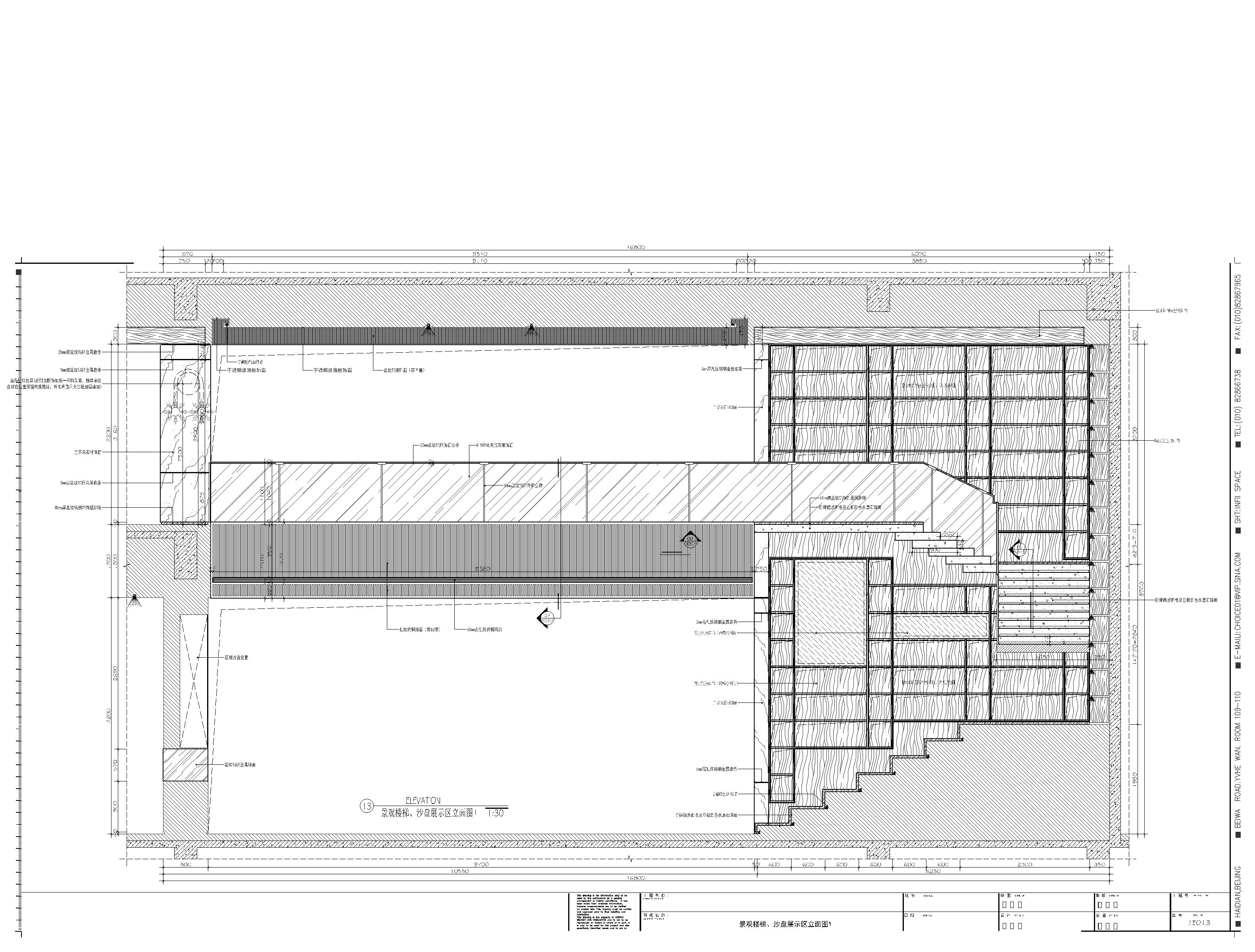
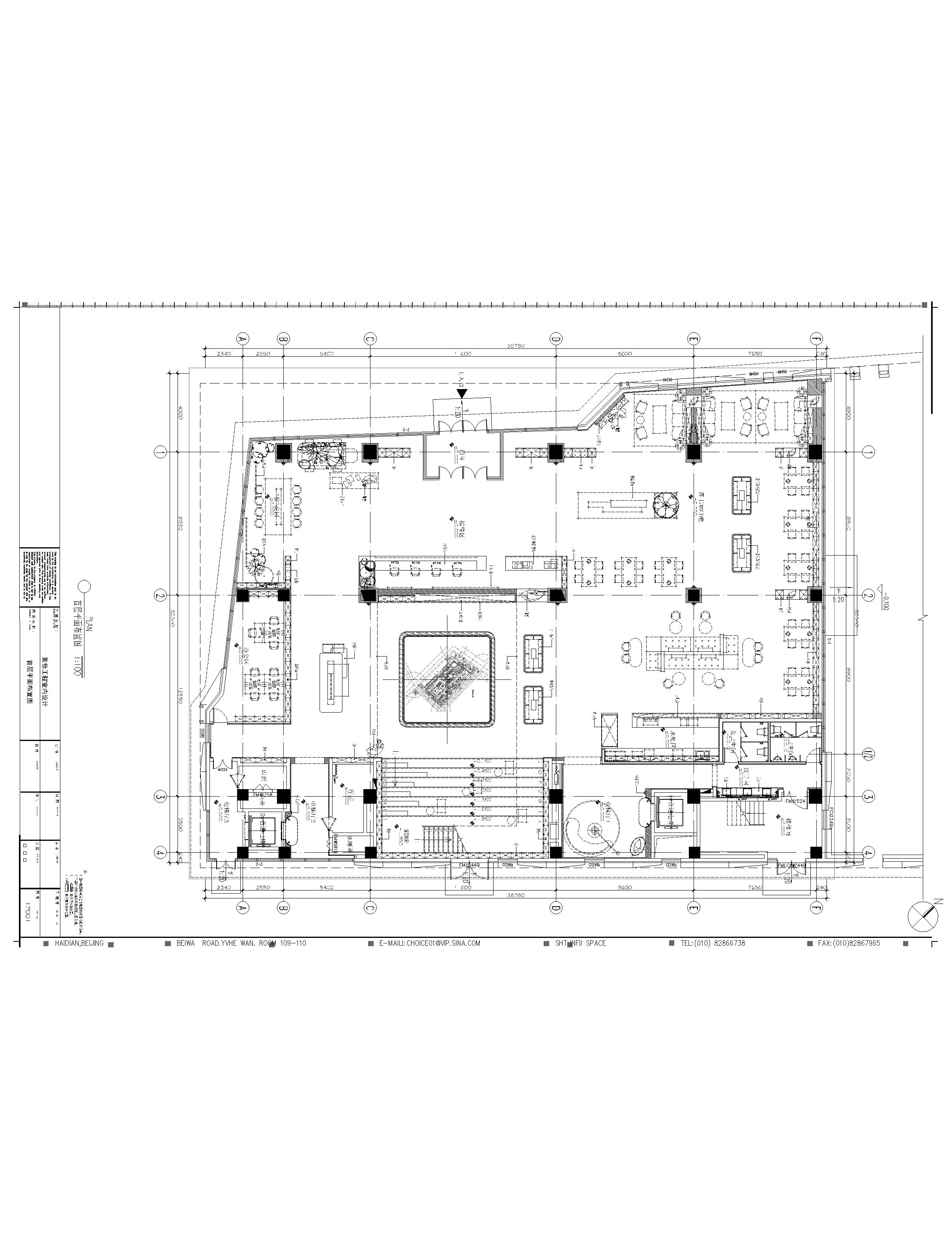
1.jpg 2.jpg 3.jpg 4.jpg 5.jpg 6.jpg 7.jpg 8.jpg 01 (1).jpg 01 (2).jpg 01 (3).jpg 01 (4).jpg 01 (5).jpg 01 (6).jpg 01 (7).jpg 01 (8).jpg 01 (9).jpg 01 (10).jpg 01 (11).jpg 01 (12).jpg 01 (13).jpg 01 (14).jpg 01 (15).jpg

【社区活动中心】包头万科北区邻里中心售楼处丨CAD施工图 高清效果图15张丨70M丨2020.07.rar

61.48 MB, 下载次数: 1

售价: 7 交易币

标签: 售楼处
精华推荐
换一换

发表评论0

CAD施工图+高清效果图【社区活动中心】包头万科北区邻里中心售楼处
拓者推荐
  • 【广州站】设计师创业课
  • 【广州站】收纳设计思维训练营
  • 【广州站】户型优化总监内训课
  • 【广州站】 风水丨设计与签单课
  • 【广州站】获客实操训练营
  • 2025拓者年费+案例Vip会员说明!
  • 【 拓者年费--CAD图纸】
  • 【 拓者年费--户型方案】
  • 【 拓者年费--豪宅视频】
  • 【 拓者年费--灵感图库】