|
本帖最后由 拓者r58r4xa5 于 2025-10-26 21:02 编辑 关注东余 掌握全案设计逻辑 项目类型:高层 项目面积:113㎡ 项目坐标:杭州
优化设计:东余设计 原始结构图
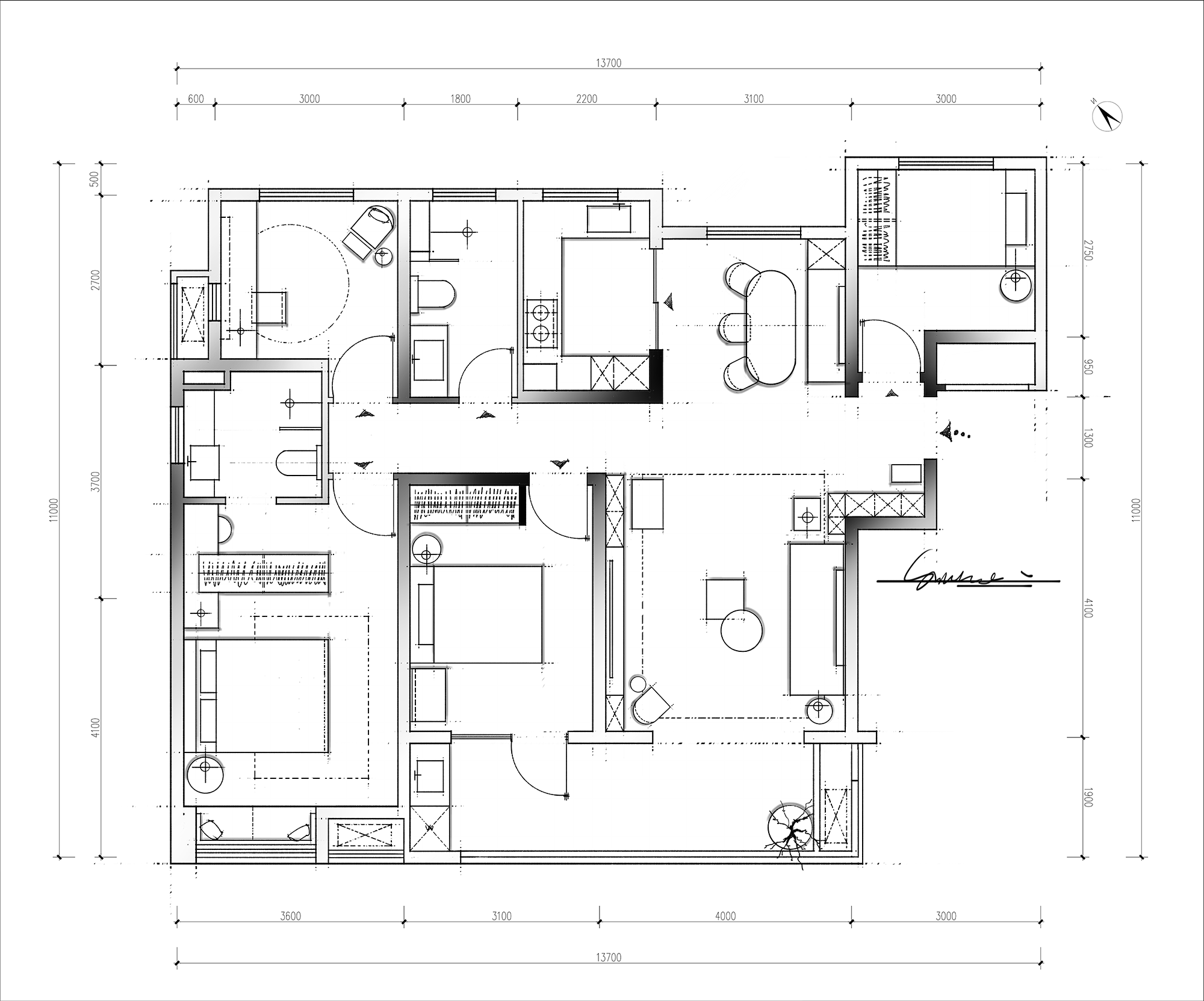
基本情况和设计需求 基本情况: 1、家庭常住成员:3口人(夫妻2人+1个孩子) 2、需要考虑客房(父母寒假会从北方过来短住一段时间) 3、孩子上小学二年级 4、装修预算45~55万 设计需求: 1、客房不常住(预留在进门的房间即可)、玄关鞋柜尽量多一点储物 2、餐厅原本的面积比较小、需要考虑6人同时就餐的情况 3、阳台作封闭式处理、纳入室内使用(局部考虑洗衣、家政功能) 4、需要一个相对安静的书房空间满足男主人伏案使用(也是孩子学习空间) 5、主卧室套房需要落座的休闲区、梳妆台、大单盆和独立的淋浴房 平面方案
关注东余、服务全国设计师! 东余业务合作 1、高定户型优化合作 2、SU模型表达 3、全案设计课程 超高性价比、值得你拥有! 联系我:DYDD-001 官方公众号:东余设计(关注官方公众号 了解最多项目完整动态) 本文以及方案均为东余原创 已申请原创保护 转载注明出处! |
精华推荐
换一换




发表评论0