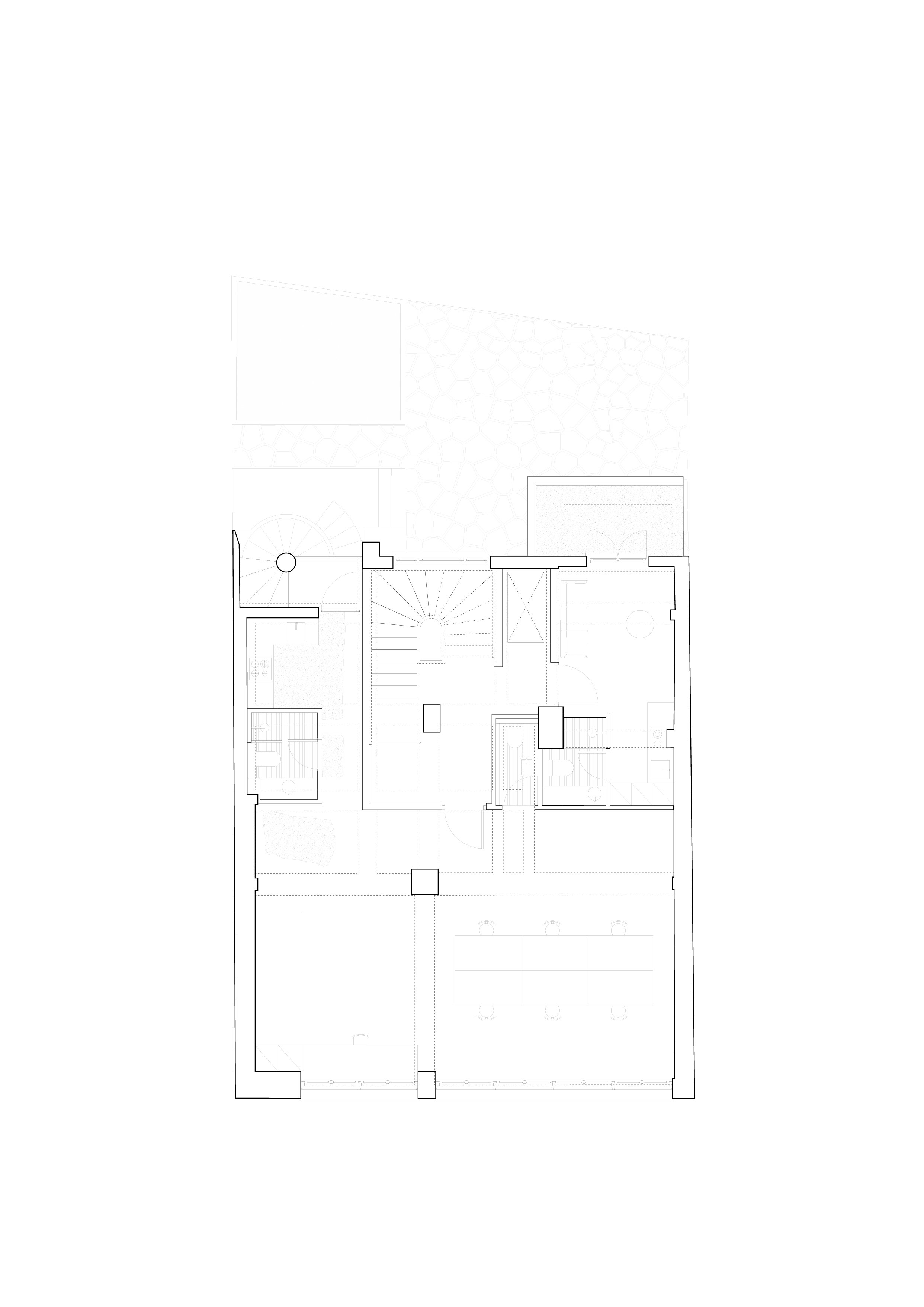
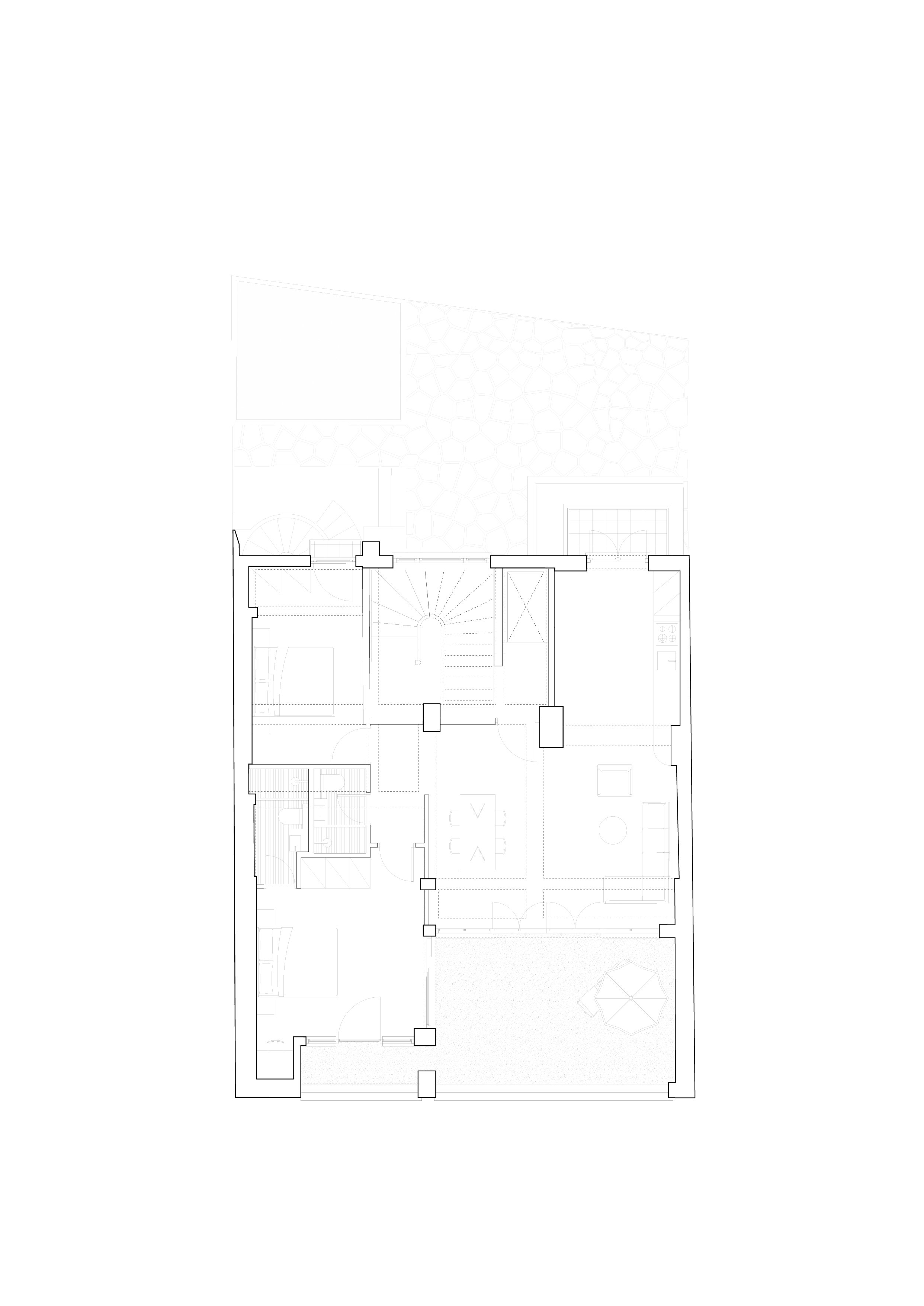
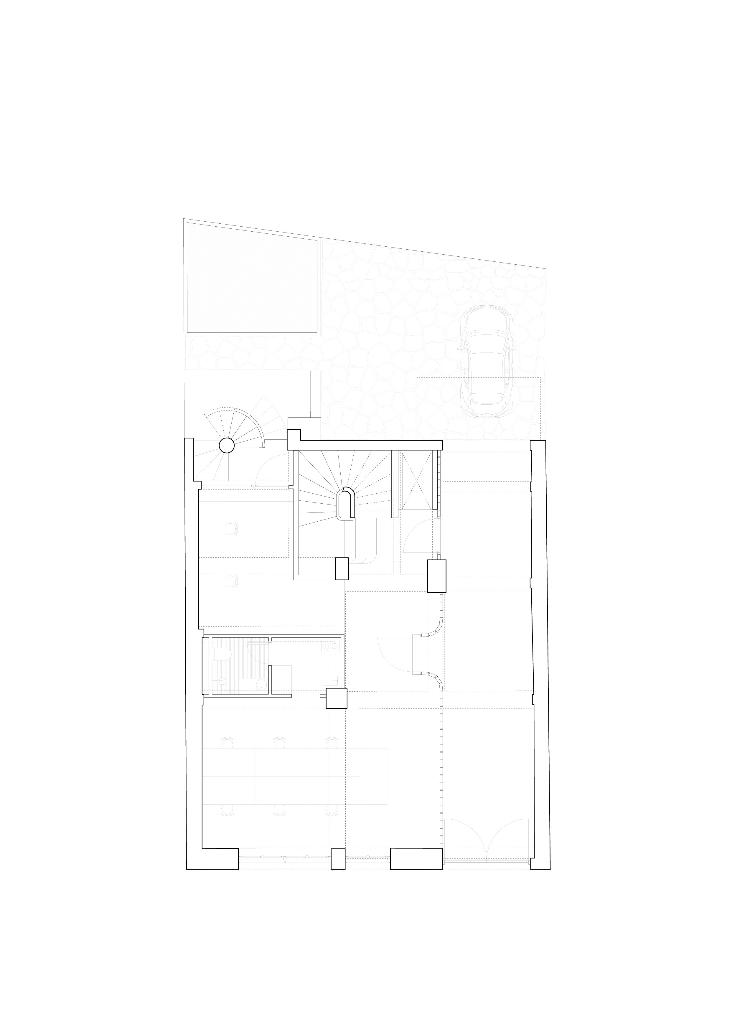
现存的建筑坐落于雅典市中心,是希腊现代主义住宅的最佳典范之一,也可能是受地形因素影响而催生的粗野主义早期雏形。通往两栋住宅的内部走廊形成了巷道式空间,仿佛将城市肌理延伸至建筑内部——这一特色得以保留,但原始墙体被玻璃砖取代,由此形成的办公区域与城市景观形成互动共生。水磨石地板被保留下来,其与环绕四周的环氧树脂地板的相邻位置更突显了它的存在。
A·西亚加斯的初始设计方案规划了两套独立的复式公寓,不仅在垂直方向相邻,水平方向也彼此连接。但在随后的年份中,这一初始方案被废弃。该建筑的修复工程于2023年底竣工。我们决定保留现存建筑的众多细节,同时将内部改造为可根据当代居住需求灵活定制的多功能空间。为此,原本作为私人空间的木楼梯经翻修后成为公共通道。
新建的阁楼以一种索引或X光片般的方式呈现,展现了所有立柱延伸的构造,形成了一种复杂的设计,体现了A. Siagas在工作中遵循的严格原则所允许的不规则与自由。原有的混凝土结构在必要处得到了维护和加固,同时为顶层新建了楼板。
在翻修过程中,所有关于升级改造的决定都以保护和尊重建筑遗产为宗旨,同时赋予其符合当代生活需求的全新面貌。新安装的木框窗户设计风格与原版保持一致,但完全符合现行节能法规要求。
此次修复在文化和社会层面均面临挑战,既要权衡功能性与考古学方法的微妙平衡,又需兼顾建筑师的原始意图与雅典大都市中心当前的社会政治环境。因此,必须通过精妙设计打造富有深意的方案,同时避免任何浮夸倾向。
|
精华推荐
换一换



发表评论0