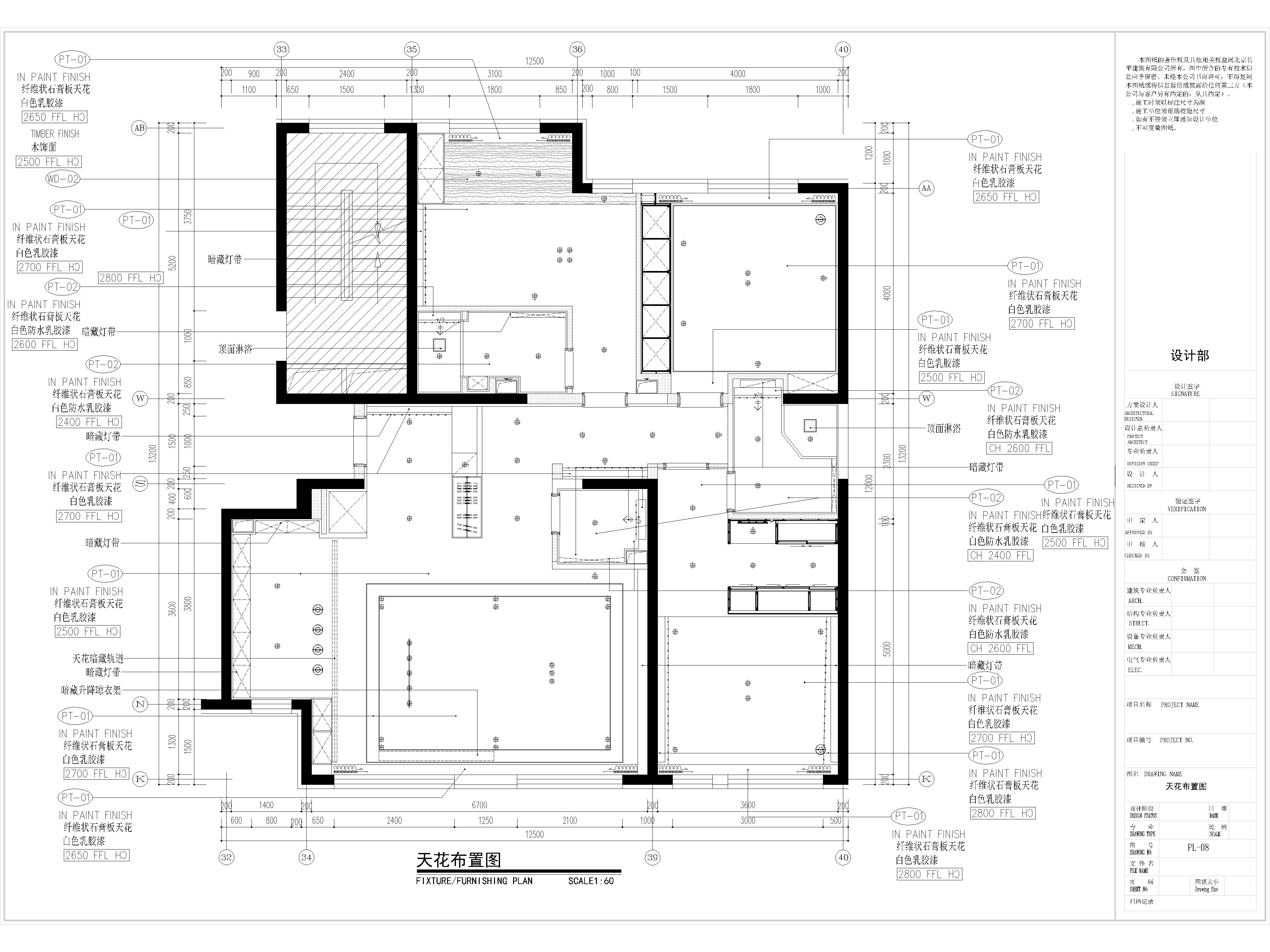
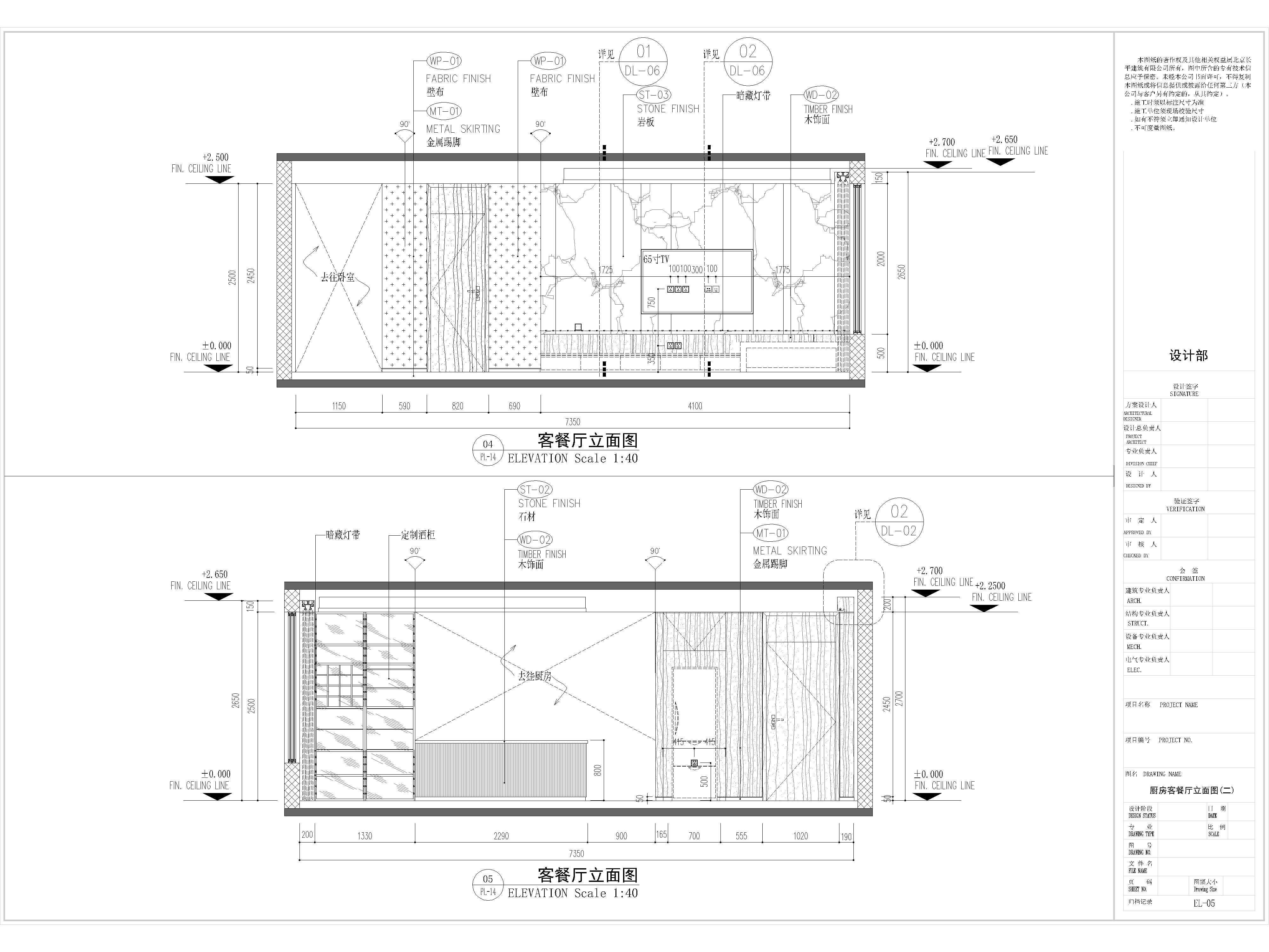
CAD施工图+效果图9张+物料书【最新样板】150㎡家装样板间

2025-10-22/ CAD图纸/ 样板间/ 只看大图 阅读模式
仅供分享不做任何商业用途,版权归原作者所有,谢谢配合。

马上注册,结交更多好友,享用更多功能,让你轻松玩转社区。

您需要 登录 才可以下载或查看,没有帐号?注册

x
1.jpg 2.jpg 3.jpg 4.jpg 5.jpg 6.jpg 7.jpg 8.jpg 9.jpg 01.png 02.png 03.png 04.png 05.png 06.png 07.png 08.png 09.png

【最新样板】150㎡家装样板间丨CAD施工图 效果图9张 物料书丨38M丨2022.04设计.rar

32.85 MB, 下载次数: 0

售价: 5 交易币  [购买]

精华推荐
换一换

发表评论0

CAD施工图+效果图9张+物料书【最新样板】150㎡家装样板间
拓者推荐
  • 【广州站】设计师创业课
  • 【广州站】收纳设计思维训练营
  • 【广州站】户型优化总监内训课
  • 【广州站】 风水丨设计与签单课
  • 【广州站】获客实操训练营
  • 2025拓者年费+案例Vip会员说明!
  • 【 拓者年费--CAD图纸】
  • 【 拓者年费--户型方案】
  • 【 拓者年费--豪宅视频】
  • 【 拓者年费--灵感图库】