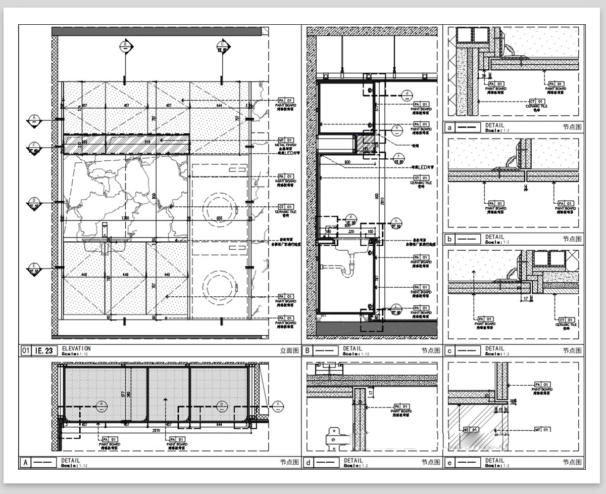
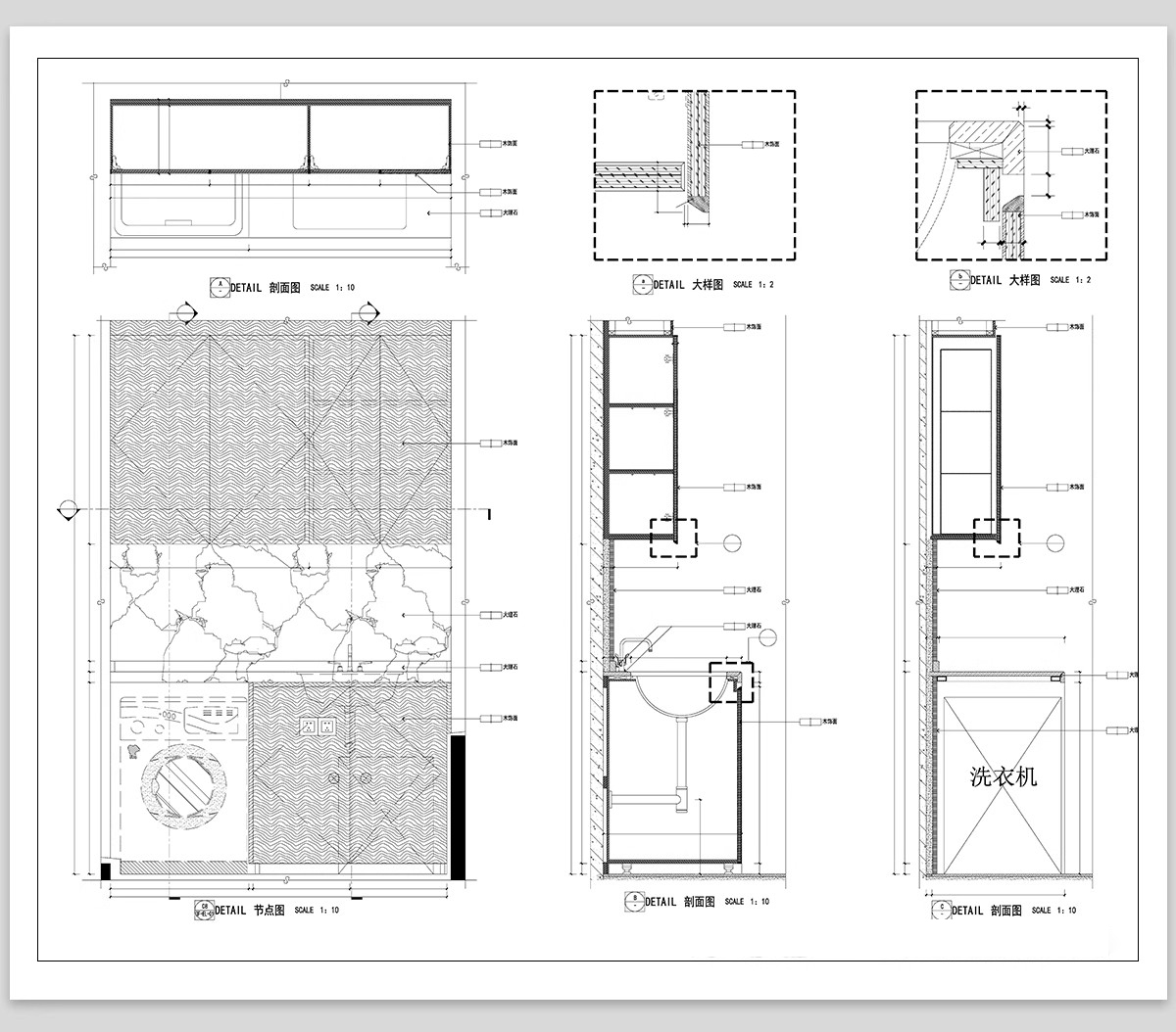
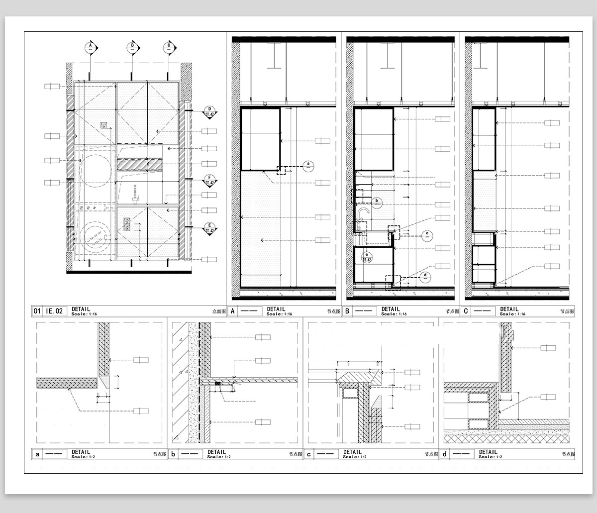
最新整理,洗衣机柜施工图阳台家政柜体节点详图 包含洗衣机柜施工图+阳台家政柜立面图+节点详图 【洗衣机柜施工图+阳台家政柜图节点图】
洗衣柜施工图柜体立面+节点详图 ①洗衣房②家政间③柜体CAD④7套资料大小60M
H-5洗衣机柜CAD施工图阳台家政间柜体立面节点详图.rar
(10.3 MB, 下载次数: 0, 售价: 15 交易币)
|
精华推荐
换一换



发表评论0