|
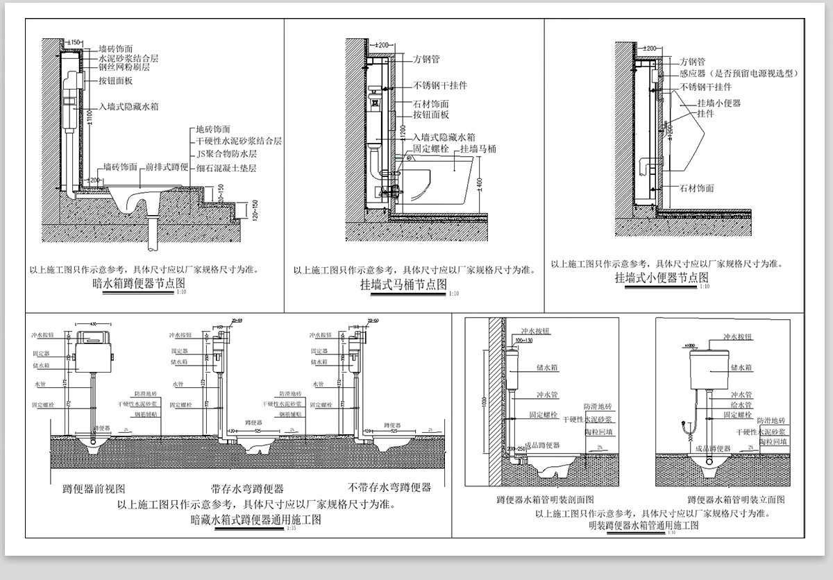
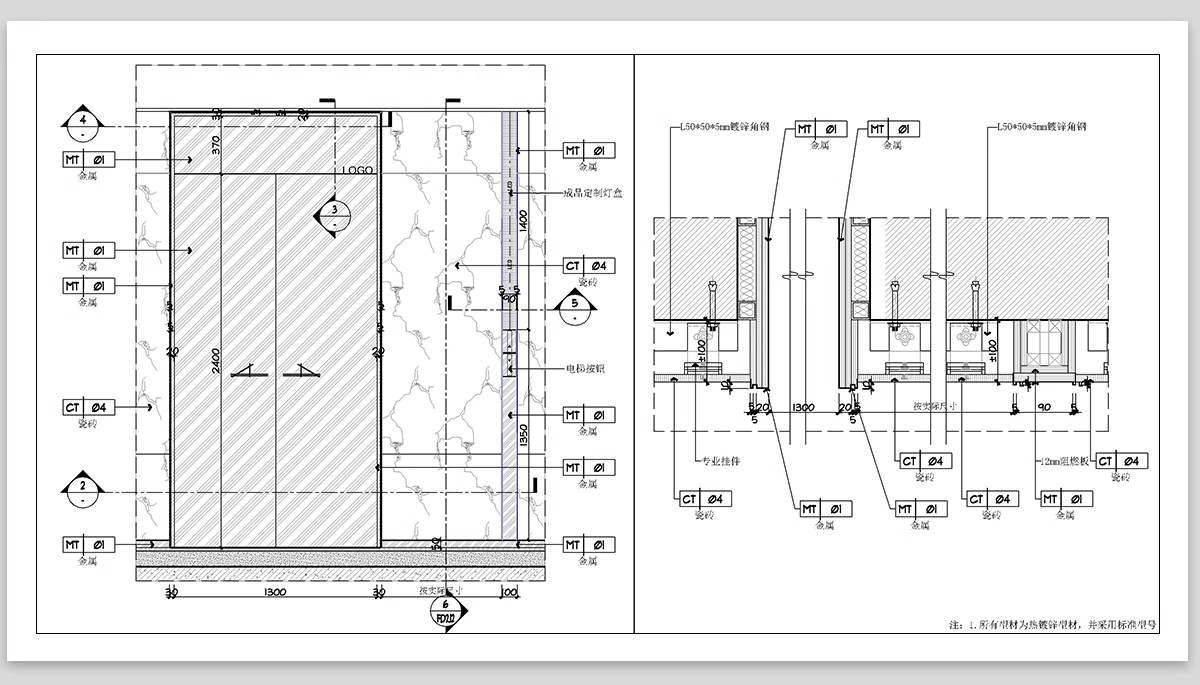
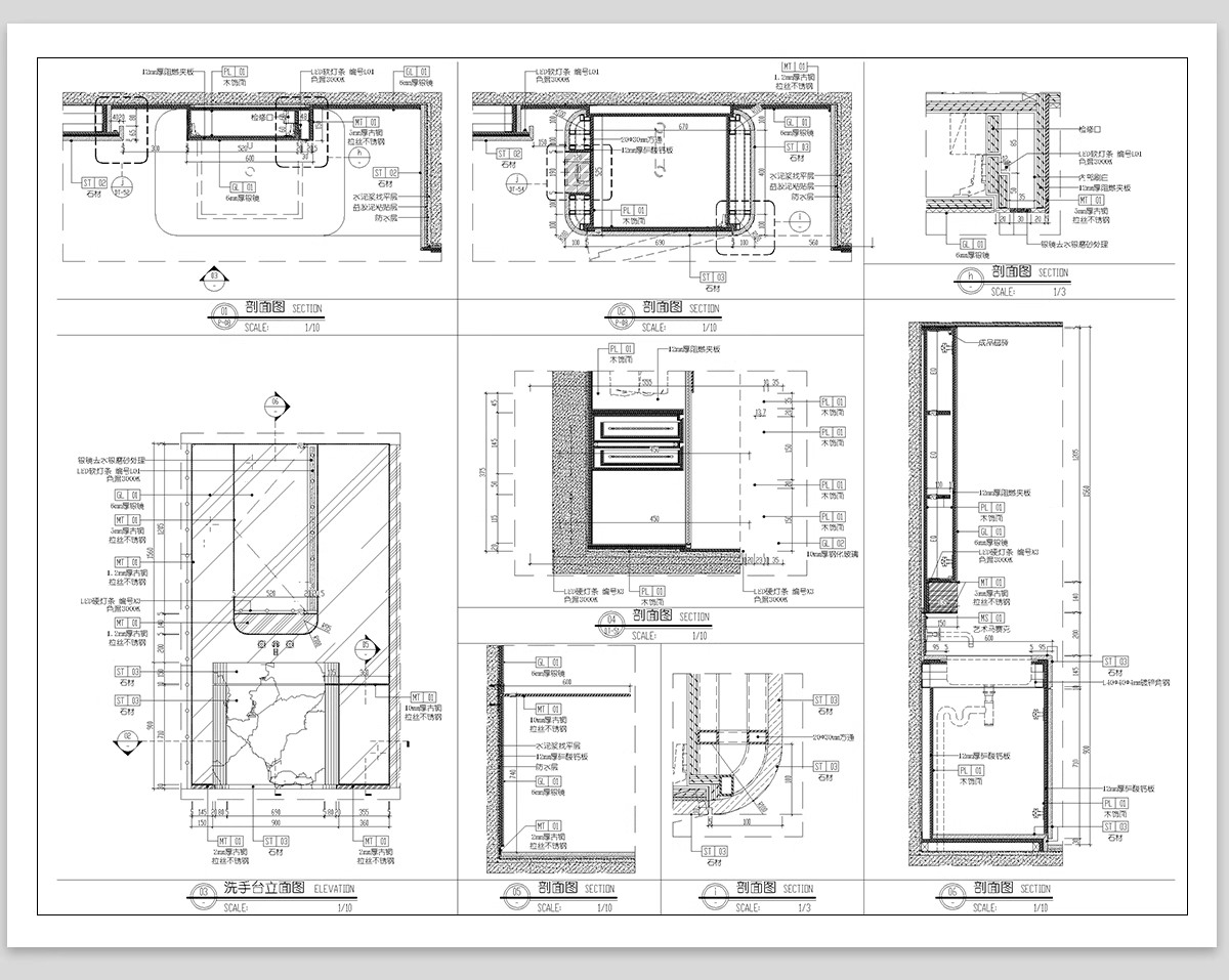
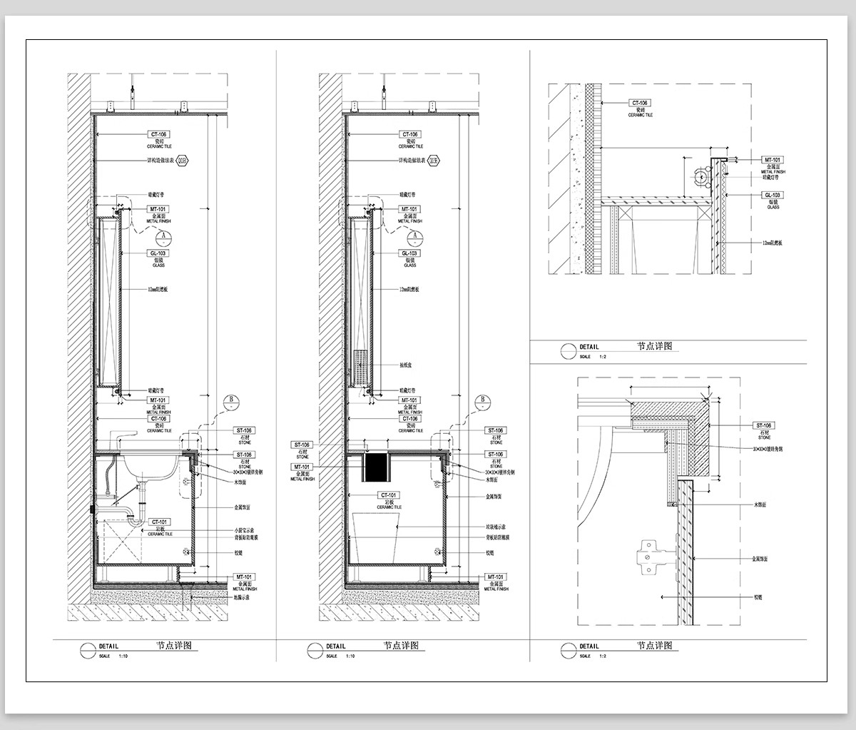
本帖最后由 摇曳的杜英 于 2025-10-27 10:29 编辑 最新整理,卫浴节点CAD施工图 包含浴室洁具 台盆 洗手台 【卫浴节点一体盆施工图】
浴室洁具台盆洗手台节点详图大样图 ①施工图②节点图③大样图④资料大小300M 方便快捷,简单易懂,轻松上手,操作方便,大大提高签单的效率 |
-
-
H-7卫浴节点洁柜一体盆CAD施工图 浴室洁具台盆洗手台节点详图大样图.rar
57.1 MB, 下载次数: 0
售价: 15 交易币 [购买]
精华推荐
换一换



发表评论0