东余户型优化46期 l 130㎡学区老宅如何破局处理?

2025-11-1/ 户型方案/ 户型交流/ 只看大图 阅读模式
仅供分享不做任何商业用途,版权归原作者所有,谢谢配合。

马上注册,结交更多好友,享用更多功能,让你轻松玩转社区。

您需要 登录 才可以下载或查看,没有帐号?注册

x
本帖最后由 拓者r58r4xa5 于 2025-11-1 22:12 编辑

关注东余 掌握全案设计逻辑

项目类型:老房改造

项目面积:130

项目坐标:
广东


优化设计:东余设计

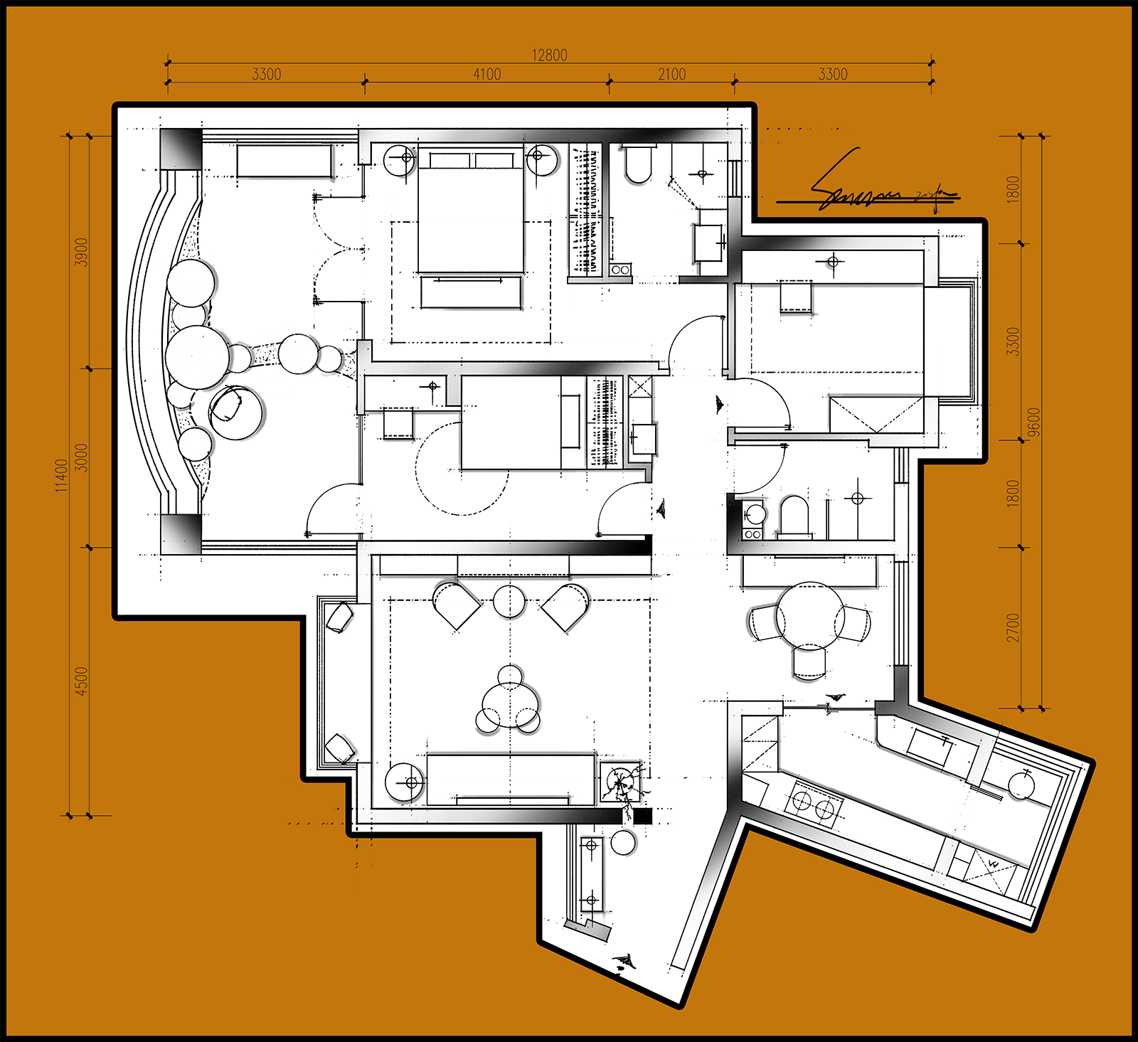
原始结构图

01.png

基本情况和设计需求

基本情况:

1、家庭常住成员:3口人(夫妻2人+1个孩子)


2、
房子为老小区(学区房、孩子上学为主)

3、需要多功能房(满足伏案和睡眠为主)

4、装修预算60万

设计需求:

1、厨房空间为异形、需要处理的好用并且更多下厨空间

2、平时都是3人就餐使用、但是要满足有家人来访时就餐需要


3、客厅需要壁炉、并且背景墙展示和美观为主、基本不看电视


4、原进入到卧室区域的过道很拥挤、需要处理一下


5、儿童房需要睡眠、学习、储物三大功能

6、老户型阳台很大且不好封闭、需要考虑给两个卧室使用

平面方案

SKB.png

关注东余、服务全国设计师!

东余业务合作

1、高定户型优化合作
2、SU模型表达
3、全案设计课程

超高性价比、值得你拥有!

联系我:DYDD-001

官方公众号:东余设计(关注官方公众号 了解最多项目完整动态)


本文以及方案均为东余原创 已申请原创保护 转载注明出处!


精华推荐
换一换

发表评论0

东余户型优化46期 l 130㎡学区老宅如何破局处理?
拓者推荐
  • 明星杨采钰的家丨召禾设计
  • 洣图设计 | 国锐白玉茗艺墅!
  • 收纳设计【直播 1月29-31日】
  • 璞辉设计 | 重塑家的软装哲学
  • 柒筑设计|265㎡瓯江之畔
  • 无间-上海汤臣君品合院方案
  • 君品-汤臣金桥花园项目方案
  • 召禾设计-顶级私人豪宅方案
  • HWCD-苏州吴中区280合院
  • 召禾设计-绿城潮鸣东方
  • 2025拓者年费+案例Vip会员说明!
  • 【 拓者年费--CAD图纸】
  • 【 拓者年费--户型方案】
  • 【 拓者年费--豪宅视频】
  • 【 拓者年费--灵感图库】