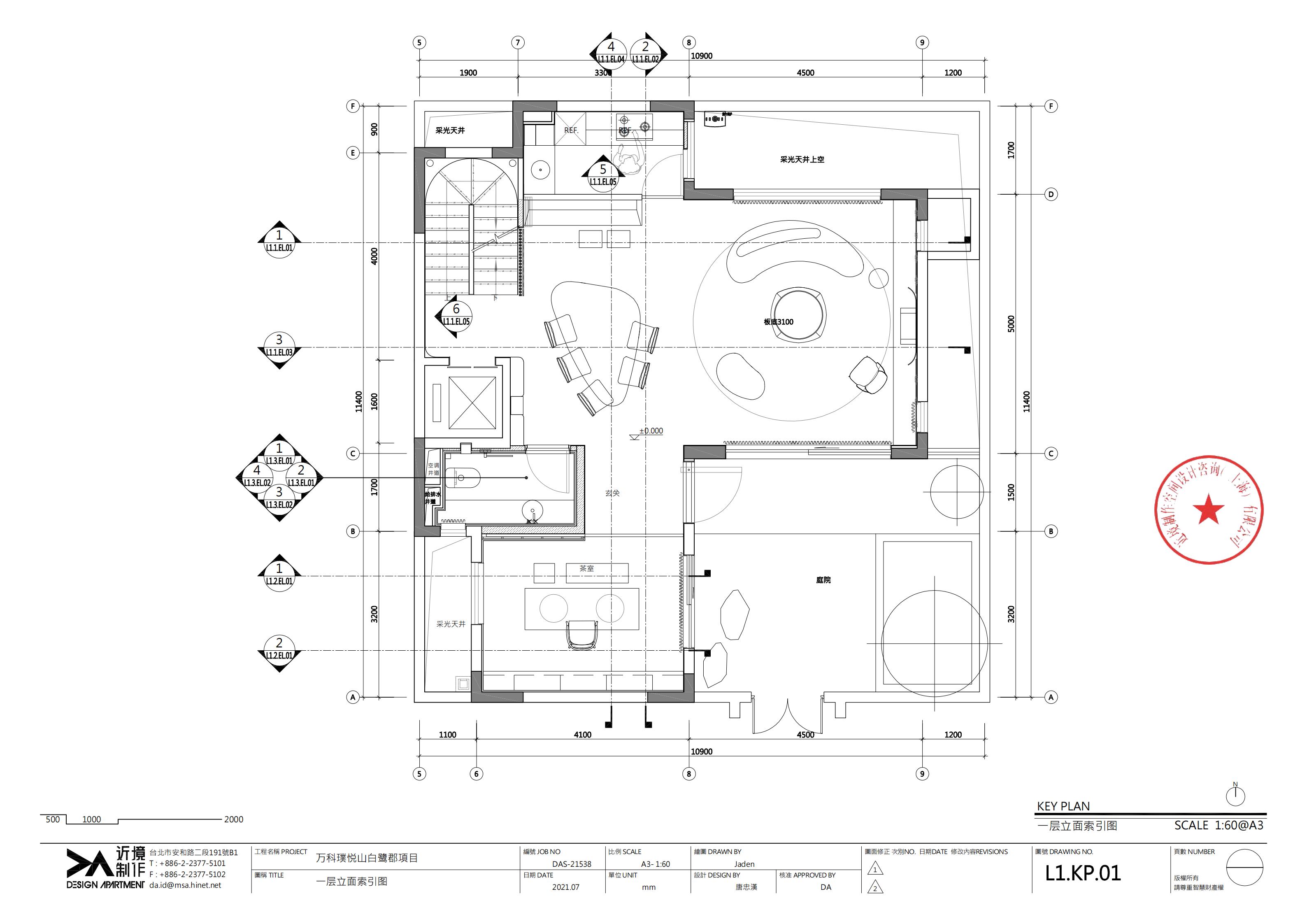
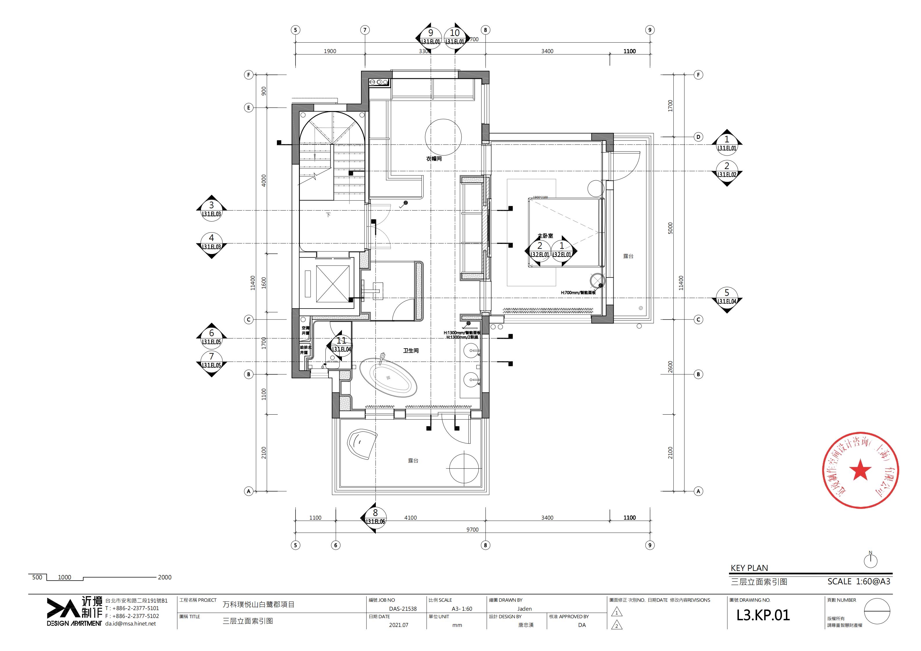
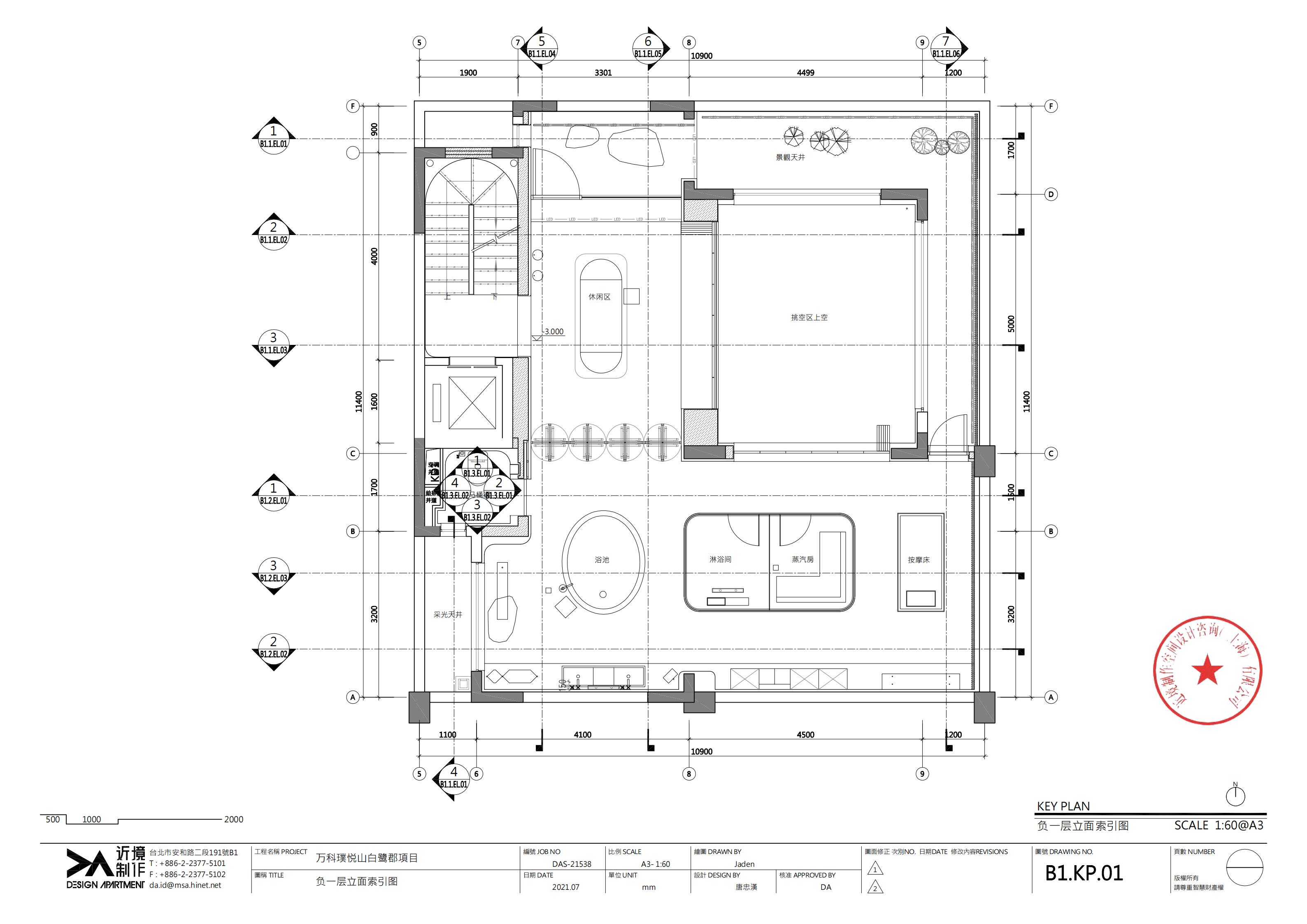
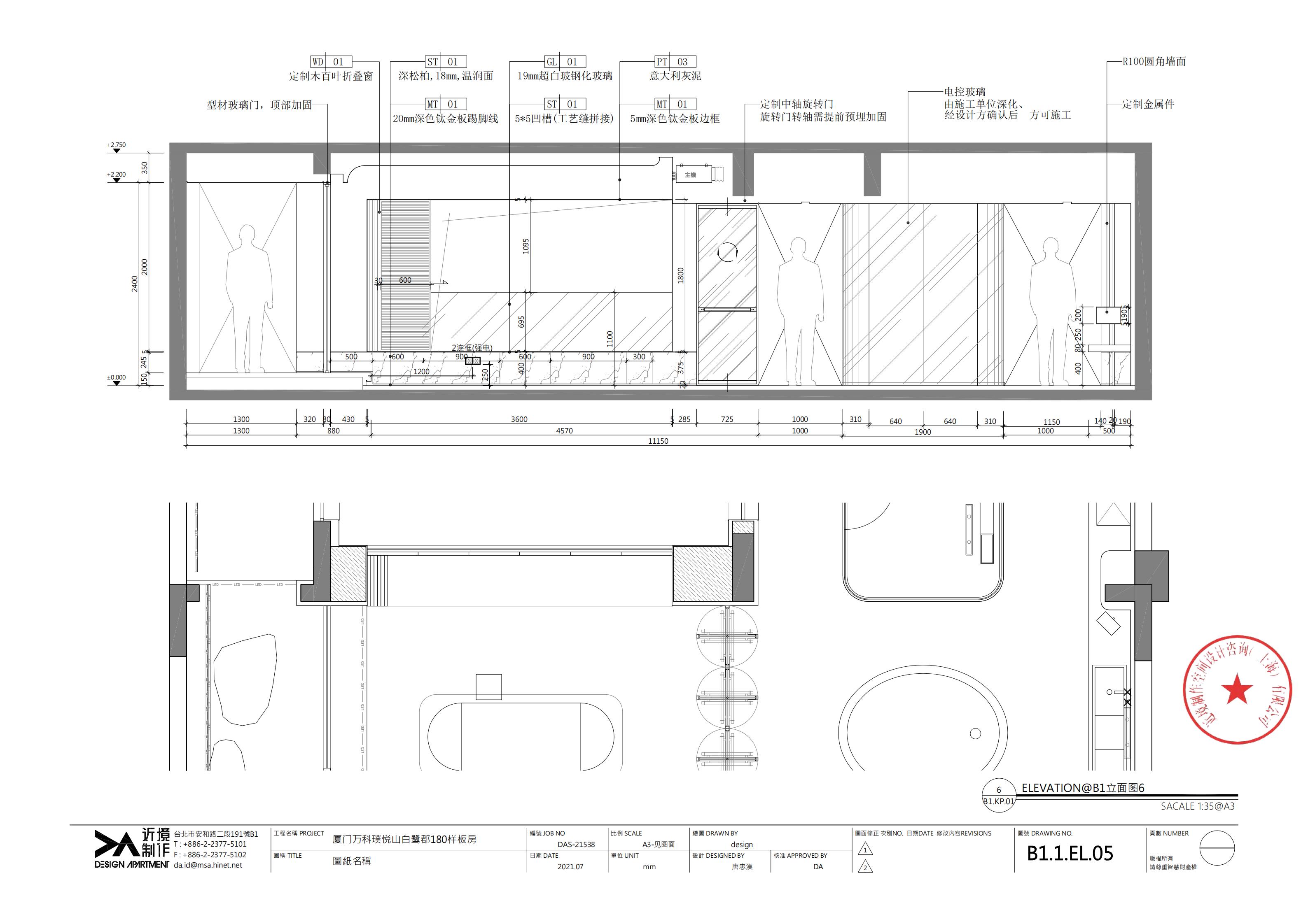
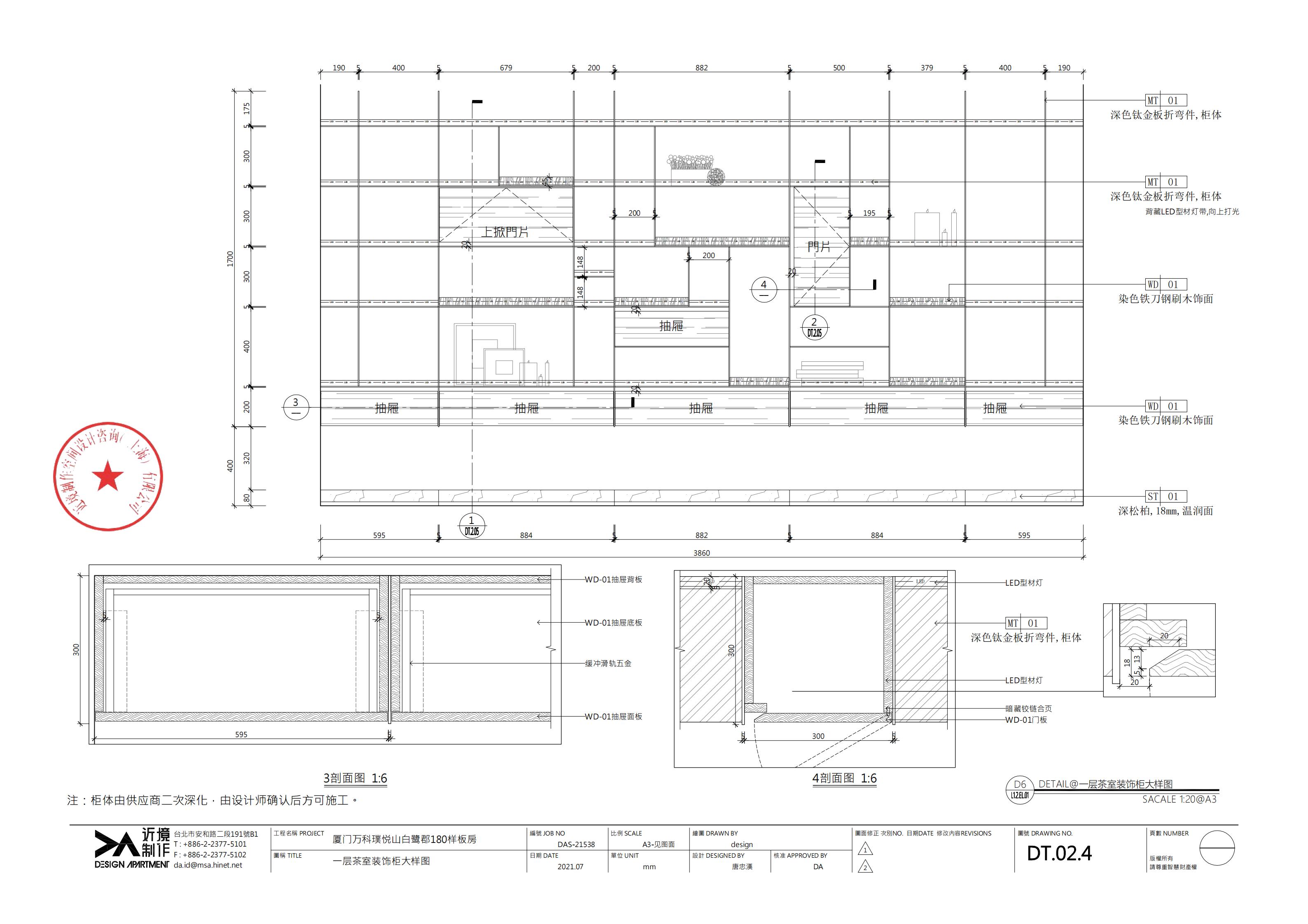
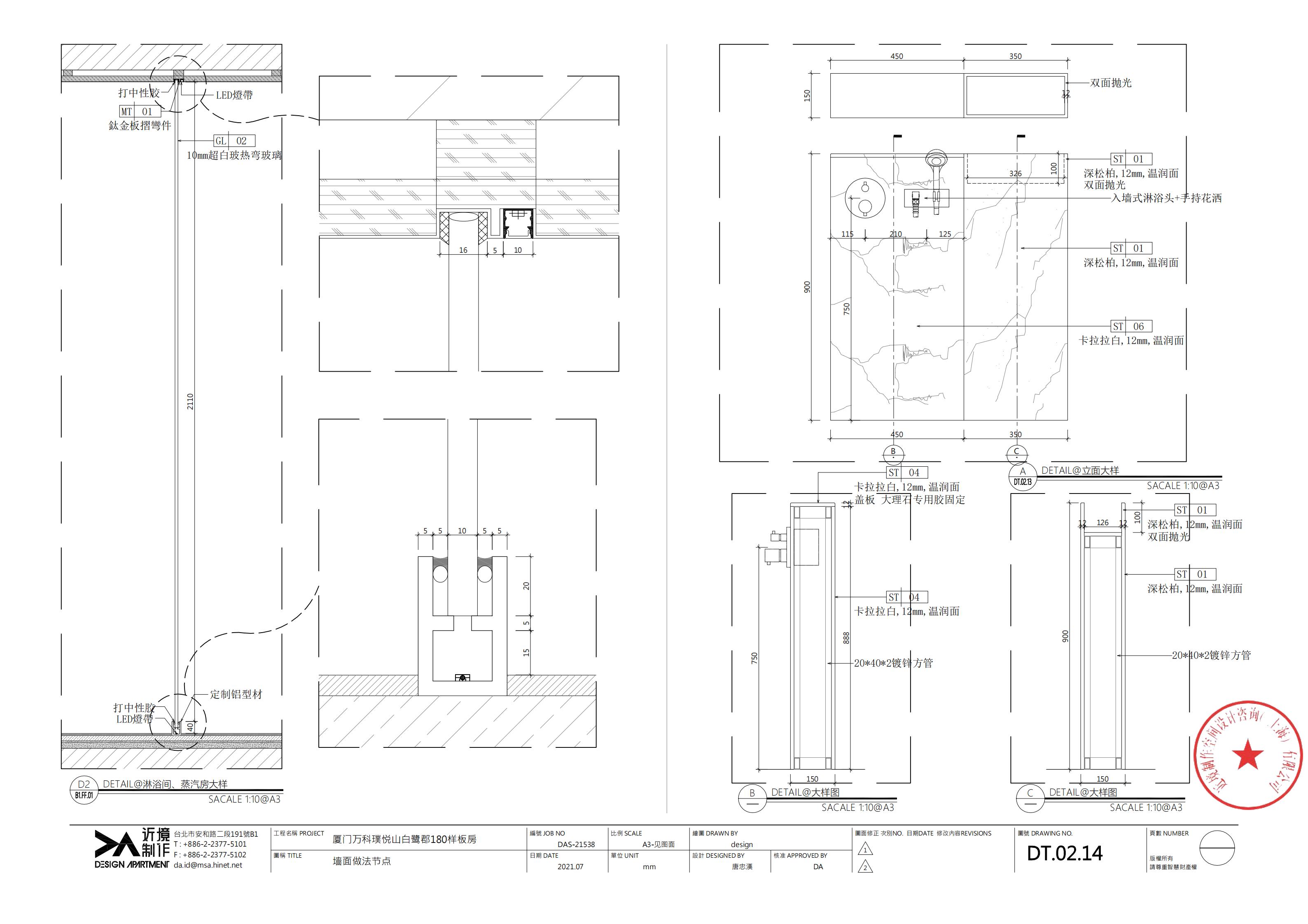
| 人安静地生活,哪怕是静静地听着风声,亦能感受到诗意的生活。——海德格尔   城市的更新从居住开始蜕变,入世喧嚣不再,开始遇见田园光景。 山石间,一草一木的婆娑焕发活力,静静风声开启诗意的栖居。璞悦山便是这繁华都市里的世外桃源,兼具苏式园林的惬意与生机,匠心园景也打磨出精神的丰盈。 01 氤氲·大地风格   “建筑应该是时代的镜子”——柯布西耶 会客厅的巧思在于借景抒情,室外的枯木山水是自然的馈赠, 室内写意年轮般的天花板,加之实木家具的氛围渲染,俨然已不仅限于室内情景,以材质、色彩与造型的完美搭配,呼应着室外的绝妙园景。   为呼应田园式体验,近境制作唐忠汉以建筑量体手法塑造出贴近自然的室内空间感受,依据现代居住生活习惯 ,在室内空间中,唐忠汉选择保有建筑原本的风格,利落的线条感与极富张力的空间尺度,都为这个家增添些许自然的浪漫。 同空间的用餐区也精致可爱,似乎将身心置于辽阔大地间,此刻,便希望享受大快朵颐的酣畅淋漓。 从温馨到开阔,不同空间的张力都被释放,是尽兴,更是柔情。 02 尽享·舒适人文   如果说休闲塑造了空间氛围,那么人文便赋予了空间精神。       窗外的阳光尽情洒落于书房,墙体嵌入式展示架上仿佛开启了奇妙物语,有着情绪呼应上的灵动,每一本书籍都记录着时光的智慧,而每一件藏品都倾诉着流年的故事。     连接书房与卧室的一扇平开门,纵向线条呼应着空间的建筑感,细节的奇妙便是如此,是不经意间的情绪碰撞。 明净单一的色彩,在光线的映衬下,窗明几净,卧室也更多了些人文关怀,享受着心灵的洗尽铅华。   回归自然,不止于对空间的自然演绎,更是以淳朴流畅的设计语言,塑造舒适绝妙的空间意境。设计需要解读现代生活,也需要引导健康生活。   一改普通浴室的狭窄与私密感,这里的浴室被置于半开放空间中,抬眼可见室外的风景,舒适而有趣,窝在浴缸里,享受着治愈的沐浴时光。   材质、色彩、造型、手法,用以界定空间关系,而缜密的设计思维打造的空间仪式感,于空间虚实间渲染着五官感受。   量体、线条、借景、光源,交合出完整、自然、舒适的空间体验,赋予空间自然回归与精神延续。   如果说这方空间总有些角落令人却步,那一定不可错过SPA区。 温泉的疗养带来精神抚慰,是这个家最私密的一方天地,烟雾缭绕中,感受水流带来的愉悦,开启一段自我对白。   柯布西耶在《走向新建筑》中写到:建筑应该是时代的镜子,现代的建筑更要关心为大众设计的新住宅。   他倡导的以块体方式呈现新建筑的这一现代建筑的量体手法,在唐忠汉的笔下得以呈现。   会客厅里通体水晶灯纵深链接,室内天井的采光增加了通透度。以黑灰褐色为基调,沉静优美。 而大面积留白又中和了深沉感,辅以灯带点缀,呼应着水晶吊灯,是晶莹之美亦是烂漫氛围。   以通透的玻璃展示柜为隔断,餐厅的线条纵横感更为突出,交错于光影间,万物静止,仅剩的风于时间流逝响于耳边。忽而瞥见,光阴的形状。   大理石、实木、玻璃、金属,不同材质间碰撞出化学反应,搭配着柔和的光线,是一种奇妙的舒适体验,仿佛置身自然间,一切都可平复。 设计师唐忠汉称其为大地风格,再贴切不过。   下面是效果图概念方案:                                                                                                                                          唐忠汉- 厦门万科白鹭郡璞悦山璞墅180户型样板间全套施工图 高清效果图 官方摄影.rar
(115.96 MB, 下载次数: 0, 售价: 11 交易币) | 
精华推荐
          
              
              换一换
              
          
 
                          
                        
                    
 
  
  
  
  
  
  
  
  
  
 

发表评论0