|
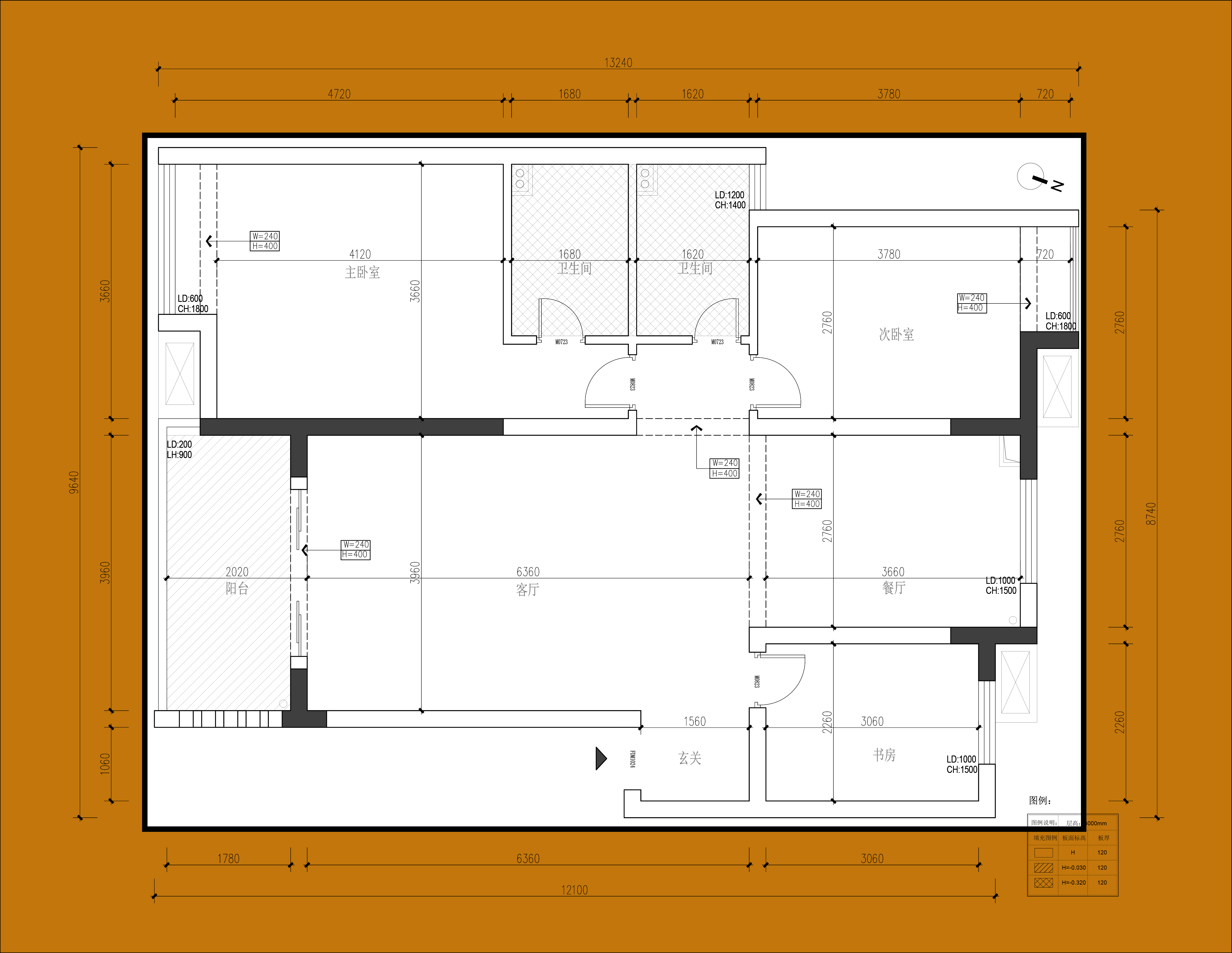
本帖最后由 拓者r58r4xa5 于 2025-11-8 20:01 编辑 以“洄游动线”重组空间,让98㎡即享大平层品质! 关注东余 掌握全案设计逻辑 项目类型:高层住宅 项目面积:98㎡ 项目坐标:上海 优化设计:东余设计 原始结构图
基本情况和设计需求 基本情况: 1、家庭常住成员:3口人(业主两人和一个孩子) 2、男主人是金融从业者 3、女主人是互联网从业者 4、女主人喜欢下厨 5、孩子目前6岁 设计需求: 1、只需要两个卧室、父母在隔壁区有房子居住 2、进门就是拥挤的墙体不喜欢、而且光线不好 3、需要一个书房满足男主人休息和晚上使用(也是孩子的学习空间) 4、最不满意的是两个卫生间都太鸡肋、不好用还很小 5、衣服晾晒需要满足美观性、不能影响客观观感 平面方案
关注东余、服务全国设计师! 东余业务合作 1、高定户型优化合作 2、SU模型表达 3、全案设计课程 超高性价比、值得你拥有! 联系我:DYDD-001 官方公众号:东余设计(关注官方公众号 了解最多项目完整动态) 本文以及方案均为东余原创 已申请原创保护 转载注明出处! |
精华推荐
换一换




发表评论0