锵设计 | 温州四口之家的解构主义住宅

2025-11-3/ 家居实景/ 现代风/ 只看大图 阅读模式
仅供分享不做任何商业用途,版权归原作者所有,谢谢配合。

马上注册,结交更多好友,享用更多功能,让你轻松玩转社区。

您需要 登录 才可以下载或查看,没有帐号?注册

x
1.JPEG
2.JPEG
3.JPEG

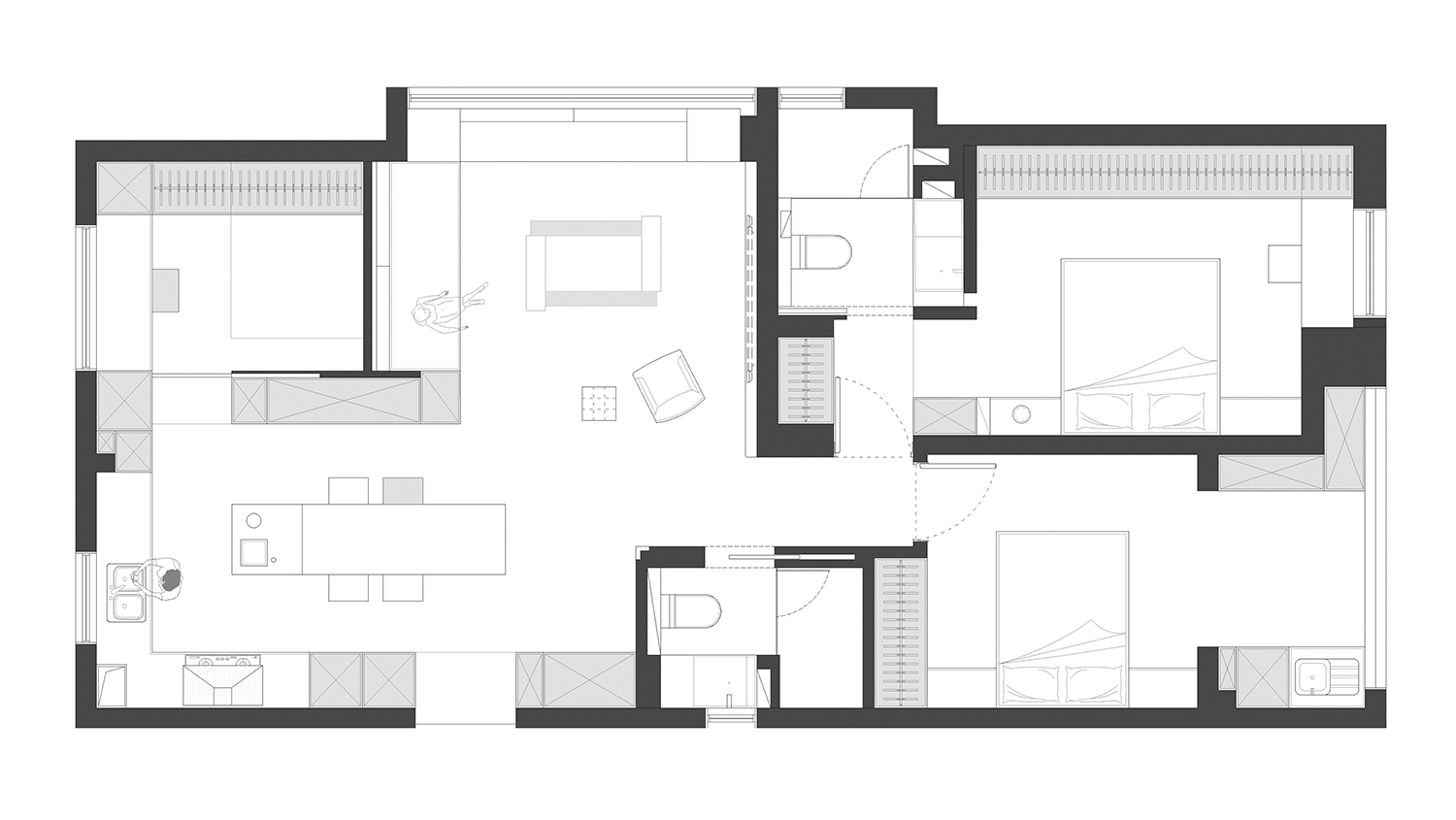
在100平方米的有限框架内,满足三代人的居住需求,是对设计的首要考验。
我们摒弃常规的区隔,转而运用建筑解构主义手法,将整体空间进行精准的切割与重组。
材质,成为定义功能的无声语言;视线,在连贯的布局中自由流动,创造出远超物理面积的空间体验。







黄铜地面以温润的光泽,界定了归家的第一步,与两侧的收纳墙体共同谱写空间的仪式感序曲。



我们深信,材质本身会说话。在这个家中,它们共同撰写了一部细腻的感官日记。







餐厅地面特选的“金砖”,将随着岁月流逝愈发油润,记录生活的痕迹。
上方的木纹吊顶,以温暖的体感向下包裹,营造出亲密舒适的围合感。
功能上,岛台、收纳与电器完美整合,体现了现代生活的效率美学。




打破传统,以定制的结构性卡座沙发取代成品家具,最大化收纳与空间利用率。
居中的模块化金属茶几,内嵌生态植物缸,是功能与生机的巧妙融合。
电视背景墙的银色金属板,则以冷静的笔触,强化了空间的构筑感。








光,柔化了混凝土的冷峻;混凝土,则赋予了光以形体与重量。
二者共同塑造了一个充满精神性的场域,成为家的情感焦点。







空间的最高亮点,在于“十字光域”与“现浇水泥”的戏剧性对话。
这并非简单的造型,而是一次关于材质神性的探索。







主卧采用“黑色星空”背景墙,点缀零星光源,营造深邃静谧的睡眠氛围。
半开放式卫浴设计,在保障功能与隐私的同时,维持了空间的通透。





次卧则通过布艺与木艺的几何拼接,在光影的雕琢下,营造出沉稳而充满温度的就寝环境。





最终,这个家如同一件精致的乐器。
水泥的沉稳是低音,金属的清鸣是高音,木质的温润是中旋律,而金砖则随着时光奏出变奏。
它们在各司其职中相互交融,最终鸣响为一曲名为「生活」的、历久弥新的动人乐章。




7.jpg

项目名称|磐 - PAN RESONANCE
项目类型|住宅空间
项目地址|浙江 温州
项目时间|2024
项目面积|100㎡
设计公司|锵设计
主持设计|王锵力
团队参与|池浩然、韩俊浩
公司网站|www.qiangid.com
主要材料|金砖/雾面金属/橡木/现浇水泥
空间摄影|张家宁

8.jpg

精华推荐
换一换

发表评论0

锵设计 | 温州四口之家的解构主义住宅
拓者推荐
  • 孟也新作-七都岛640法式别墅拓者空 600㎡极简别墅
  • 【武汉站—“樱”你而来】获客实操
  • 【武汉站—“樱”你而来】户型优化
  • 【武汉站—“樱”你而来】风水
  • LSD-宁波鳳栖雲庐合院样板间
  • CCD-华润 CCBD 889㎡设计方案
  • 孟也新作-七都岛640法式别墅
  • 【WSD世尊】建发·云启玉诸
  • 苏州绿城樾庐合院样板房
  • 无间设计-上海万科中兴傲舍
  • 2025拓者年费+案例Vip会员说明!
  • 【 拓者年费--CAD图纸】
  • 【 拓者年费--户型方案】
  • 【 拓者年费--豪宅视频】
  • 【 拓者年费--灵感图库】