栖居金沙湖畔 邂逅迪普希的雅致慢赏湖光 静享舒适
杭州,一座镌刻着千年风韵与当代活力的都市,传统文化与时尚潮流的交织,成为当代杭州精致生活的最佳写照。 迪普希酒店坐拥金沙湖一线湖景和醉人的落日晚霞,酒店名“迪普希”源自英文“TIPSY”(微醺),旨在为追求情感链接、崇尚社交分享的都市潮人,筑造一场专属于金沙湖畔的“落日微醺甜梦”。
01 邂逅金沙霞影 入口是一个建筑表达它是什么和它如何开始的地方,它不仅仅是门,它是邀请。 —— 路易斯·康 (Louis Kahn) 以退为进的入口哲学,通过巧妙的半户外空间过渡与水景庭院引导,柔和地消解了街区的喧嚣与酒店的静谧之间的界限,宾客在不经意间,从城市漫步者化身为一场空间探索的参与者。
“生活就是服务, 进步的人会给同伴多一点更好的款待。” —— 现代酒店管理之父E.M.Statler
落日与湖水在这里交织共舞,犹如玻璃杯中醇厚的威士忌,亦如音符般悠远而绵长,将光与影谱写成曼妙的乐章。 跳动的火焰传达的不仅是归家的温度感、一处视觉焦点,更是空间精神的象征。 在这里,不论是静坐阅读,亦或是与友人轻语交谈,都能感受到杭州人文风韵与生活美学的厚重感。 02 落日微醺 艺术聚场 探索餐厅除早餐功能以外的更多可能性,白天 CITY WALK 探索杭州城市人文风韵,夜晚 CITY DRINK 感受金沙湖畔落日微醺的沉浸体验,微醺+音乐才是迪普希夜晚的终极浪漫。 餐厅包间、会议商洽与茶艺品茗空间,提供了沉浸于临安烟火、东方美学、静心品茗的片刻宁静。 03 奢适旅居 微醺甜梦 空间转换带动情绪变化,导视、灯光、造景……细节之处,彰显对居客细腻的情绪关照。 推开轻纱,迎面而来的是窗外枝头四季变换和城市烟火温情,阳光透过薄纱,把室内和室外时光萃成一杯清新的莫吉托,调出那份独特的清凉与微醺。 时间触发生活的开关,居客在迪普希的每一个美好瞬间,都被定格成在时光的相册里。 时间,是一位富有灵感的调酒师,将金沙湖灿烂的晚霞与夜幕阑珊下的霓虹,调成了一杯热情洋溢的红宝石菲仕,把居客浪漫与热情溶解在微醺的酒杯里。 迪普希不仅仅是一家酒店,更是一个与金沙湖共呼吸、与城市共成长的生活目的地;她邀请每一位宾客在此放慢脚步,松弛身心,邂逅一场浪漫的微醺绮梦。 平面布置图
首层平面图
二层平面
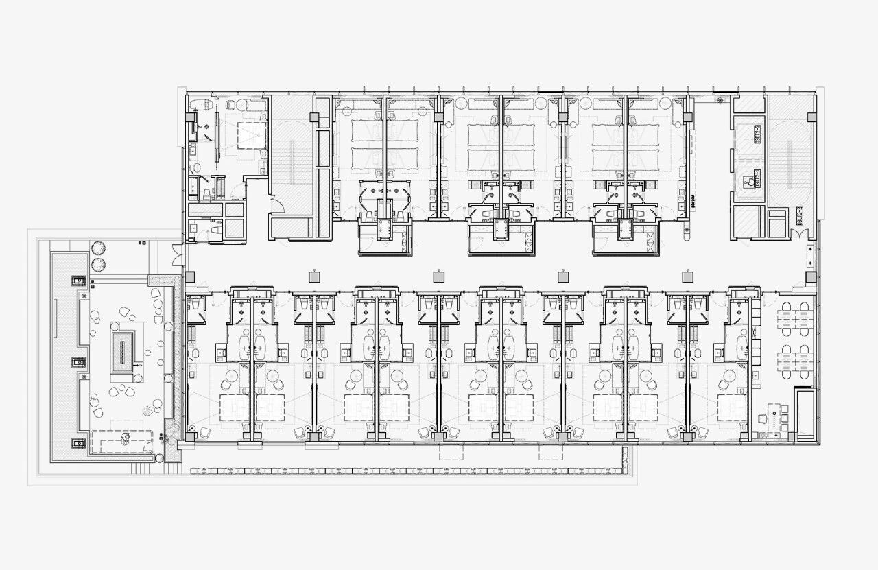
五层平面 项目信息 项目名称 | TIPSY HOTEL 杭州迪普希酒店 项目地址 | 浙江,杭州 项目面积 | 6808㎡ 设计时间 | 2024年07月 完工时间 | 2025年08月 设计单位 | WVD智谷创筑设计 主创设计 | 方智宏、 张建民 摄影 | 芷观.野 方智宏 智谷创筑创始人/创意总监 思想的自由度决定设计的创造性。 “我们创造梦想,也实现理想” 荣获奖项: 2024荣获LIV国际设计奖、2023荣获法国双面神国际设计奖酒店类金奖、2023荣获美国IDA国际设计奖优秀奖、2023年荣获美国缪斯设计奖、2022年荣获IAI全球设计奖(酒店空间铜奖)、2021年荣获CIID中国室内设计大奖赛酒店类优秀奖、2021年荣获亚太空间设计年度评选——酒店空间设计大师奖、2021年荣获 40X40中国杰出设计青年 2021年荣获潮设计TOP100、2020年荣获金尺奖酒店空间设计金奖、2019年入围艾特奖最佳酒店设计奖、2019年获红棉奖酒店餐饮类银奖、2018年荣国金堂奖年度优秀酒店空间设计银奖、2017年荣获亚太室内设计优秀奖、2017获福建酒店设计领军人物、2016年荣获中国优秀青年设计师。 张建民 智谷创筑合伙人/设计总监 以自然哲学探索设计中的多元性,以差异化思维发掘每一个设计的独立个性和鲜活生命力。 荣获奖项: 2024荣获LIV国际设计奖、2023荣获法国双面神国际设计奖酒店类金奖、2023荣获美国IDA国际设计奖优秀奖、2023年荣获美国缪斯设计奖、2022年荣获IAI全球设计奖(酒店空间铜奖)、2020荣获金外滩奖最佳酒店设计奖、2019年获得建筑装饰工程师职称、2018年荣获40X40中国杰出设计青年、2018年荣获中国优秀青年设计师称号、2017年荣获亚太室内设计优秀奖、2017年荣获艾特奖办公空间设计银奖、2015年荣获筑巢奖办公空间设计金奖、2014年获得高级室内建筑师认证、2012年获得二级建造师执业资格证书。 WVD智谷创筑设计是一家具有国际化视野和策略设计思维的多元化设计研究机构。秉承“设计创造价值”的使命,力求实现环境、社会、文化、经济效益的附加值,以多维度视角呈现创新设计理念,通过设计实现价值转换。 智谷创筑以差异化设计思维、前卫的设计理念、前瞻性视野以及完善的项目管控模式,用智慧和担当呈现设计魅力,关注社会、科学、技术、艺术对大众生活方式的影响,充分尊重在地文化,积极探索艺术与商业的创造性结合,为客户提供创造性的解决方案。 |
精华推荐
换一换




发表评论0