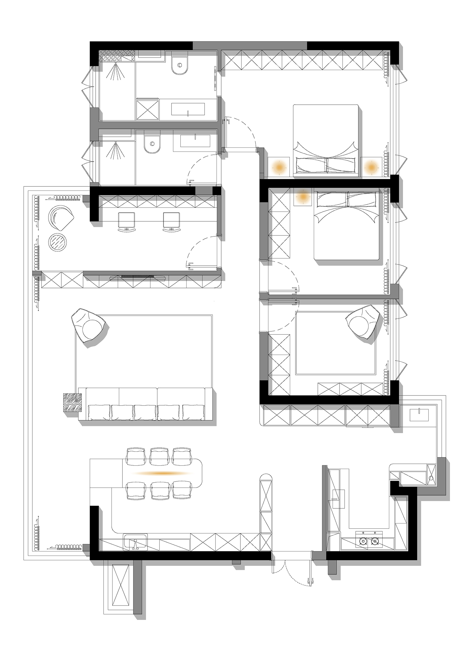
精装房焕新构想中,以开放式西厨与餐岛一体为核心重塑空间脉络,为双孩家庭打造充满对话感的成长天地。当父母在岛台洗切烹饪时,视线与客厅无缝衔接,既能随时照看孩子动态,又可轻松辅导功课流畅动线让陪伴自然发生。
原木与白鹭色融合出温润底色,呈现出视觉舒展的空间氛围。面对原始户型开门见厅的尴尬与玄关的局促,巧妙拆除正对墙体,以一组兼具遮蔽与收纳功能的柜体重塑归家序曲。局部嵌入玻璃隔断与厨房侧墙的开放,让虚实结合的柜体设计,在引入光线的同时,守护内部私密。
为化解增设餐厅西厨岛台带来的空间局促,将电视墙向书房内退数公分以拓宽客厅尺度,同时将景观阳台纳入公共区域,最大化延展活动范围。 电视墙以简约几何线条构筑视觉焦点,一侧嵌入电子壁炉营造温暖氛围。而原始阳台则采用玻璃隔断与可调节百叶帘,既引入充沛光线又保留空间弹性,让客厅与书房形成通透且富有层次的互动关系。
摒弃传统布局形制,仅以地毯、沙发、单椅与灵巧边几构筑松弛场域,为家人留白出宽绰的活动半径。一袭淡绿色花瓣单椅、蕴含天然肌理的洞石边几,再点缀几簇清新绿意,它们自在组合便成为空间中不经意的雅致端景,在流动的时光中静默成画。
环绕着“亲子对话岛台”展开的,是一个功能与情感并重的餐厨空间。餐桌岛台为家庭的联结纽带,当父母在此忙碌时,视线可与客厅无缝交汇,轻松照看孩子、辅导功课或闲话家常。 一侧由玄关延伸而至的白鹭色、原木与洞石巧妙结合的餐边柜,维系了视觉的纯净与统一,内里却暗藏玄机,巧妙收纳了零食拉篮与各类厨具杂物。流畅的动线邀请家人参与简餐制作,让烹饪、学习与陪伴交织成温暖的生活图景。 家政阳台纳入后开放厨房,白鹭色为基调,U型布局。不仅有效引入充沛光线,更使家政区、玄关与餐厅的视野贯通融合。这种无缝衔接的空间结构在视觉上延伸了整体尺度,营造出豁然开朗的通透感,让家人在烹饪、清洁与用餐等多种场景中始终保持着紧密的互动联结。 在确保自身功能完备的前提下,巧妙让渡部分面积予客厅以换取更开阔的公共区域,继而蜕变为一个集工作、学习与收纳于一体的多功能书房。空间延续原木与白鹭色的清新搭配,沿墙定制超长原木书桌可轻松满足多人同时使用,上方则配备整排吊柜,高效收纳孩子们的课本与读物。 主卧通过更改入门动线,巧妙化解直视睡眠区的布局。沿墙体定制整排储物系统,充分满足大量收纳需求。 空间在原木与白鹭色的基调中,融入一抹柔和的浅沙色,搭配豆蔻绿床体营造出宁静氛围。两侧不对称的壁灯与吊灯设计,在简约中勾勒出精致细节,共同构筑兼具实用功能与温柔质感的休憩空间。 主卫采用轻盈推拉门节省空间,通过内退淋浴区优化布局,并加长台面实现双人同时使用的便捷。浅沙色基调中融入炭黑柜体增添沉稳质感,在满足高效收纳需求的同时,营造出简约现代的浴室氛围。 项目地址:成都·天恒傲云天府 设计类型:精装改造+全案全包 项目面积:155平方米 设计风格:现代风格 格局分布:四室二厅 设计机构:成都宏福樘设计 |
精华推荐
换一换




发表评论0