清雅极简的格调,在材料的运用和布局的设计而与众不同。房屋不仅仅是空间本身的呈现,更是对人们生活方式和审美情趣的引导和塑造,为人们带来了无限的生活可能。让我们一起领略这些充满艺术气息的空间作品,感受设计与艺术的无穷魅力。 玄关
以玄关作为视觉的起点,“月光”如幕倾泻汇成景色,使整个空间饱含强有力的生命能量。协调空间、光影与艺术的关系,烤漆材质打造的竖行格栅状搭配悬浮式装置,呼应空间的纵深感。下方用大理石做矮台相呼应,一颗亮起的月球灯在两者间熠熠生辉,圆润的造型与棱角分明的柜体达到视觉上的完美平衡。
恰到好处的镜面水波纹带来节奏的变化,点缀以层层叠叠的诗意,为空间注入至简之美。绿植与肌理感材质无声嵌合,自然的生机不言而喻。 客厅 客厅依附于独特的户型拐角搭配弧形沙发,大刀阔斧的结构遇到细腻的曲线,形成层次分明又错综的结构,建筑的力量感得到再次强调,大面积的敞开,引领着光线渗透入空间的路径。 电视背景墙宛如展开的画卷,采用整体定制的形式,侧边延伸做弧形倒角,与客厅的户型墙体相得益彰,墙壁悬挂着艺术之作,层层叠叠借着光影,展现出灵动的意境。 思绪犹如流水缓缓,在这里轻盈飘荡。无主灯的设计让天花部分流畅简约,空间的视觉延伸展现出现代与简约的雅致之美。 餐厅 餐客一体化设计是流行且实用的设定,在保证餐厅明亮光线的同时让互动性也大大提高。空间以现代、艺术、情景为关键词,一体式的岛台餐桌采用经典的白色,搭配上几把潘顿椅,将艺术造型与实用性结合完美发挥。 厨房 从线到面的层次递进,独特的气韵和自然灵性油然而生。岛台面采用烟粉大理石,在这个白色的静谧空间里,石材本质的美感凸显。一体式的岛台餐桌兼顾了西厨的作用,与侧边墙柜内集成的冰箱联动起来让操作更加得心应手,因为业主不常用中厨烹饪,把一侧小阳台作为烹饪区。 卧房 寝卧区域延续极简设计理念,将空间尺度释放到最大化,精巧的工艺细节打造出私密空房间的静谧氛围,提高生活日常的幸福感。墙面与定制柜的平整,温和的引导着人们情绪,揭示着空间功能及使用场景的变化。 床榻的造型设计,悬浮于空间之内创造了一个平衡的睡眠环境。如篆刻般的床沿配合上灰白的床褥,竟让人感到一些禅意隐喻其中。绿意盎然,细致入微的设计流露着主人对生活的用心与热爱,宛若诗人笔下的抒情之意。 寝卧区域侧边的衣帽间,依据需求将设计的灵感洒下,在每一寸空间里描绘出幻想与遐想的美丽画面。一个实用的洗漱化妆区,一体成型的洗漱台搭配上可抽拉式水龙头,让我们在这一方小小的天地里,品味着生活的美好与细腻。 独立的马桶间与卫生间洗漱区和淋浴区分开,更加优雅从容。 客房 客卧旨在营造舒适的睡眠环境,从温馨与适用多角度诠释空间的美学态度,以较中庸的简约设计,营造一个舒适大方的寝卧环境即可,不浮不躁。 书房 书房的桌面安装于墙上是整个空间的设计亮点,也是点睛之笔,极其考验制作细节与工艺,更体现设计阶段的严谨性。它调整了空间的韵律和节奏感,让空间利用率最大化,超长的办公区域给人无穷的发挥空间。上方采用整排的白色吊柜来增大收纳储物空间。 空间功能的转换,书房的墙柜区域我们做了一个隐藏式的折叠床,全功能书房设计诠释私密有度之境,在有宾客需要留宿的时候,可以打开成为一张宽阔的客床,实用性MAX! 卫生间 对于当代设计而言,空间的“实用性”从不该浮于表面,而是藏于内心最深层的设计哲思。卫生间在简约的造型设计下,搭配上玻璃隔断,与户型结构完美契合。卫生间的地面和墙面采用了哑光材质,更显温暖柔和,同时也不容易留下水渍,让空间时刻保持干净整洁。浴室柜和淋浴分别定制了金属拉丝银材质的壁龛,分别放置洗护用品。 业主需求 本案业主是一位女性,平时基本是独自一人居住,父母偶尔同住。居家环境需要清雅与实用,卧室的衣帽间是必须,洗漱化妆区域以及独立的马桶间是生活的仪式。对于办公区域也希望拥有临时居住的功能性。在多番沟通和对接后,确定了这套极简风格的装修。 原始结构图
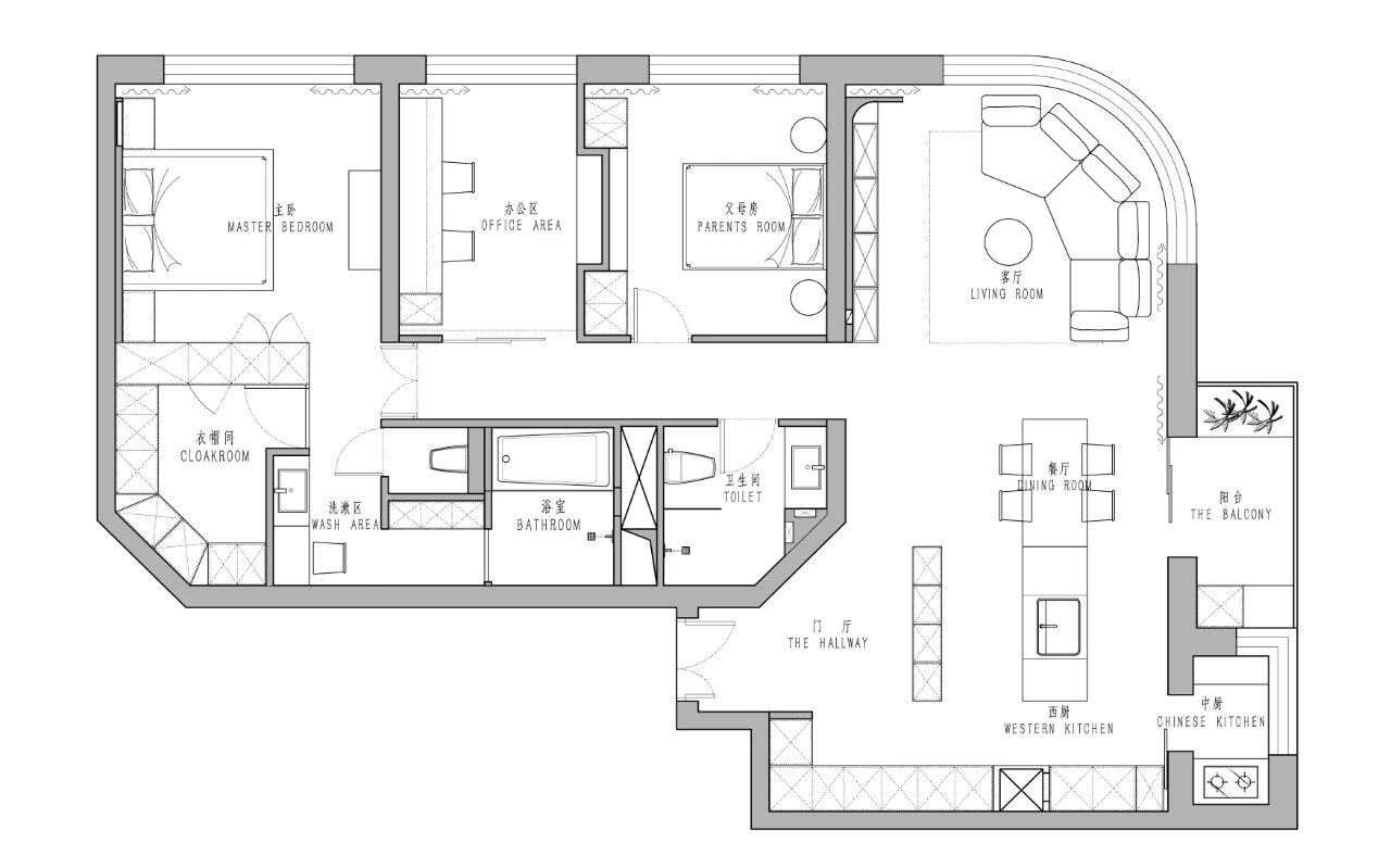
原始户型分析: 1.原始厨房空间狭小闭塞。 2.卫生间独立在外,导致主卧没有私享卫生间。 3.主卧空间较大,衣帽间比例较小,分布不均。 4.次卧空间狭小。 平面布置图
设计改造: 1.将原有玄关位置隔断拆除,设置独立大气中置玄关。 2.将不常利用的中厨隔断内缩,连通餐厅设置更大的西厨就餐区域,更显开阔。 3.客厅位置合理布局,借助弧角摆放定制沙发,提高空间利用率。 4.主卧重新划分布局,将衣帽间区域扩大,利用房门的设计,将主卫纳入房内,划分干湿分离区域以及独立马桶间,满足业主日式整体淋浴房需求。 项目信息 项目地址 | 北京 · 公园大道 建筑面积 | 174㎡ 使用面积 | 130㎡ 全案设计 | 启帅 |
精华推荐
换一换



发表评论0