本案其独特的空间布局和可拆除的内墙赋予了设计师无限自由的发挥空间。一次”开放命题“的改造,从功能到居者的体验,设计语言在空间表达,每一次的探索与感悟,都可以将两者深度结合。都市的喧嚣在外被隔绝,这里是表达的自由之所。 客厅
客厅的布局基于原有的结构,最大限度地将空间舒展。瓷砖的颜色与墙漆,采用一致性处理,搭配深蓝色的云朵沙发,感受层次的饱满。每一处细节都散发着工匠精神,物物有致,光线的晕染则采用了两款抽拉式的射灯作为主要照明设备。
设计师充分利用窗户下方的15公分高度,将空间分层依托于原始框架进行布局,这个独特的设计,不仅有效地利用了空间,也为生活增添了一份别样的风情。窗户的墙壁,选择了黑色木地板作为装饰,色彩的延伸于地板与地台的衔接处,黑色的内敛低调,搭配墙面的优雅纯粹,清冷的质感,瞬间唤醒心灵。 厨房 厨房的合理布局直接决定了生活的体验与品质感,丰富的储物空间,通过左半边的墙面的L型橱柜实现。右侧,一个独立的岛台成为了厨房的焦点。这不仅极大地增加了储物的可能性,让烹饪过程更为流畅。 为了确保台面既实用又美观,设计师特意选择了金属板作为材料。与传统的石材台面相比,金属板更加轻薄,视觉冲击十足。相较于美学艺术的同时,它的清洁和维护也相对简单,极大地提高了厨房的使用舒适度。 冰箱选用了与台面的质感十分相近的材质,使得整个空间更加和谐统一。金属板作为台面,巧妙地向上延伸,避免了贴砖处理,既实用又能保持整体风格的连贯性。 在橱柜的一侧,我们采用了高吊柜的设计,使得空间得以充分利用。而在另一侧,我们则选用了层板的形式,这样既能满足收纳需求,又不会让空间显得过于拥挤,保持了视觉的开阔感。 岛台简洁的设计,采用了金属板的包裹,让空间干净利落。这样的设计,无疑为我们的厨房带来了更多的便利与美感。岛台上的金属台面以及银质水龙头,赋予了空间一种现代感的气息。层板等比例高度的排列,线条交错搭配,共有一种特定的节奏,使得整个空间井然有序。 餐厅 空间的左侧设计巧妙,开放格依托于衣帽间的背部预留空间所成。开放格的设计在展示中即充分利用了空间,又增添了生活情趣。 圆形餐桌与圆凳的搭配,在动线的引领下,将空间预留。在餐区的照明上,同样采用了两款抽拉式的射灯。这样的设计不仅能够调整光线的角度,还能够根据需要增加或减少光源,使整个餐区光线明亮,氛围舒适。 软装选择了Hya品牌的一款蓝色和红色调的餐桌和圆凳,其蓝色的桌面颜色与沙发的颜色交相辉映,为这个以灰色为主调的空间注入了强烈的视觉冲击力。 我们亦挑选了Vitra品牌的Standard Chair单椅,特意挑选了同样金属质感与灰色座面的款式,以保持整体的和谐统一。 主卧 不同功能区域毫无边界所限,自由的态度彰显家的温暖。床垫搭配地台的形式,在纯白色床品的铺陈下,彰显出一种淡泊明志的生活态度。地台由黑色木地板打造,其独特的材质与浅灰的色彩形成鲜明的对比,既展现了现代感,又不失温馨的氛围。不仅满足了男主的实际需求,更体现出他对生活的独特理解和追求。 黑灰经典的搭配,展现空间层次的丰富,不同材质与线条组合保持不同区域的连贯性,美学也移步至不同区域。三星画境电视,可以很好的满足客户对电视不固定的想法,同时也符合男主审美。电视可以移动到沙发区、亦或是移到床尾,满足不同场景。 衣帽间 衣帽区,以左右对称的入口作为显著特点。这不仅仅是一个普通的收纳空间,其背面巧妙地被设计为展示柜,使得实用与美观并存,充满了独特的艺术气息。 洗衣机和烘干机被巧妙地安置在衣帽区,且与卫生间紧邻。这样的设计充分考虑了生活动线的合理性,使得沐浴之后的衣物能够更方便地塞入洗衣机进行洗涤,而烘干后的衣物也便于整理并收纳进衣柜。更体现了对生活的细心照料和独特审美。 在衣帽区的左右两侧,分别设有男主专用的衣帽柜。这些柜子的空间宽敞,能够轻松容纳大量的衣物。面对这组矮柜,一边是卧室的床头柜,另一边则是衣帽区的收纳柜。 卫生间 卫生间优雅高端,采用了一款黑灰色调且肌理感十分自然的瓷砖,用材质营造空间。极简不代表简单,不同的光影依附在材质上,营造出一幅缓缓展开的宁静景象。 将洗漱功能外置,以实现空间的最大化利用。与墙面色调相同的烤漆柜,这样不仅能保证整体色调的统一,也能增加墙面的层次感。浴室柜柜门板将水盆完全包裹的设计,这样既能保护水盆,也能让视觉上更加的整体和极简,同时搭配了嵌入式水龙头和方正的镜子。 淋浴选择了嵌入式喷头,为了营造出更好的沐浴氛围,淋浴区还特别设计了L型灯带。此外,卫生间内采用了油磨砂玻璃作为淋浴与马桶隔断,既保证了空间的通透性,又增添了一份现代感。 口袋门的形式,完美地隐藏在墙内,极大地方便了日常使用和人性化考虑。 马桶则采用了壁挂式设计,悬浮在空中,使得清洁更为便捷。而马桶上方的储物柜,极大地提升了卫生间的使用效率。柜子下方灯光作为氛围的点缀,带来一种趣味感,为此增添了温馨的氛围。 业主需求 对于这个独居的房主来说,他希望打造一个属于自己生活方式的独特空间,家具与空间的功能,能够发挥无限想象。考虑到房主的需求和空间的特性,设计师对整个空间进行了重新规划。设计了衣帽区、干湿分离的卫生间、开放式的厨房、舒适的睡眠区、休闲的娱乐区以及用餐区等,功能的设计搭配艺术清冷的质感,瞬间唤醒心灵。 原始结构图
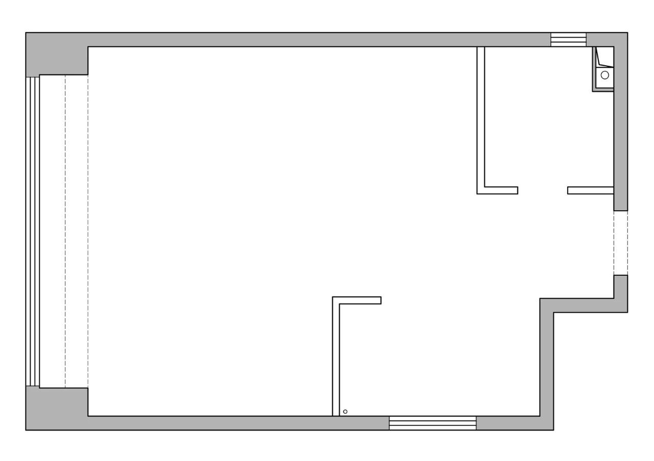
原始户型分析: 1.原始入户的右手边为一个空间,包含了卫生间,洗漱、淋浴和坐便的功能集合。 2.厨房空间位于入户门的左侧。 3.厨房的墙体,将整个空间分割细碎。 平面布置图
设计改造: 1.将卫生间墙体拆除,卫生间门洞改方向,空出门厅,将门厅储物功能最大化。卫生间只保留淋浴和坐便功能。 2.客厅结合窗户下方的高度差,做了一个地台床,作为卧室(睡眠区)。 3.厨房采用开放式结构、集成了岛台和餐桌的形式。 4.客厅为自由式,不拘泥任何家具摆放与生活方式。 项目信息 项目地址 | 北京 · 朝阳区 建筑面积 | 62㎡ 使用面积 | 45㎡ 全案设计 | 起帅 |
精华推荐
换一换




发表评论0