|
本帖最后由 拓者r58r4xa5 于 2025-11-24 20:32 编辑 以“复合空间主义”,开启98㎡的无限可能 关注东余 掌握全案设计逻辑 项目类型:高层住宅 项目面积:98㎡ 项目坐标:重庆
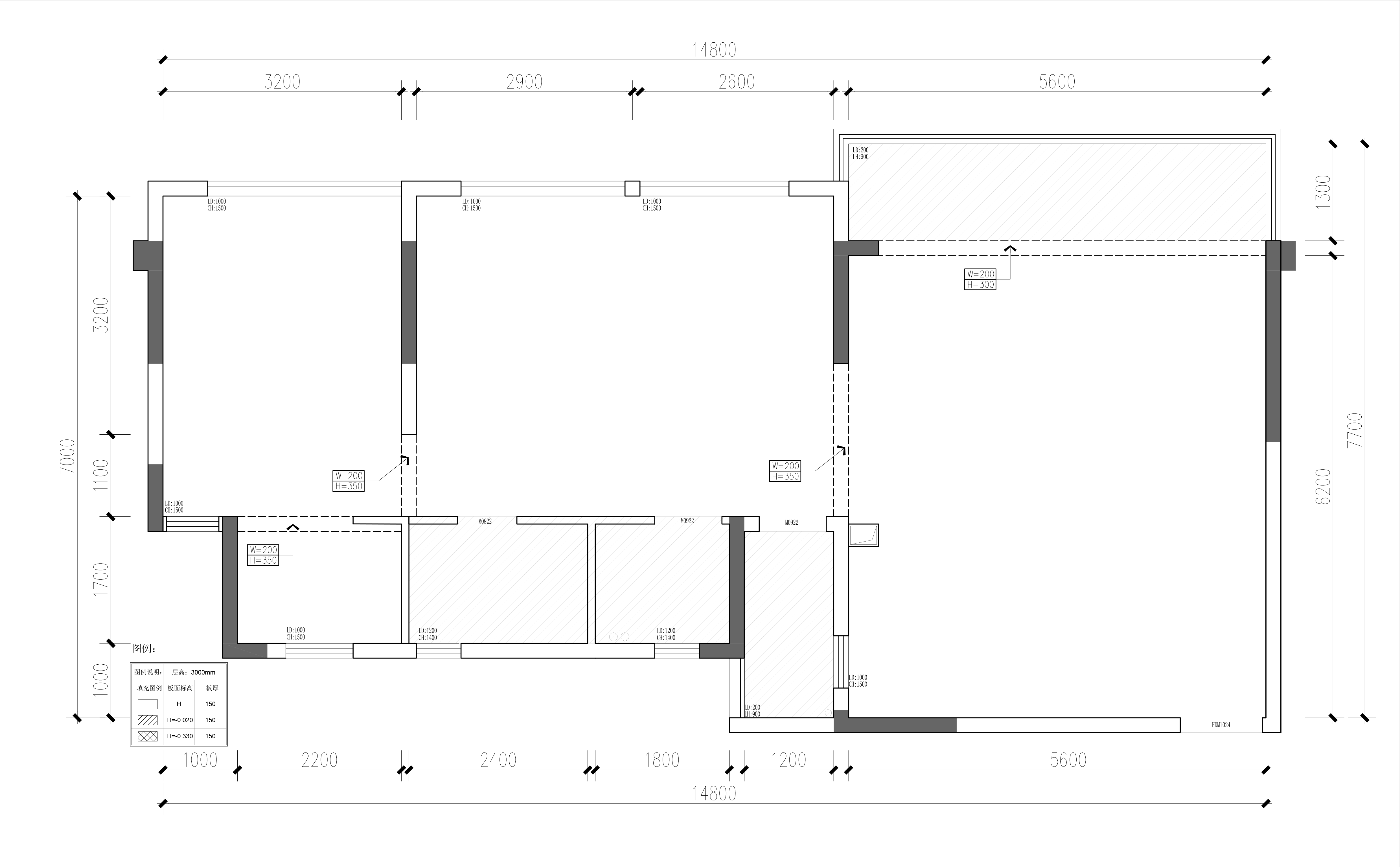
优化设计:东余设计 原始结构图
基本情况和设计需求 基本情况: 1、家庭常住成员:2口人(业主两人) 2、未来3~5年会考虑要一个孩子 3、不考虑客房 4、作为婚房使用 设计需求: 1、希望空间温馨并且有有个性 2、厨房很小、想做大一点并且有餐边柜和水吧台 3、需要考虑一个壁炉、需要岛台 4、需要一个书房,最好是开敞式使用(满足多种场景) 5、两个卫生间都很小、特别不喜欢 6、女主人需要一个衣帽间 手绘方案
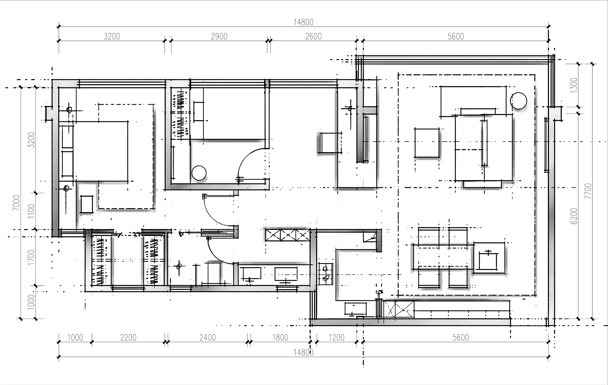
平面方案布置图
关注东余、服务全国设计师! 东余业务合作 1、高定户型优化合作 2、SU模型表达 3、全案设计课程 超高性价比、值得你拥有! 联系我:DYDD-001 官方公众号:东余设计(关注官方公众号 了解最多项目完整动态) 本文以及方案均为东余原创 已申请原创保护 转载注明出处! |
精华推荐
换一换




发表评论0