有物空间设计 | 鮨十五

2025-11-25/ 酒店餐饮/ 餐厅空间/ 只看大图 阅读模式
仅供分享不做任何商业用途,版权归原作者所有,谢谢配合。

马上注册,结交更多好友,享用更多功能,让你轻松玩转社区。

您需要 登录 才可以下载或查看,没有帐号?注册

x
tz (1).JPEG

一面之景, 隔断喧嚣

鮨十五,如亭,如匣。一面之景, 隔断喧嚣。 路人借景窥探一隅,食客循径始入厅堂。那方小景,是内与外的交界,人看我,我观人,气息交融,自成天地。

tz (5).JPEG




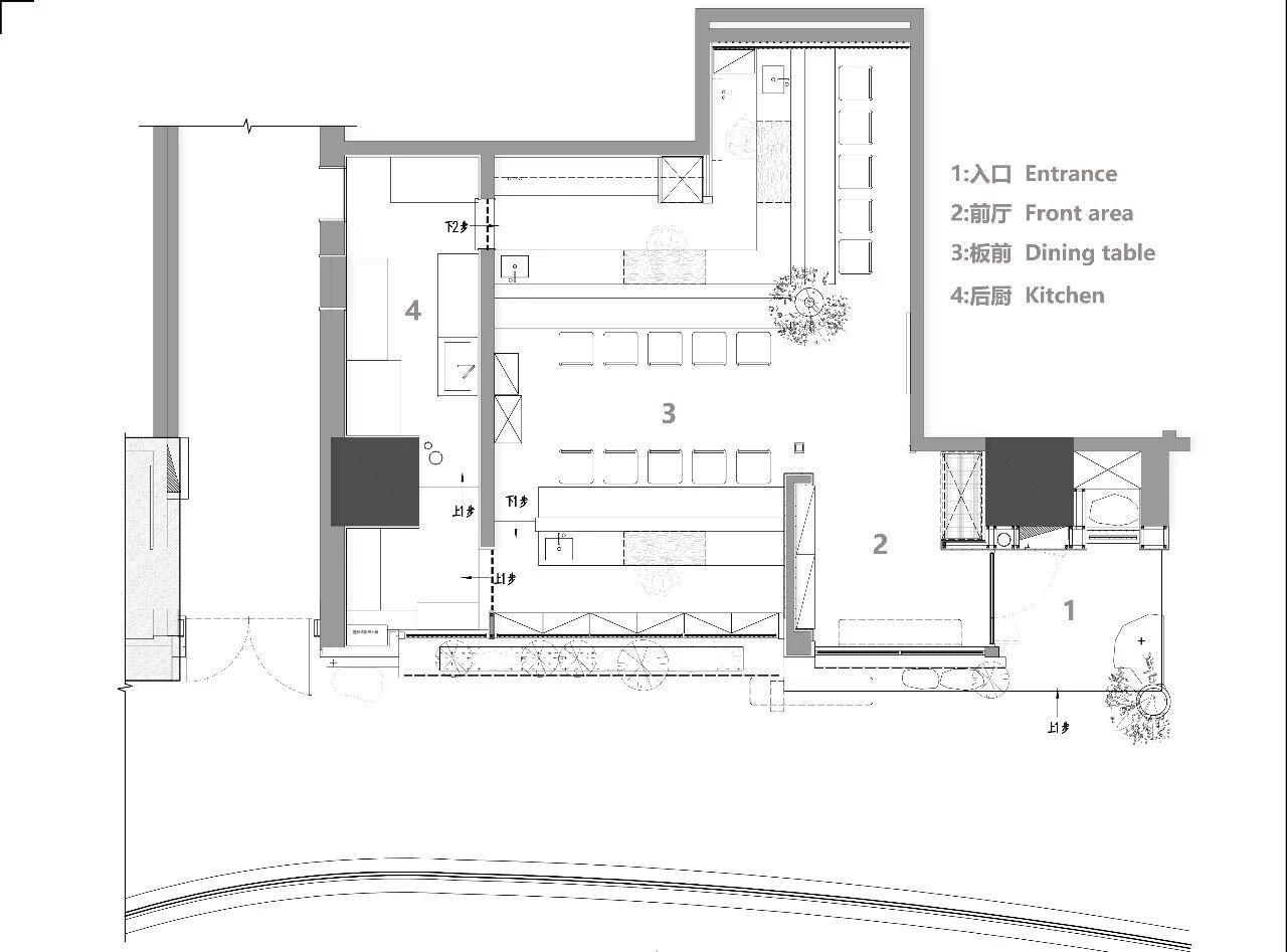
项目位于光环购物公园户外中心区域二楼,场地是一个小铺+原本商业的公共卫生间,总共室内70平方米左右。一面玻璃幕墙,三面实体墙。


时间,是前期最棘手的问题——现有小铺仍在租赁期,撤场时间是8月中旬,而项目甲方则计划9月中旬开业。若按常规方式待前商业撤场再复尺设计,设计时间+施工时间赶在9月中旬这个节点是定然无法实现的。于是,设计师试图透过现有格局预判拆除后的模样,结合建筑图纸复核了外围能确定的尺寸,也根据现场情况预判了拆除后可能遇到的问题,所幸基本预判准确,为紧促的工期省下了宝贵的时间。





大部分城市商业体中的omakase,寿司师傅背后都是一面实体墙,或有挂画,或有一些设计过的造型,客人在观赏寿司师傅做餐之余,更多是一种“面壁”之感。而甲方和设计师始终希望带给客人的是一种自然且轻松的用餐氛围…




七十平方米,要容纳后厨与客座,每个决定都像是在做减法。除去厨房的必须面积,在仅剩的空间内,设计师梳理出要解决的几大问题:

1. 如何在保证用餐空间面积足够的条件下,让入口有恰到好处的进入仪式感?
2. 板前料理的魔力,来自于师傅与客人之间恰到好处的互动距离。如何在保证舒适度的前提下,实现尽量多的客座数?omakase不同于其他餐饮类型,它必须要去结合每位师傅最大且最佳对应客人的数量,从而节约运营过程中的人力成本。  
3. 如何确保每张板的客人在用餐时都拥有相应景观视角?
4. 我们希望让每个座位都拥有属于自己的风景。
5. 这不仅指窗外的绿意,更是板前料理呈现时那份专注的美感。
6. 节约造价,似乎是设计师每个项目的必考题。








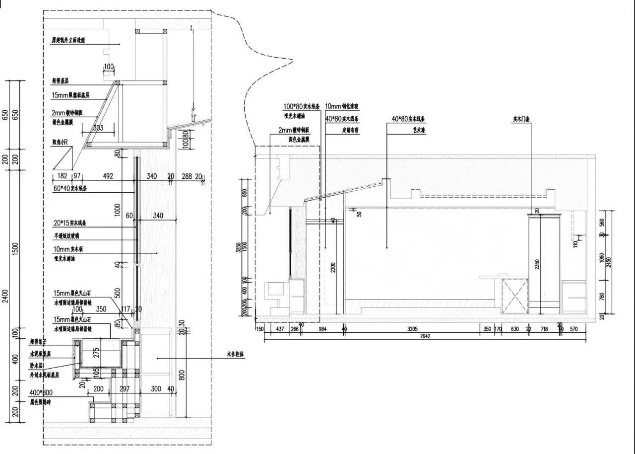
材质 —— 设计师希望在常见的材料当中去寻找它细节的不同之处。



外立面是一款特别的火山石,表面有洞石般的肌理。设计师寻遍重庆的石材市场,都无法呈现设计所希望的质感,几经寻觅后,最终只能在网上定制出这种洞石荔枝面的肌理感。



室内的浅色石材在安装好后,设计师手工去微凿了一些细节,包括在设计过程中根据空间气质给到了石材不同于常规的排版尺寸,实际这些都是不用额外增加成本又能获得一些特别细节的手段。



有几处发光的画面,为了让观者细看时质感更趋完美,在与平面设计一力老师反复沟通后,最终采用障子纸定制了设计师所需的画面,质感和透光细节都会优于传统发光灯膜,还多了几分手作的细腻。




灯光 —— 一个好的空间需要契合的灯光配置。在与灯光团队几番沟通后,以更少的灯具,营造出了更好的氛围,板前每位客人的食材都被恰到好处的灯光渲染出最好的纹理与色泽。同时为了方便后期运营过程中的使用,灯光也会根据不同的营业时段自动切换成不同的氛围,减少了人工调整的繁琐。



方案过程中,项目名称确定为“鮨十五”,恰巧板前设了十五个座位,算是双方不谋而合的默契吧……



经历的每一个项目,设计师都会综合产品、客单、造价,在地等因素,从中寻找到属于“它”的独特语言;设计师始终相信,每个空间都应该有自己独特的呼吸,即便使用相同的材料、延续相同的视觉体系,在不同环境里生长出的空间,也会有属于自己的表情。

正因如此,设计师对每个项目都怀揣期待,也满心敬畏。






项目信息

项目名称 | 鮨十五
项目地址 | 重庆市,渝北区
项目面积 | 90平方米
设计时间 | 2025年7月
建造时间 | 2025年8 月- 2025年9月
设计机构 | 有物空间设计
设计团队 | 阙桂平 黄磊 皮宏林
项目类型 | 餐饮空间
服务内容 | 硬装 / 软装 / 施工
项目经理 | 淡顺祥
品牌设计 | 一记设计|张一力
照明设计 | 玖烛照明
景观执行 | 芳汀造景
摄影版权 | 白川 / 有物空间设计


项目图纸

tz (2).JPEG

tz (3).JPEG

tz (4).JPEG


阙桂平(左)& 黄磊(右)
有物设计联合创始人


有物空间设计,设立于重庆,一个以设计为导向的专业顾问团队,专注于商业空间设计。

我们始终坚持以市场为导向,建立合理有效的运营,品牌,体验,空间与艺术思维架构。

我们希望自己是发现者,不断去发现空间独特的场所感与幸福感,让一切变得生动起来...我们同时也是倾听者,倾听来自人,空间,环境的声音,通过创造和谐的关系,去找到持久的解决方案。


精华推荐
换一换

发表评论0

有物空间设计 | 鮨十五
拓者推荐
  • 2026拓者 CAD户型方案 发布
  • 【武汉站—“樱”你而来】获客实操
  • 【武汉站—“樱”你而来】户型优化
  • 【武汉站—“樱”你而来】风水
  • 【梁志天】西安曲江·九曲松间
  • 无间-上海汤臣君品合院方案
  • 君品-汤臣金桥花园项目方案
  • 无间-上海大宁中建玖上琅宸
  • HWCD-烟台洲際酒店深化方案图册
  • 琚宾新作-资兴东江湖度假酒店
  • 2025拓者年费+案例Vip会员说明!
  • 【 拓者年费--CAD图纸】
  • 【 拓者年费--户型方案】
  • 【 拓者年费--豪宅视频】
  • 【 拓者年费--灵感图库】