i Go·平面方案户型优化周刊225期 ▏立体分区 动静相生:民宿空间的深度体验

2025-11-26/ 户型方案/ 户型交流/ 只看大图 阅读模式
仅供分享不做任何商业用途,版权归原作者所有,谢谢配合。

马上注册,结交更多好友,享用更多功能,让你轻松玩转社区。

您需要 登录 才可以下载或查看,没有帐号? 注册

x
本帖最后由 i Go 于 2025-11-26 13:36 编辑

“关注i Go,每周学习一个户型改造小技巧”




项目属性/工装/三层民宿/毛坯
项目套内面积/375

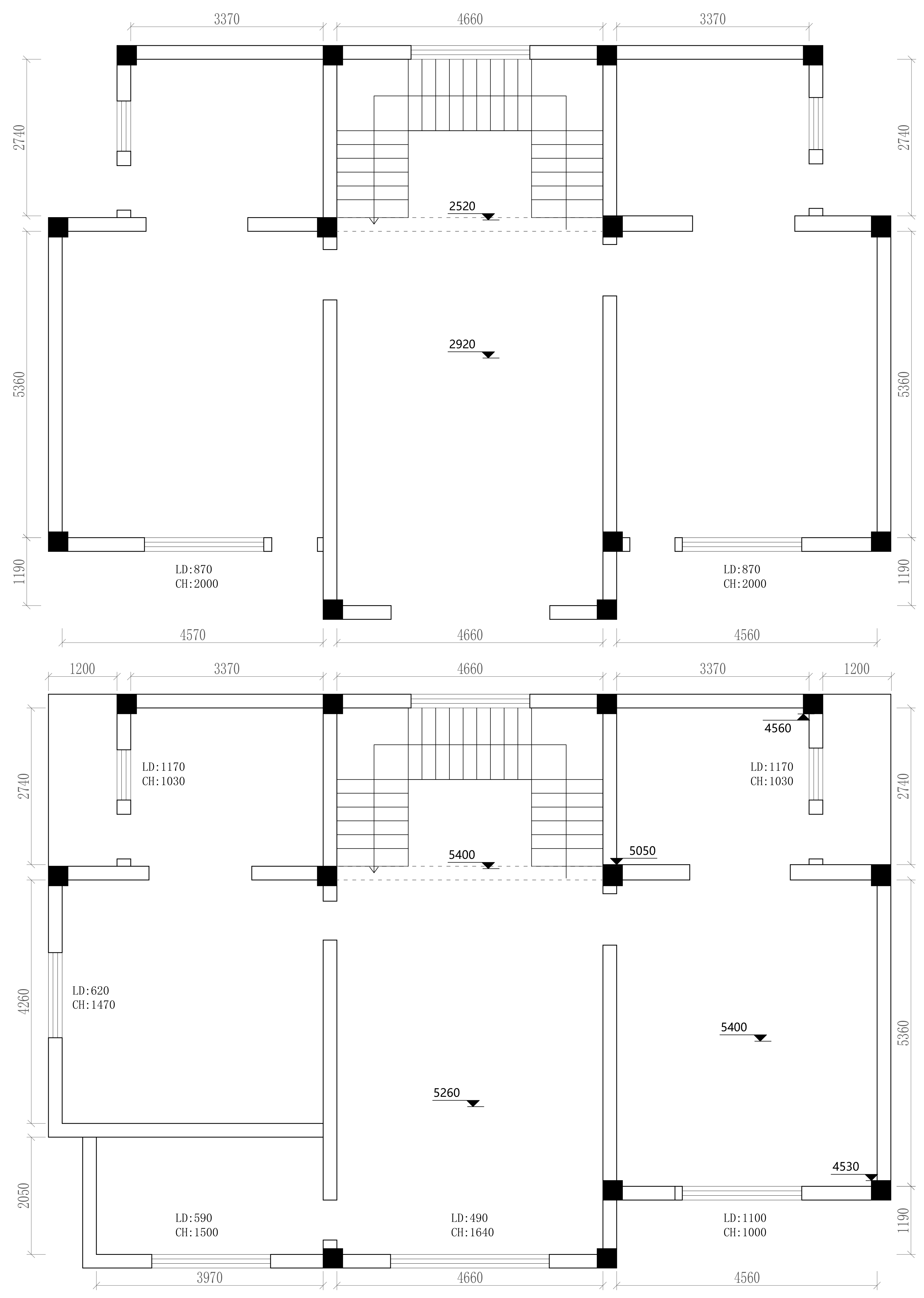
原始方案
Party A's demand.
原始.jpg

甲方需求-
Demand of Party A.
一层:休闲区,厨房,餐厅,员工房,一个客房
二层三层:以民宿住宅休息区为主,利用层高优势做成LOFT房


优化方案 1F
Optimization scheme.
水印1F.jpg

优化方案 2F
Optimization scheme.
水印2F.jpg

优化方案 3F
Optimization scheme.
水印3F.jpg
i Go 业务合作
高级定制户型优化合作 | 全案设计托管服务
服务全国设计师
行业首创—九大托管服务为您的全案项目保驾护航
您负责谈单 赚设计费 掌控全场
我们全力辅助 帮助全国设计师签单
官方微信:1131477025
-官方抖音:iGo户型优化(关注抖音 看最新案例)
-官方抖音:i Go户型优化
-官方小红书:i Go户型优化
微信公众号:iGo户型优化
3.jpg
*本文以及方案均为i Go原创 禁止转载 分享至其他平台
精华推荐
换一换

发表评论0

i Go·平面方案户型优化周刊225期 ▏立体分区 动静相生:民宿空间的深度体验
拓者推荐
  • 朴悦-华润小径湾-悦海白兰墅
  • 琚宾-杭州保亿观云钱塘城
  • 召禾设计-上海汤臣君品
  • CCD-华润置地南通澐璟
  • HBA&DAS-中海江南玖序
  • CCD-华润 CCBD 889㎡设计方案
  • 【召禾设计]天际江景超大平层方案
  • 【WSD世尊】建发·云启玉诸
  • CCD-华润玺宸上院中叠样板间
  • CCD-武汉绿城外滩玫瑰园别墅
  • 2025拓者年费+案例Vip会员说明!
  • 【 拓者年费--CAD图纸】
  • 【 拓者年费--户型方案】
  • 【 拓者年费--豪宅视频】
  • 【 拓者年费--灵感图库】