|
本帖最后由 拓者r58r4xa5 于 2025-11-29 19:56 编辑 从“居住机器”到“家庭成长绿洲”的智慧蜕变 关注东余 掌握全案设计逻辑 项目类型:高层住宅 项目面积:129㎡ 项目坐标:成都
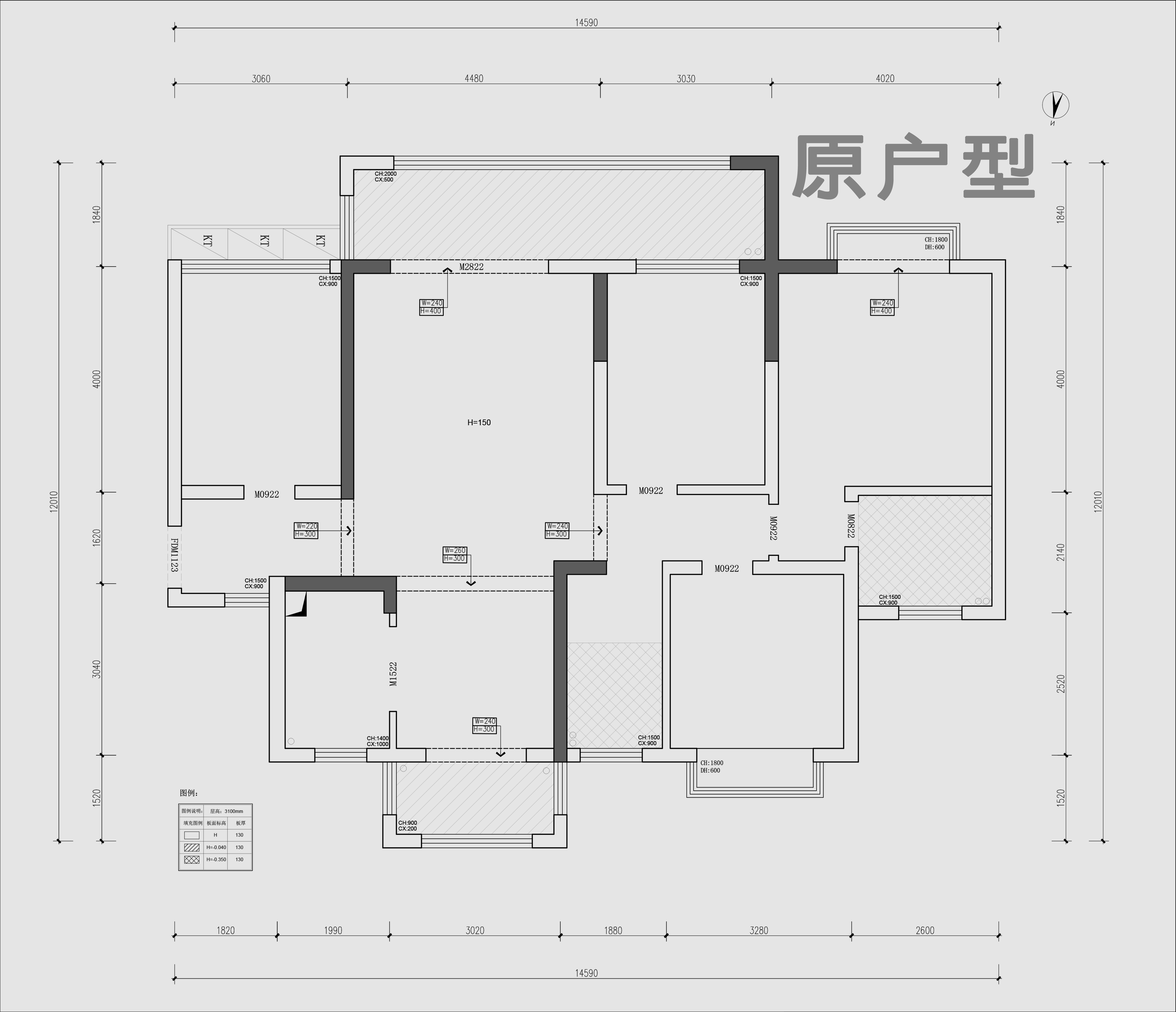
优化设计:东余设计 原始结构图
基本情况和设计需求 基本情况: 1、家庭常住成员:3口人(业主两人+孩子) 2、孩子目前10岁 3、父母过考虑过来居住 设计需求: 1、需要三个房间 2、需要一个开敞式书房 3、餐厅比较小、希望公区大气简洁 4、冰箱不考虑放在厨房里面 5、需要有一个练瑜伽的区域 6、需要考虑孩子学习、玩耍、储物等功能 7、主卧需要1.8米宽的双人床 手绘方案
平面方案布置图
关注东余、服务全国设计师! 东余业务合作 1、高定户型优化合作 2、SU模型表达 3、全案设计课程 超高性价比、值得你拥有! 联系我:DYDD-001 官方公众号:东余设计(关注官方公众号 了解最多项目完整动态) 本文以及方案均为东余原创 已申请原创保护 转载注明出处! |
精华推荐
换一换



发表评论0