本案屋主是一位从事审计的90后男生,工作中严谨自律,生活中喜好安静,爱宅家弹琴、撸猫。希望家实用和美观并重,别具一格。结合屋主的东南亚风情喜好,在柴米油盐的生活中保有一份仪式感,营造一方诗意情怀的小天地,是我们这次设计的侧重方向。
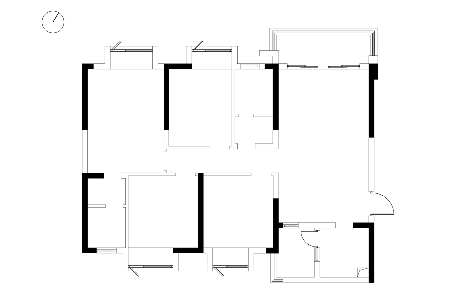
「屋主需求」 1.入户无玄关,希望进门有过渡空间并且增加鞋物收纳功能; 2.厨房比较逼仄,需要提升厨房空间的操作体验和餐厨空间的链接; 3.户型公区是竖厅格局,客厅餐厅被走廊分隔成左右空间,希望增加客餐厅的互动性; 4.需要家实用,同时可以营造出屋主喜欢的南洋空间调性。
「设计达成」 1.我们在入户增加了一个“盒子”,通过半开放的围合方式,界定出玄关的空间界限,在“盒子”左右两侧加入了入户鞋物储藏收纳的柜体,同时从视觉和心理上“羽化”了入户即餐厅的突兀感受,增加了空间的过渡; 2.我们把厨房和生活阳台两个不大的空间整合成一个空间,把家政功能融合进橱柜里面,也便于操作,空间释放后增加了采光和空间的实用性,我们采用大面积采光的玻璃移门,进一步模糊餐厨界线,并在靠近餐桌的墙面开了一个窗户,让光线可以延伸到餐桌,悄然拉近餐厨的距离,提高用餐体验; 3.我们把餐厅靠墙一侧做了卡座,与客厅沙发形成对望关系,虽然客餐厅被动线隔开,但是通过这样的布置,可以消除动线带来的空间隔阂,带入了更多的场景互动; 4.我们以静默的大地色和馥郁的木质调为视觉基底,橄榄绿点缀,以东南亚风情为灵感,将实用收纳与南洋氛围融合,在烟火日常中编织出静谧与浪漫。
在入户处,我们设计了一个半开放的集鞋物收纳和展示为一体的功能性“盒子”,入户后通过“玄关盒子”的过渡,再到餐区空间,拱形的海棠花玻璃窗保证了盒子的采光同时也为南洋风的空间氛围拉开了序幕。 餐区选择了圆弧餐桌+卡座的组合,让出入姿态更从容便利。厨房门窗采用大面积的海棠花玻璃,模糊餐厨的界定,增加了餐区的采光和用餐体验,承载三餐烟火,让平凡日常在光影流转间生出暖意。 厨房海棠玻璃门既保证了空间的通透感,模糊餐厨的界定,爆炒时关上门又能阻挡厨房的油烟,保证餐区的用餐体验。餐区圆弧餐桌+卡座的组合,保证餐区的透气感,也方便家人围坐用餐,交流一天的生活点滴。 客厅墙面以柔和的米色为基调,搭配橄榄绿作墙裙,营造出温暖又活泼的氛围。墙上挂着的流苏刺绣的工艺画和八角木框镜子,复古又精致,中式风格的花瓶中插着鲜切花,为空间带来生机与自然气息。还有那带有花朵图案装饰的柚木边柜,不仅实用,也彰显了南洋风格中对自然材质和传统工艺的喜爱。 餐厅与客厅之间开放式布局,空间更为通透,家人在餐厅用餐时也能欣赏到客厅的绿意,享受惬意时光。若有客人来访,开放式的空间也便于大家在餐厅和客厅自由活动、互动交流,提升社交体验。 书房橄榄绿的柜体与暖黄色墙面、柚木色百叶窗形成对比又和谐统一,材质选用天然竹木打造书桌椅,充满老南洋质感。彩色海棠玻璃移门设计了”葫芦“【福禄】独特花纹,不仅保证空间通透,让书房与走廊、老人房有视觉互动,也增添了复古韵味。屋主可以坐在书桌前,伴着透过百叶窗洒下的阳光阅读、工作,闲暇时,坐在钢琴前弹奏一曲,舒缓身心。 父母房空间色彩主调选用了橄榄绿,给卧室营造了沉稳静谧氛围,搭配米色丝绒窗帘与柚木百叶,增加了空间层次和私密性。床头的黑白虎纹软包,独特又复古,与墙上寓意健康长寿的工笔画相呼应,增添卧室的仪式感。客房虽不常用,却承载着对屋主对父母的关爱。这些细节,能让父母每次归来都感受到家的温度。 主卧对调了原来房间床头位置,这样可以得到一排6米+的系统衣帽储藏柜。 对调后的床头在卧室靠进门一侧,所以设置了一个床头屏风,用黑色线条勾勒轮廓,与米色墙面形成对比,既界定了空间又增添层次感。屏风采用了海棠玻璃和藤编的组合,既能不遮挡光线,又松弛透气,同时增加了睡眠区的安全感。 主卫选用了100*100暖黄墙砖搭配绿白菱格地砖,复古又活泼。黑色边框玻璃隔断,划分干湿区且增添精致感。花砖元素点缀墙面,营造出悠闲自在的南洋氛围。 设计团队:吾隅设计/荣烨 /罗裴瑶 地址:四川成都 项目面积:120㎡ WUYU DESIGN 设计团队 |
精华推荐
换一换



发表评论0