|
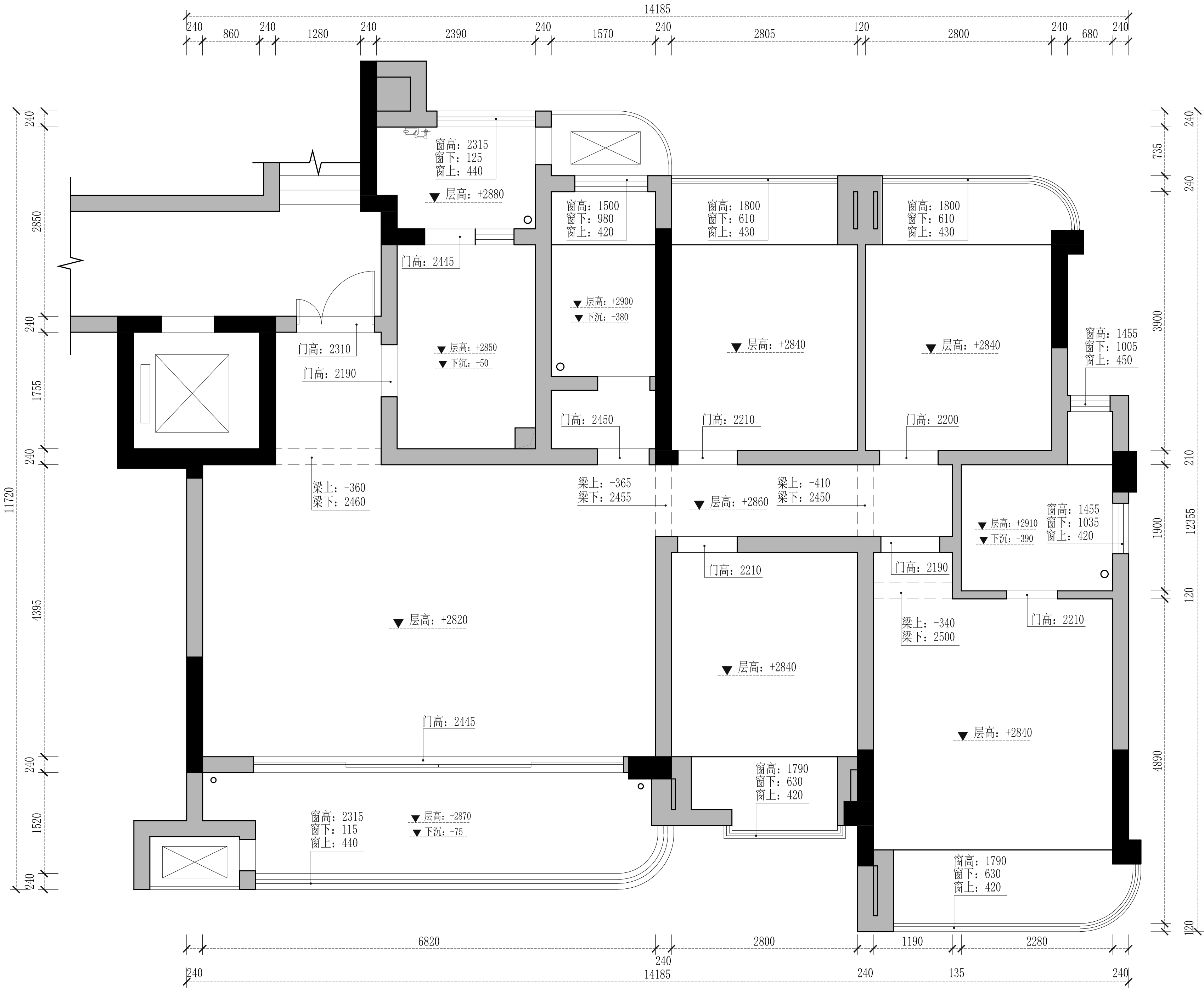
“关注i Go,每周学习一个户型改造小技巧” 项目属性/平层/毛坯 项目套内面积/130㎡ 执行设计/i Go空间设计事务所 原始方案 Party A's demand.
甲方需求- Demand of Party A. 阳台封掉 厨房扩大 主卧(衣帽间) 双台盆, 保留2间卧室 1间多功能房 要有趣味性 空间显大 优化方案 A Optimization scheme.
优化方案 B Optimization scheme.
i Go 业务合作 -官方抖音:iGo户型优化(关注抖音 看最新案例) -官方抖音:i Go户型优化 -官方小红书:i Go户型优化 微信公众号:iGo户型优化 *本文以及方案均为i Go原创 禁止转载 分享至其他平台 |
精华推荐
换一换




发表评论0