STUDIO PIZZA – 当代城市咖啡馆 地点:俄罗斯圣彼得堡 / 160 平方米 / 2025
关于 Studio Pizza是一家当代城市咖啡馆。 该项目的主要理念是创造一个时尚、视觉上富有表现力且“适合拍照”的空间,以精致的薄饼为中心,提供剪刀切割、特色鸡尾酒和高质量的音乐。
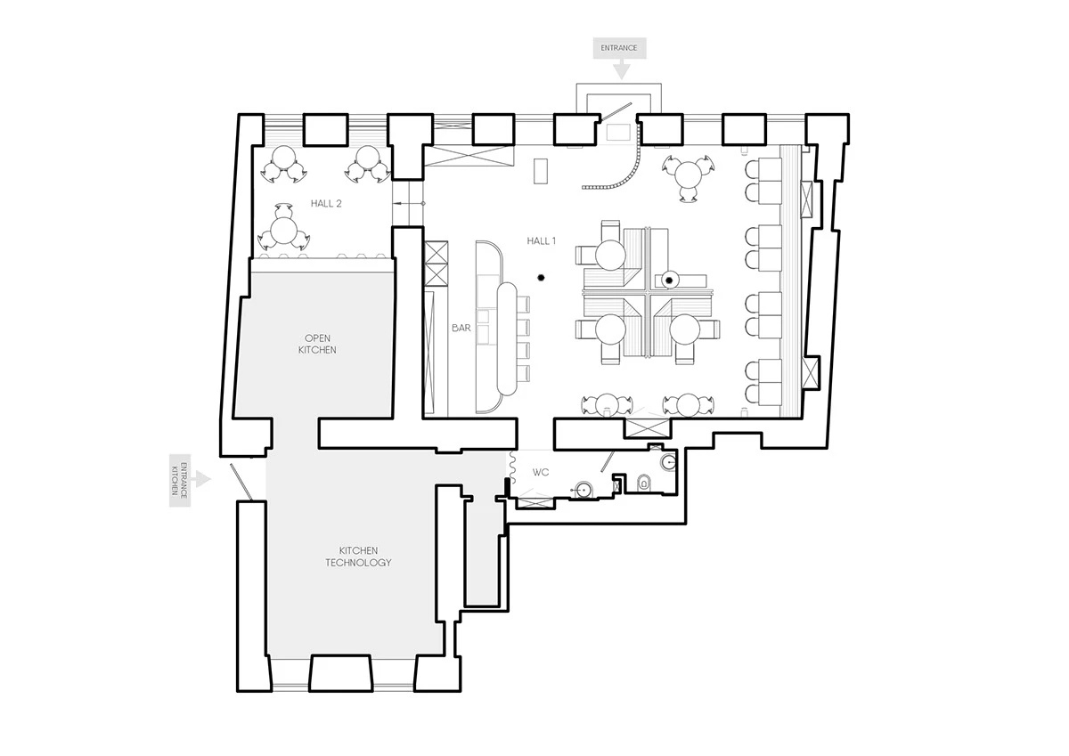
内部 最初,这个地方是一个办公室,有两个不同大小的厅,地面高低不平,天花板低矮,并且有两根金属柱和一根加固梁——乍一看似乎没什么特别之处。 较小的大厅被改造成一个开放式厨房区,并增加了座位。深色胡桃木面板以及与之相配的木质天花板和地板营造出一种亲密和封闭的感觉——一个“盒子”,与较大且更宽敞的大厅形成对比。内置的窗台座位使客人可以观看制作薄饼的过程。
在主厅中,天花板成为主要的设计元素:镜面金属板引入了未来主义的氛围,并带有微妙的复古元素。这个元素成为室内设计的标志细节,并视觉上扩展了空间。 入口区由玻璃砖构成的弧形墙定义,酒吧台也由玻璃砖构成,与之呼应。酒吧台和接待台是主厅中唯一使用深色胡桃木饰面的元素,形成两个空间之间的视觉连接。 胶合板仅在第一厅故意使用,以与较小厅和洗手间发现的胡桃木贴面形成对比,同时优化了项目的预算。 女主人的展位灵感来源于复古的Gale GS401A扬声器,而嵌在木墙中的圆形灯箱——“观景窗”——则是基于一张档案照片,捕捉到了日落的温暖光芒和动感。承重墙上的一个小凹槽为元素提供了深度,而轻微倾斜的墙延伸则允许精确集成并改善了空间几何结构。 室内的每个装饰元素都有其功能性和建筑上的考量。灯箱被内置在空间对齐过程中形成的壁龛中,而广告灯板则与窗户集成——靠近衣柜区域和主厅的线性座位区域。金属柱和梁包裹在带有六角形胶合板插入物的不锈钢外壳中。 洗手间特别值得称赞——它成为了一个独立的游客景点,喜欢拍摄复古照片的游客特别喜欢这里。它融合了背光玻璃砖墙的光芒、复古不锈钢水槽和复古灯的温暖橙色灯光。 The Studio Pizza的内部装修具有未来感和简约风格,并参考了中世纪现代美学。一些家具,包括椅子,是从跳蚤市场采购的,增添了真实性和特色。每一个细节都经过精心策划——每个角落都吸引视线——但咖啡馆依然明亮且不杂乱。 Studio Pizza不仅以其美食和音乐吸引人,还以其美学效果吸引人。这是一个人们想停留、拍照、录像并分享自己感受的地方。 项目的主要理念是创造一个时尚、视觉上引人注目且适合在Instagram上分享的空间,重点是精致的薄饼,这些薄饼用剪刀切割,原创鸡尾酒和高质量的音乐。 最初,这个地方是一个办公室,有两个不同大小的房间,地面高度不一,天花板较低,并有两根带有加强横梁的金属柱子——乍一看,没有什么特别之处。 小厅被用作开放式厨房和部分座位区。这里使用了深色橡木面板;天花板和地板也采用深色木材。这种“盒子”式的设计营造出封闭和私密的感觉,与更明亮、更宽敞的主厅形成对比。在窗台上设有柔软的座位——从这里可以观看平面包的制作过程。 在主厅中,主要的技巧是对天花板的处理:镜面金属条形成了一种未来主义的氛围,带有轻微的复古色调。这个元素成为了室内设计的标志性细节,并在视觉上扩展了空间。 入口区由弧形玻璃砖墙标记。吧台也由玻璃砖构成,与之相呼应。吧台和接待员的台面是主厅中唯一使用深色胡桃木饰面的元素。它们形成了两个大厅之间的视觉过渡。 胶合板仅用于第一厅,这是个有意识的决定,突出了与小厅和卫生间中使用的贵妃木饰面的对比,同时也优化了项目预算。 吧台的灵感来源于复古柱式 Gale GS401A,而木墙上的圆形灯箱则受到带有柔和落日光线和运动感的复古照片的启发。承重墙上的凹槽定义了该元素的深度,而倾斜的轻微加厚使其能够精确安装并调整房间的几何形状。 室内每一个装饰元素都有其功能和建筑上的依据。照明灯箱嵌入在墙面找平后形成的凹槽中,广告灯箱则融入到衣柜和线性沙发布置的窗户区域。金属柱和横梁被包裹在不锈钢和六角形胶合板元素的框架中。 卫生间值得特别关注——它成为了喜欢拍摄氛围感照片的客人自主聚集的亮点。这里融合了玻璃砖墙的灯光、不锈钢的复古水槽和复古灯的暖光。 Studio Pizza的内部设计充满了未来感和极简主义,同时带有中世纪现代美学的元素。部分家具,包括椅子,是在跳蚤市场上找到的,这为空间增添了真实性。每一个细节都经过精心挑选,每一个角落都值得细看,但同时咖啡馆依然保持轻盈和不繁复。 Studio Pizza不仅以美食和音乐吸引人,还以其氛围让人留连忘返。这是一个让人想停留、拍照、拍摄并分享感受的地方。 |
精华推荐
换一换



发表评论0