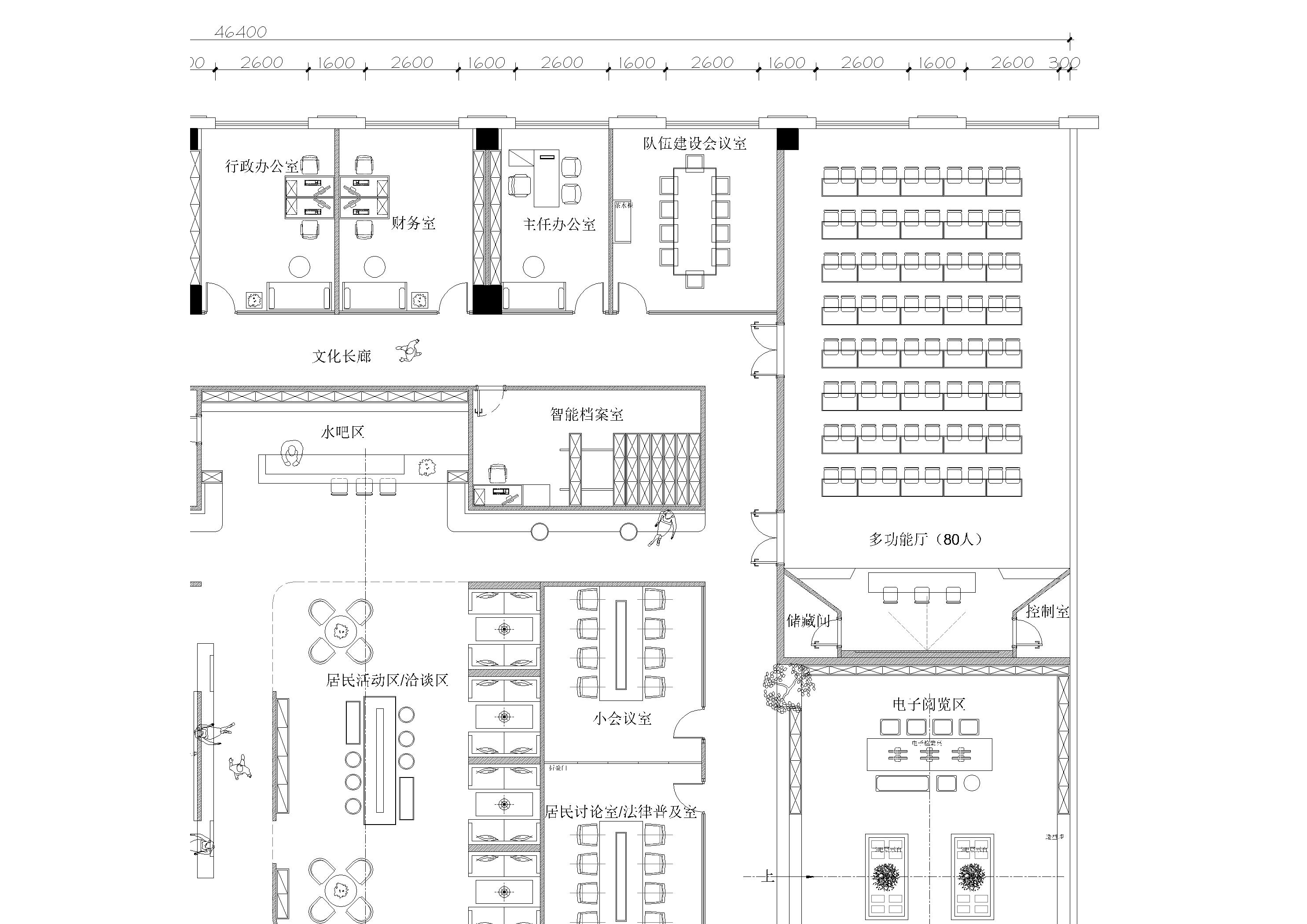
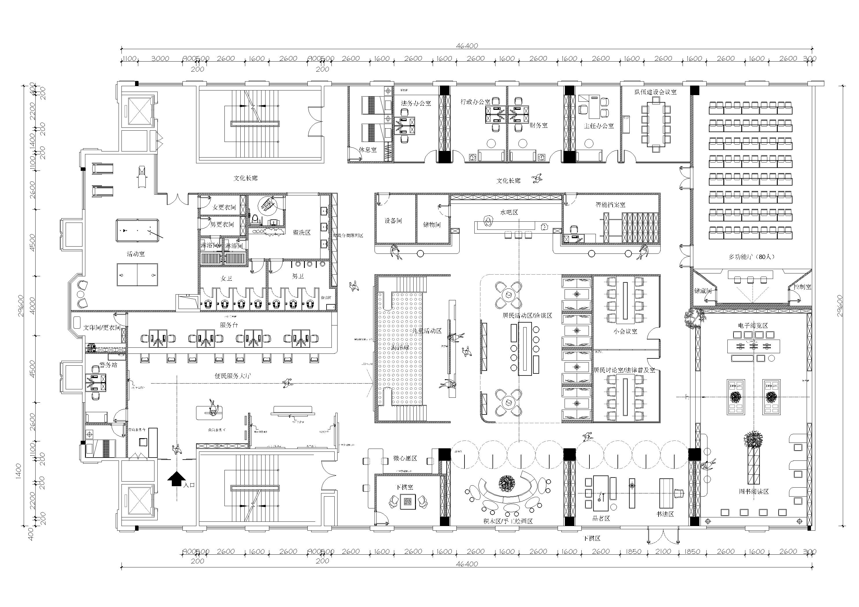
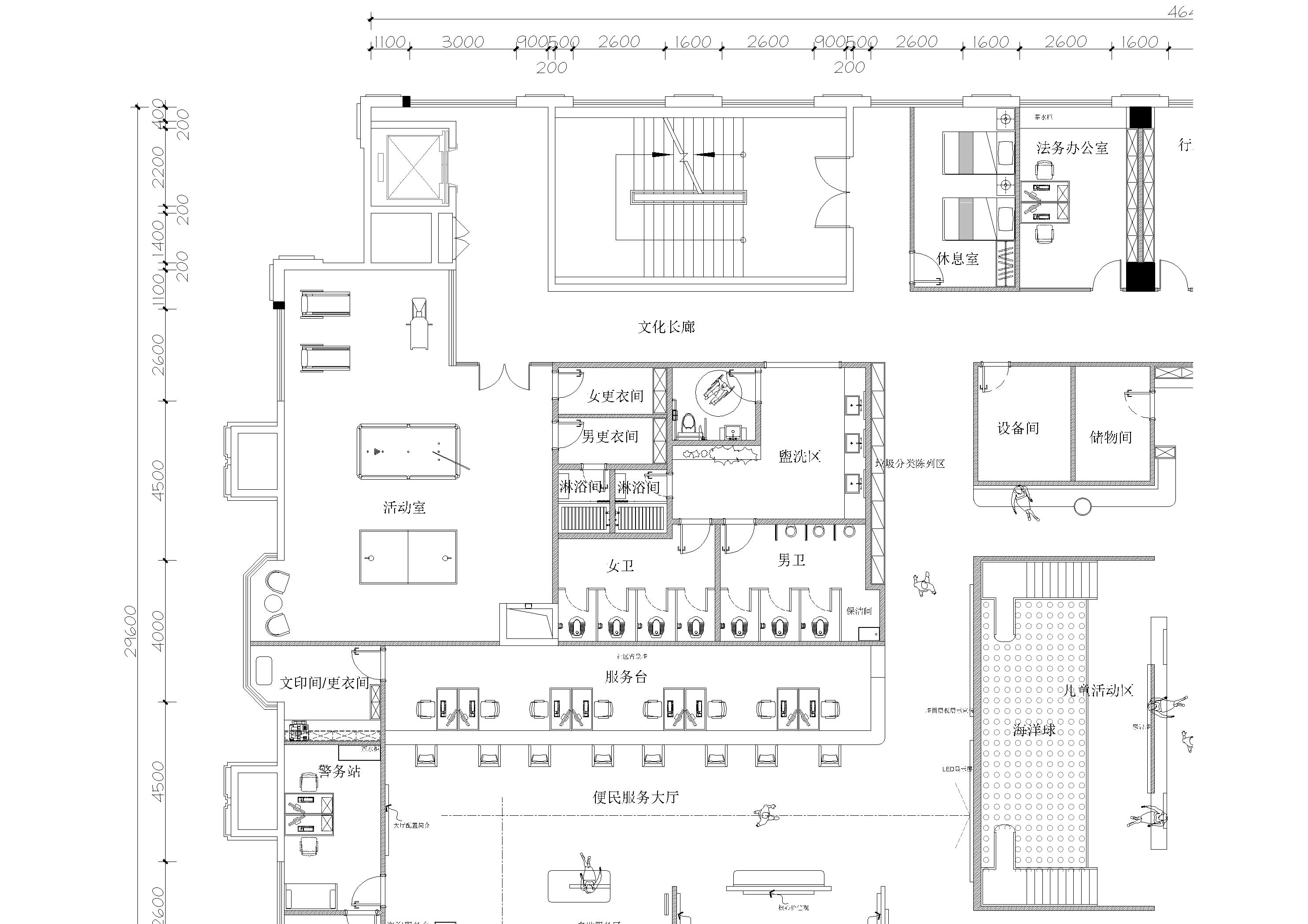
300㎡党群大型党群服务中心平面图

昨天 15:41/ 户型方案/ 付费方案/ 只看大图 阅读模式
仅供分享不做任何商业用途,版权归原作者所有,谢谢配合。

马上注册,结交更多好友,享用更多功能,让你轻松玩转社区。

您需要 登录 才可以下载或查看,没有帐号?注册

x
1.jpg
11.jpg
2.jpg
3.jpg
9.jpg
10.jpg

 

300㎡党群服务中心平面图.rar

1.22 MB, 下载次数: 0

售价: 3 交易币  [购买]

大型党群服务中心平面图.rar

1.74 MB, 下载次数: 0

售价: 5 交易币  [购买]

标签: 300㎡党群
精华推荐
换一换

发表评论0

300㎡党群大型党群服务中心平面图
拓者推荐
  • WSD世尊新作-南京顶级别墅
  • 苏州绿城越溪合院330样板间方案
  • 召禾邵程设计-上海徐汇绿城潮鸣东方
  • 杭州法式500户型合院别墅方案
  • 比佛利山庄1亿美元的豪宅!
  • 2025拓者年费+案例Vip会员说明!
  • 【 拓者年费--CAD图纸】
  • 【 拓者年费--户型方案】
  • 【 拓者年费--豪宅视频】
  • 【 拓者年费--灵感图库】