|
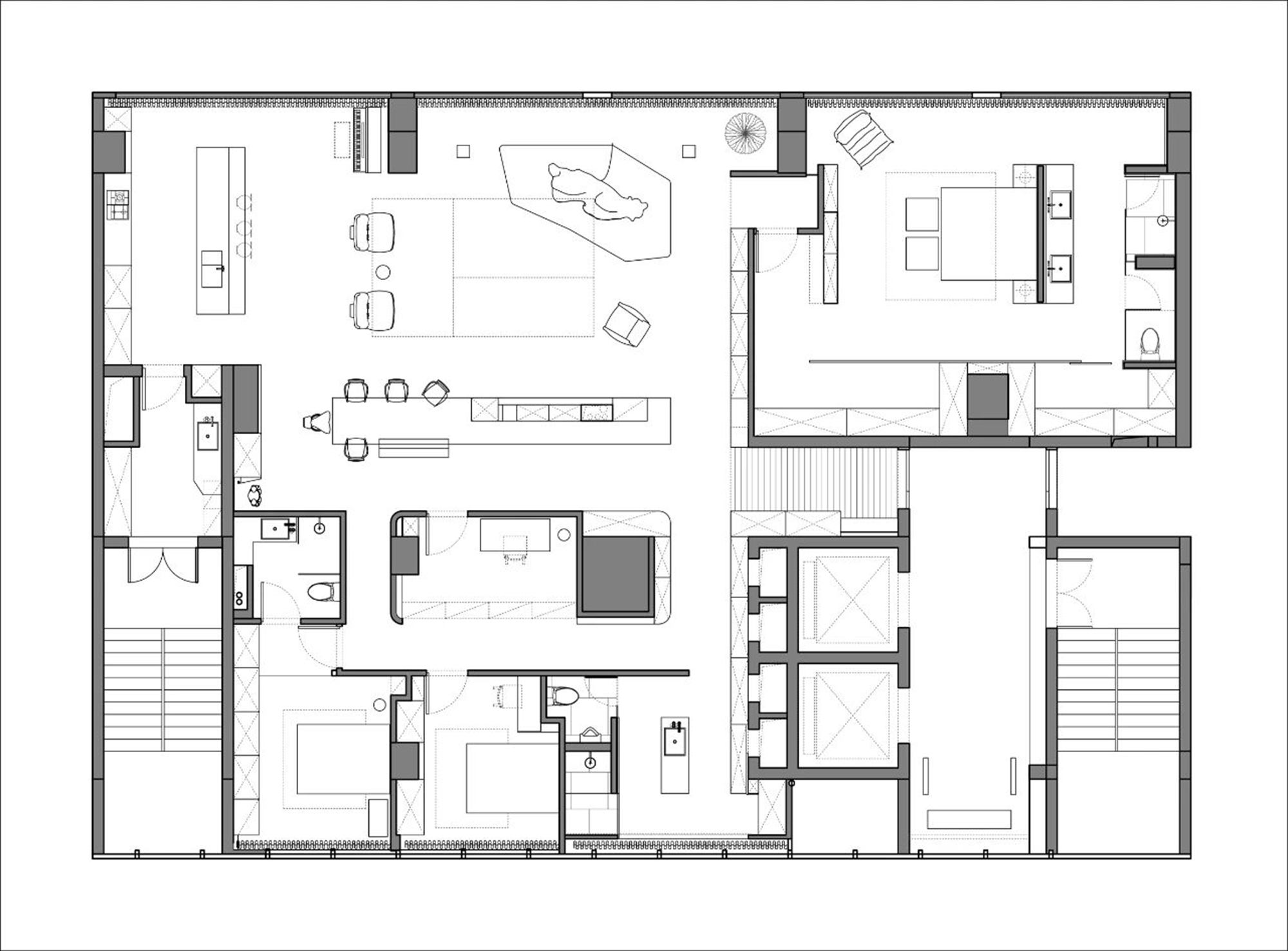
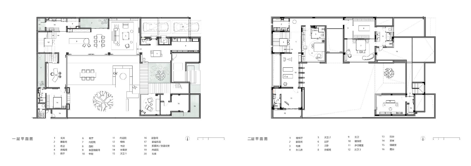
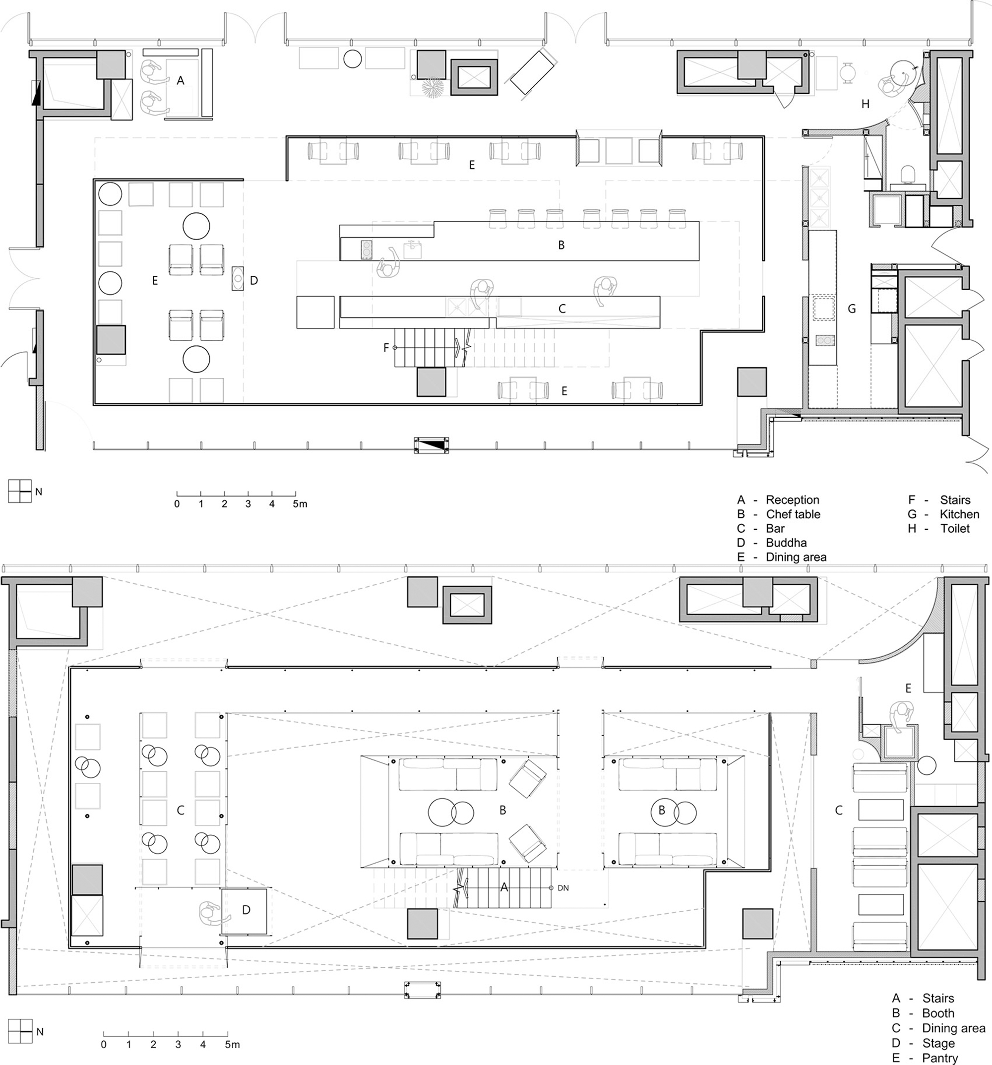
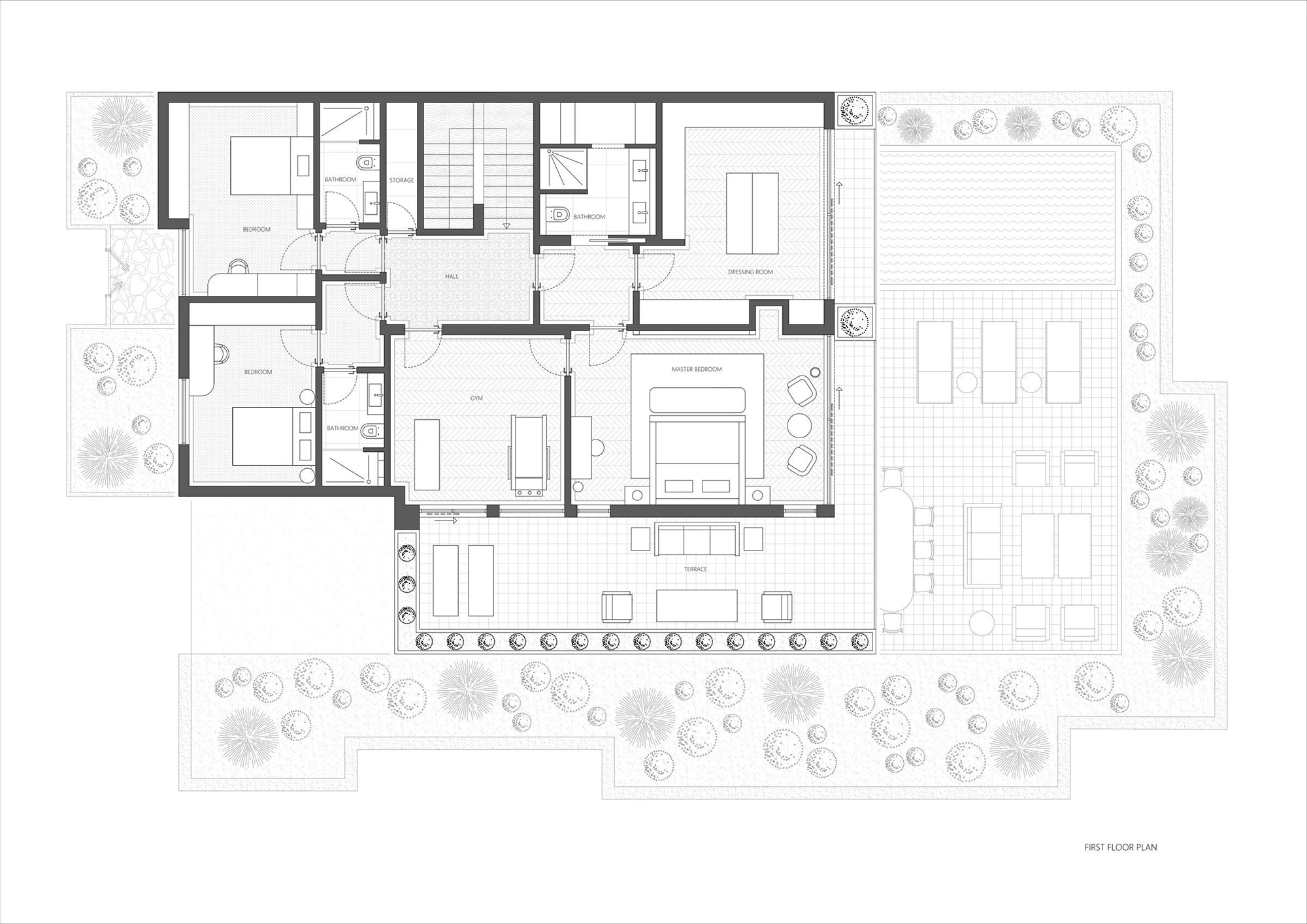
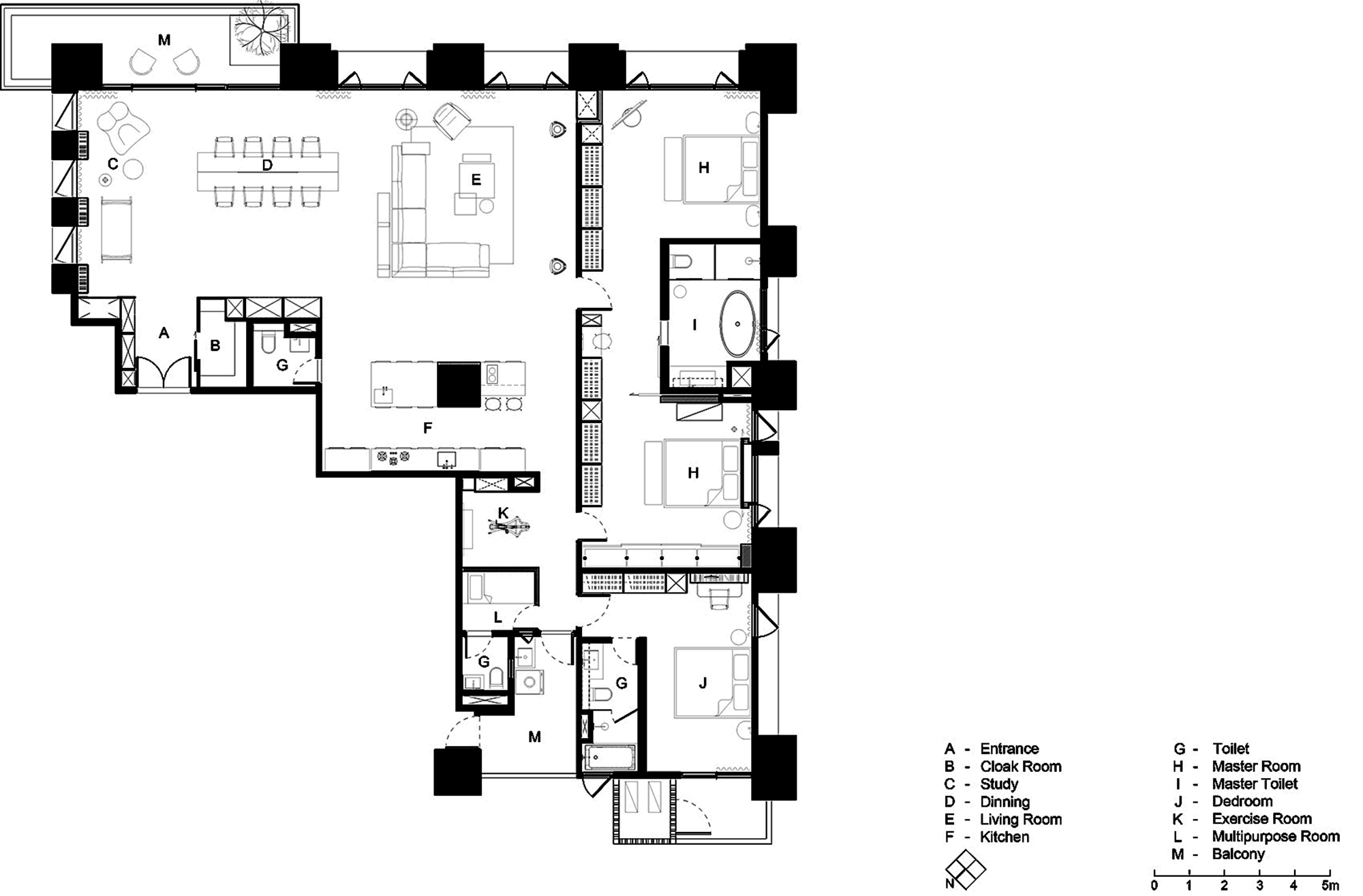
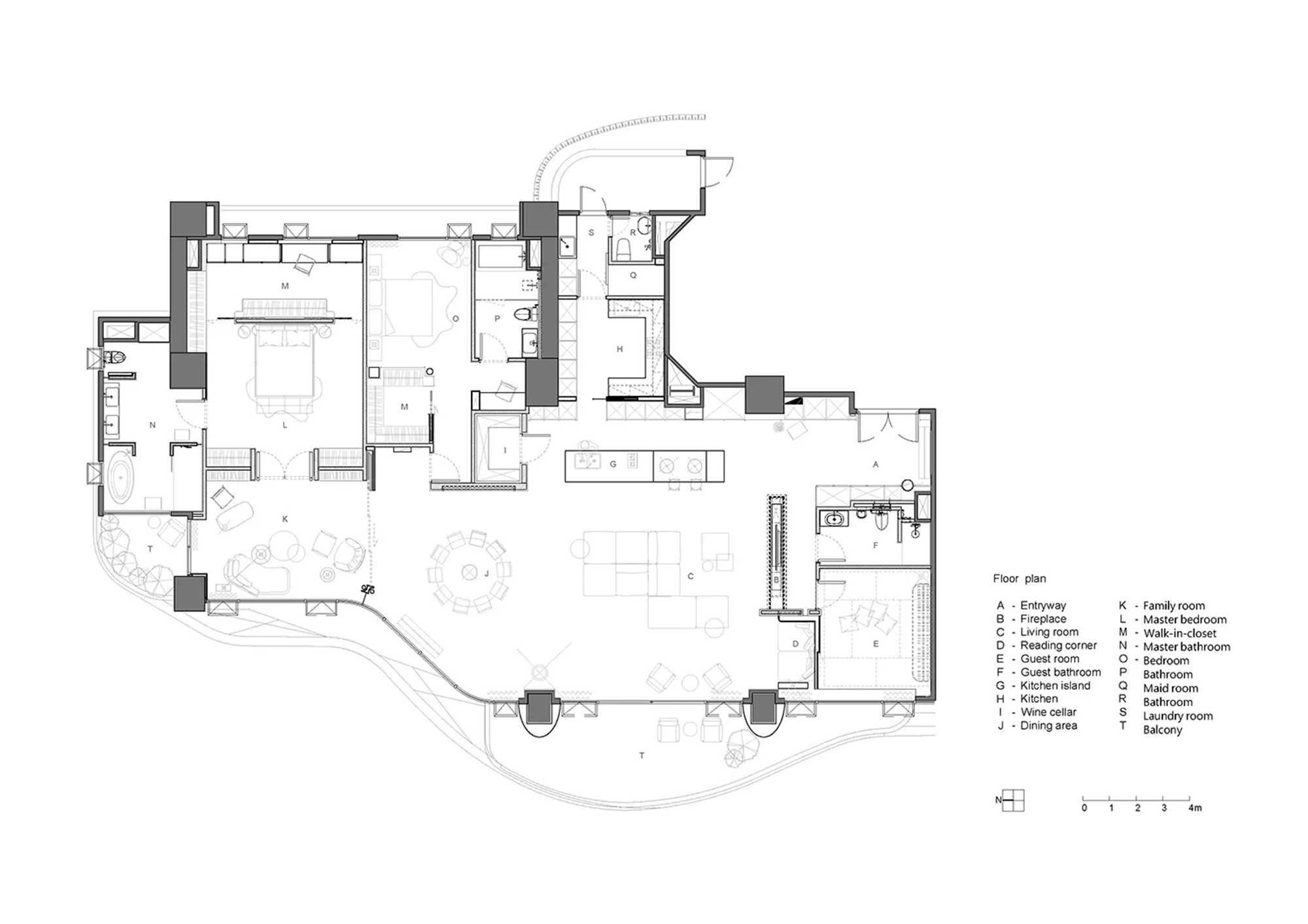
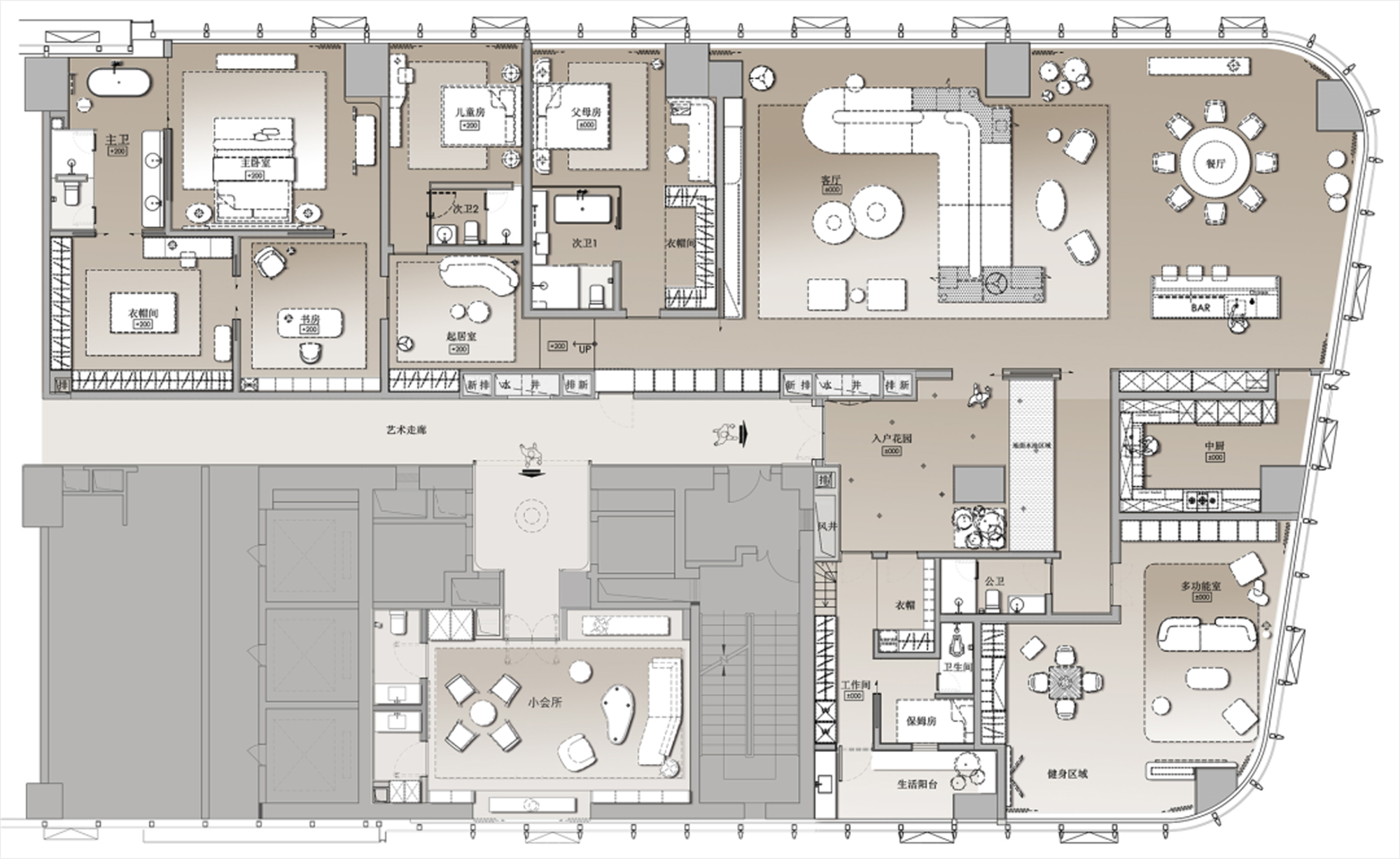
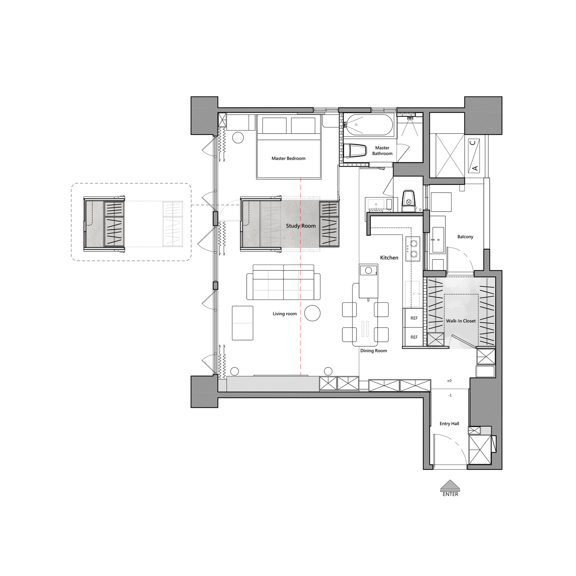
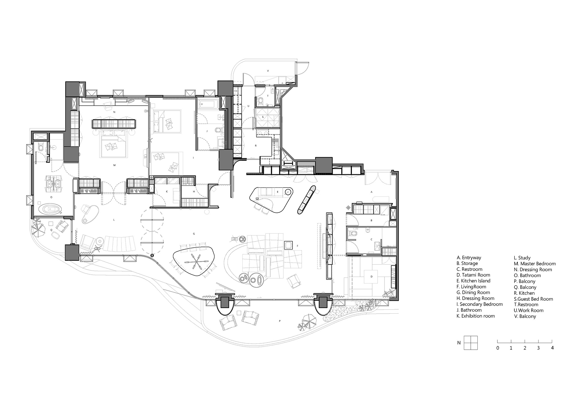
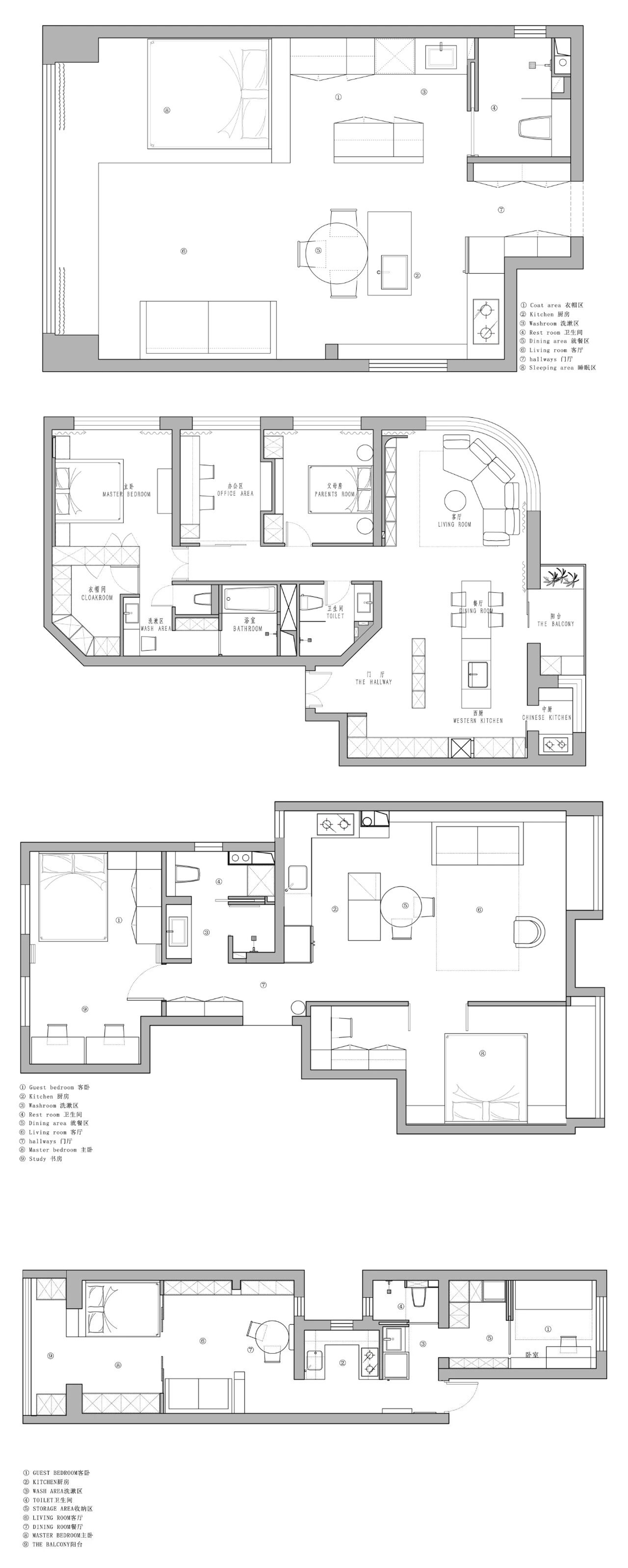
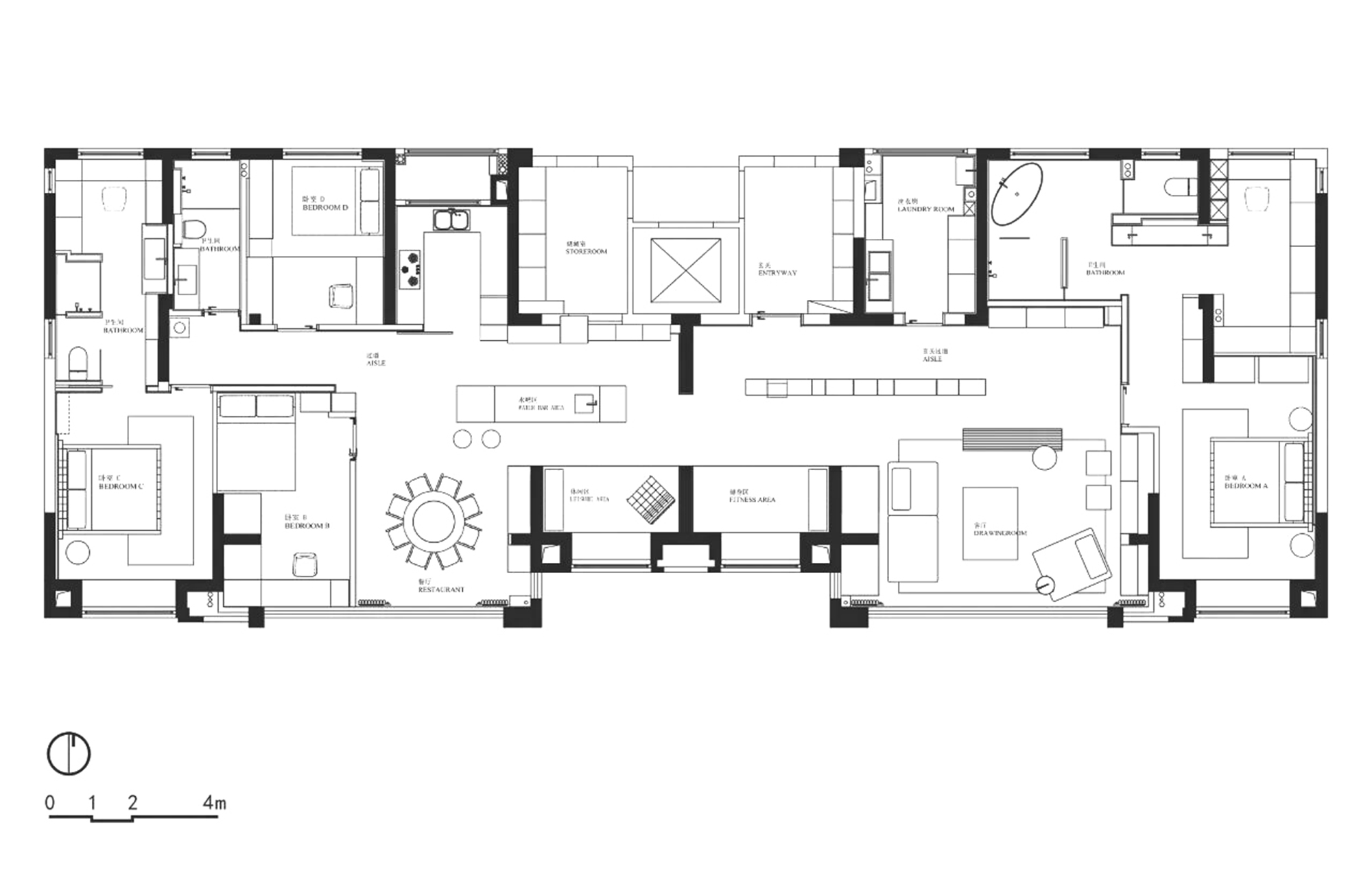
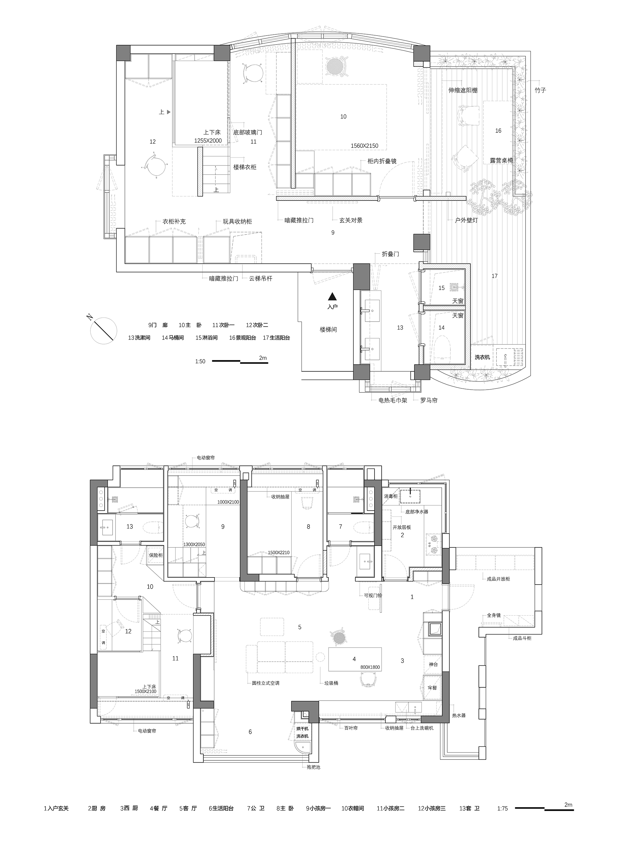
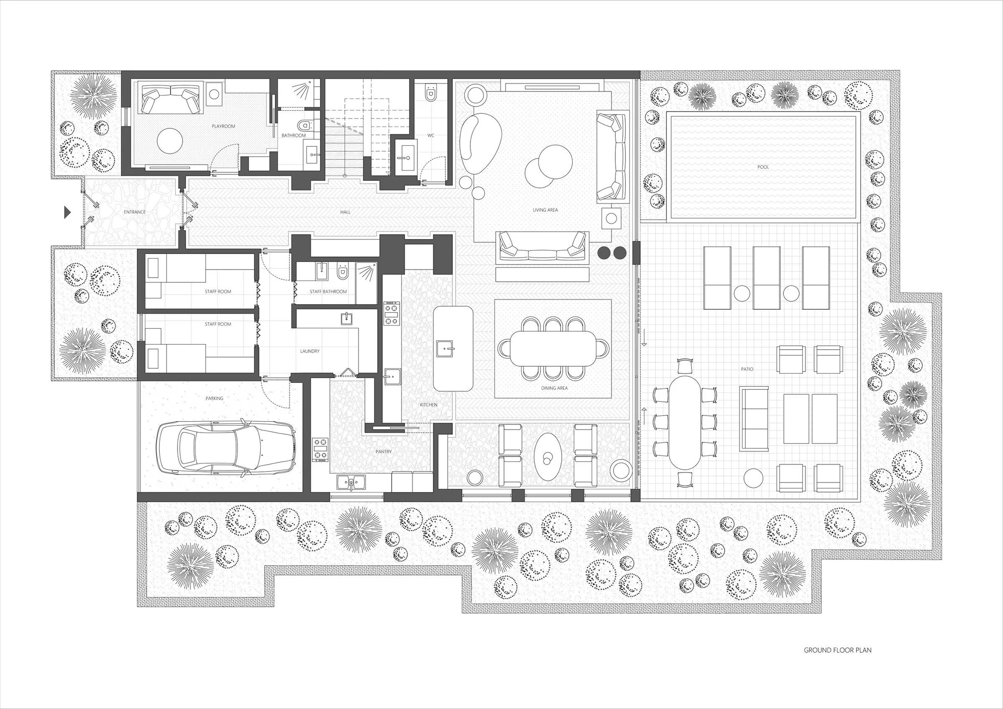
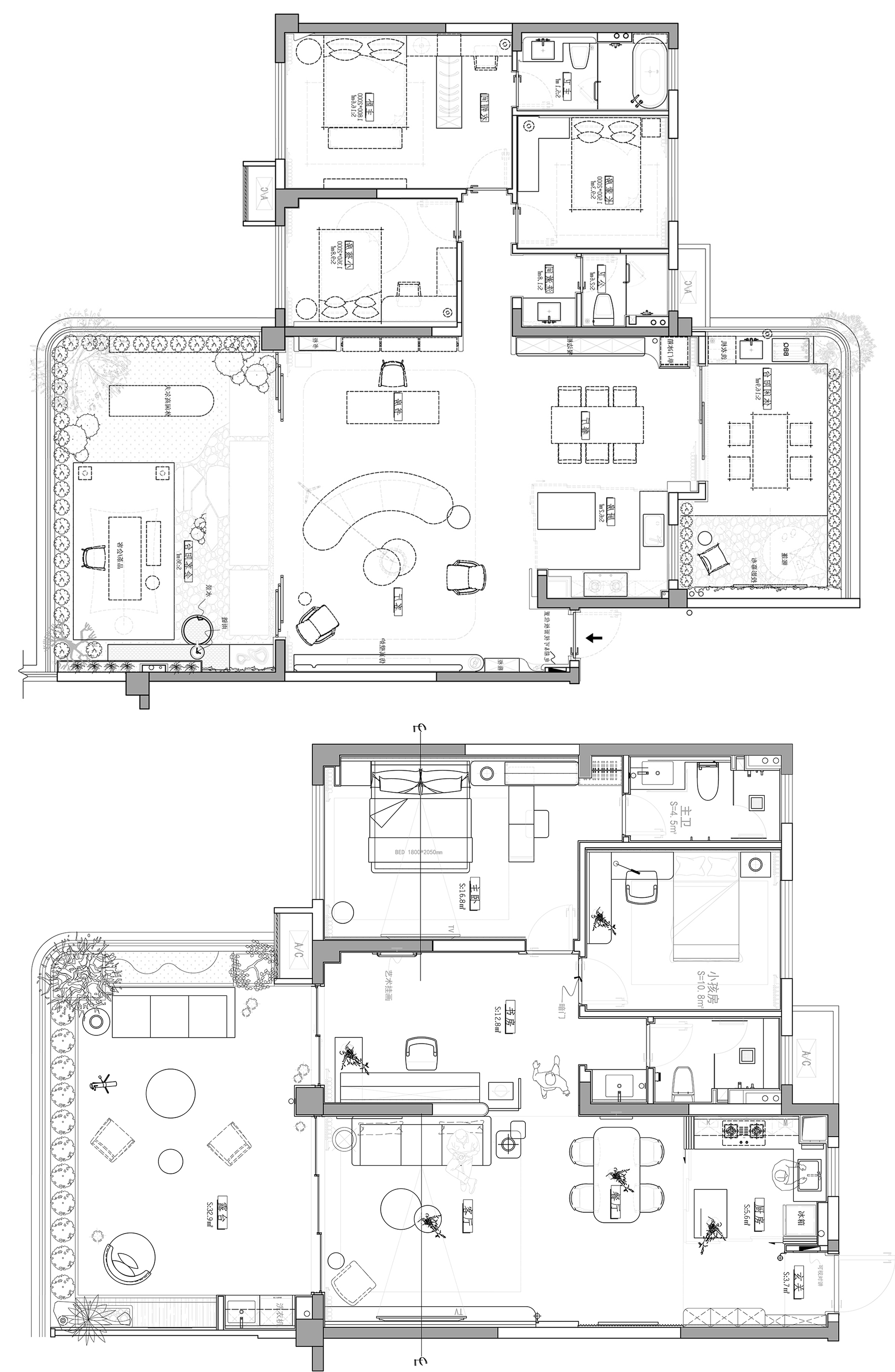
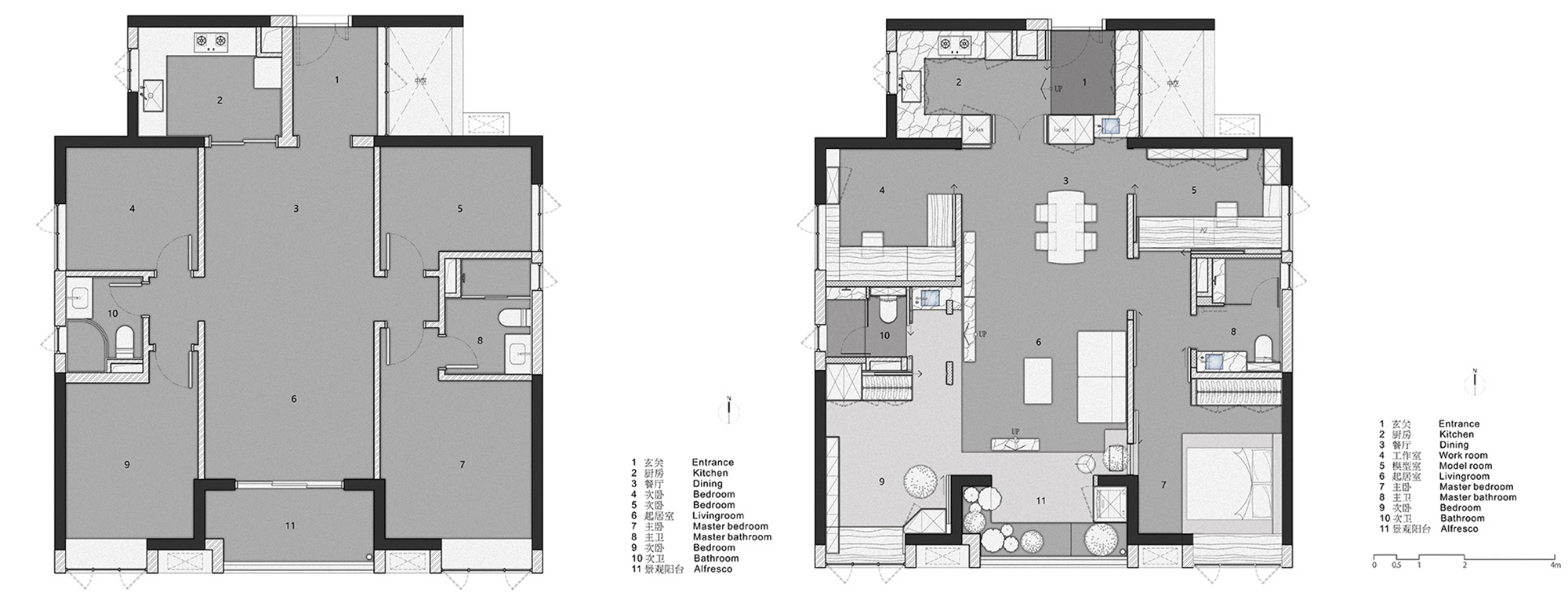
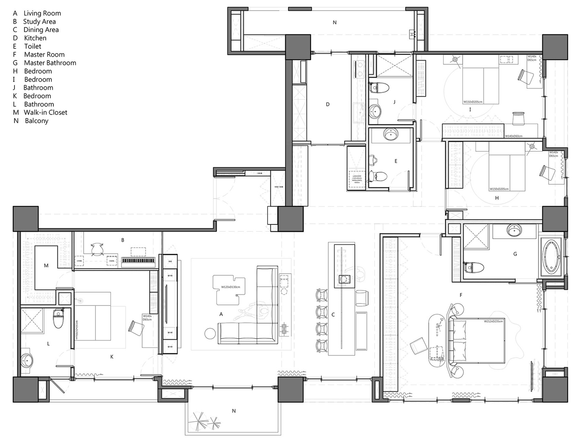
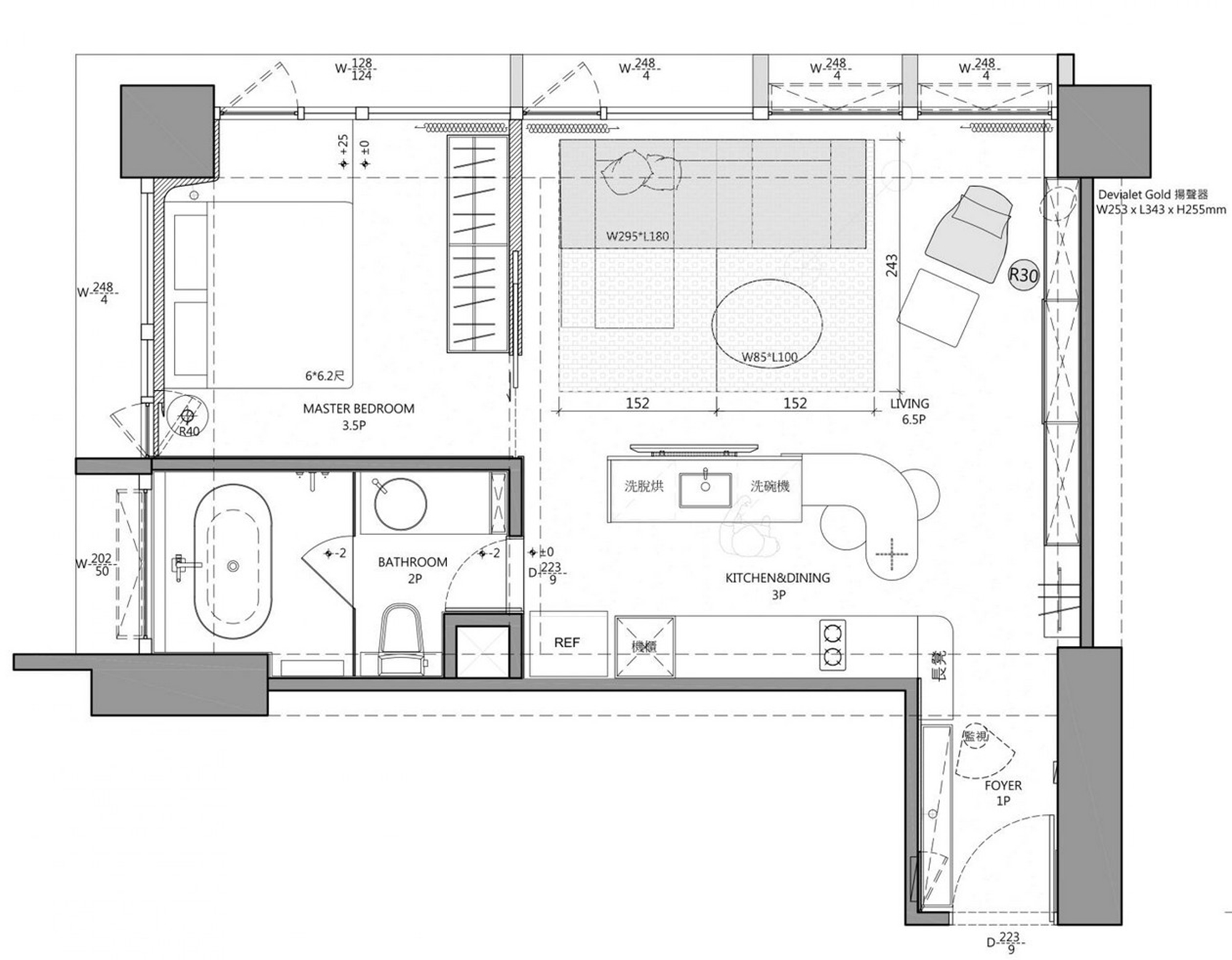
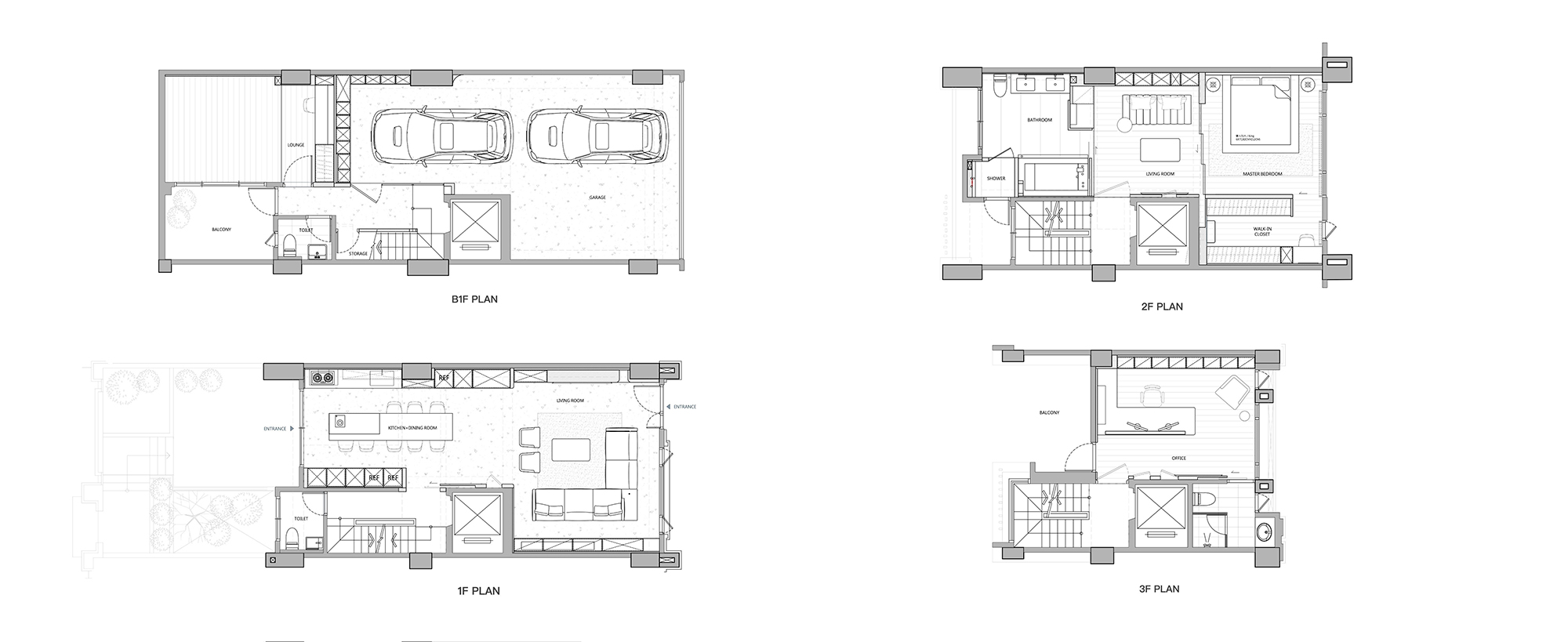
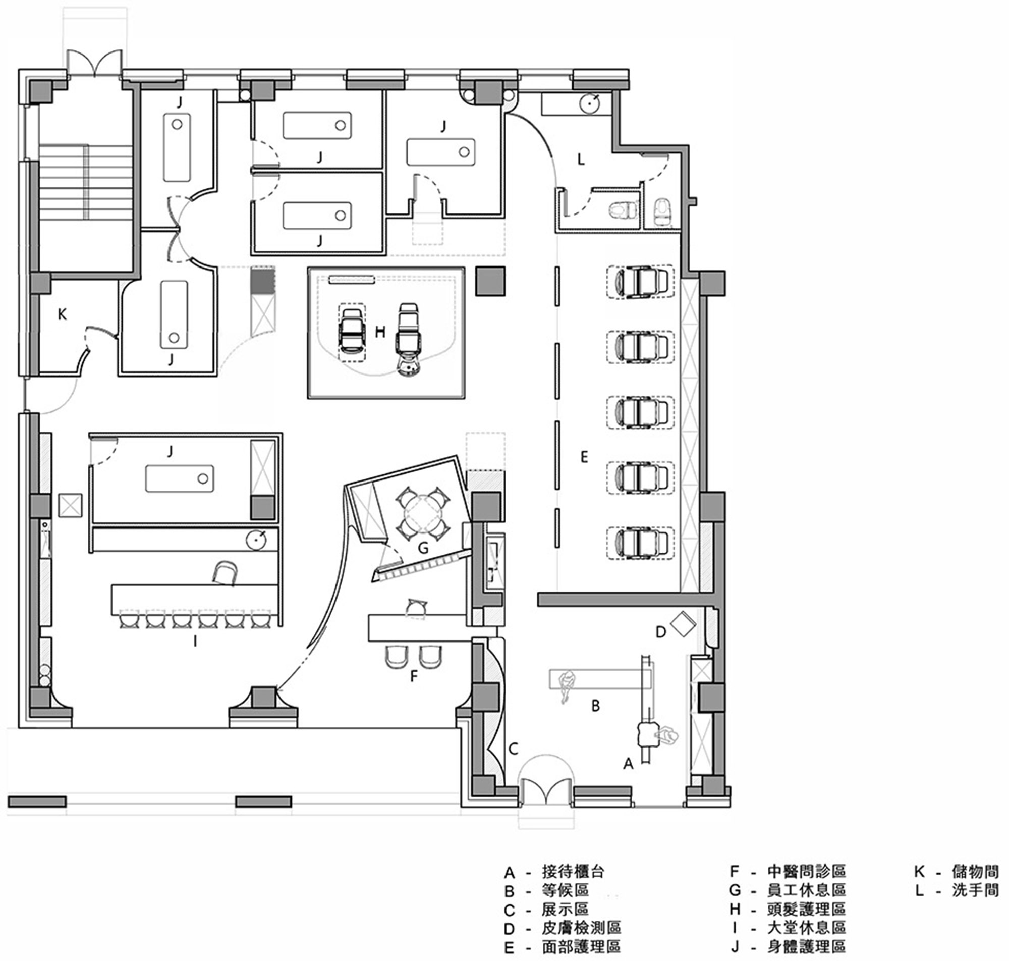
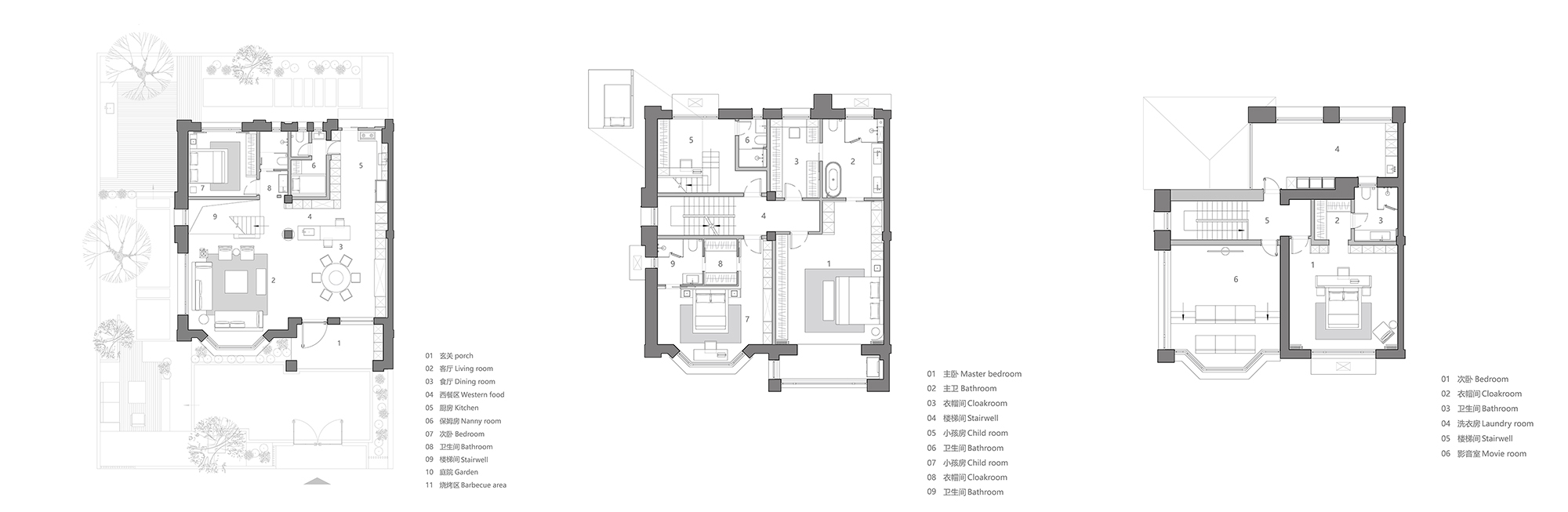
最新款室内设计必备平面方案荟萃,年度精选首发! 对于室内设计师来说,平面布局就是灵魂,是设计中最重要的一部分 由于平面方案的差异,即使是同一个户型,最后呈现的效果也可能完全不同 如今客户越来越专业,要求也更高,因此平面方案更显得尤为重要~ YLD.Studio精选各大优秀设计公司及独立设计师方案作品 历时一年精心挑选整理,每一张方案都包含作者信息,保留项目名称及户型大小面积等 分类清晰明确,两大类主要合集:家装、工装 多个详细小类目整理制作~ 方便设计师朋友们收藏学习! 【—— 本 贴 所 有 资 料 原 文 件 均 在 末 尾 ——】 —— 家装类设计方案节选 —— ▼豪宅别墅平面方案 ▼暗色系平面方案 ▼多彩设计方案表现 ▼拟物化写实风格方案 ▼焦糖色系平面方案 ▼复式 & 跃层 ▼大师作品系列 ▼异形户型方案 ▼样板间设计方案 ▼简约纯色平面方案 ▼极简线稿平面方案 ▼常见户型设计方案 ▼经典户型设计方案 ▼大平层设计方案 ▼小户型设计方案 ▼台式风格设计方案 ▲ 部分精彩内容预览 ▲ 家装系列方案文件 —— 工装类设计方案节选 —— ▼工装设计方案 ▲ 部分精彩内容预览 ▲ 工装系列方案文件 ———————————————————————————————————————————————— ——【文件下载 无CAD格式 介意勿下】——
平面设计方案荟萃-家装类.rar
(196.01 MB, 下载次数: 10, 售价: 9 交易币)
平面设计方案荟萃-工装类.rar
(134.21 MB, 下载次数: 8, 售价: 7 交易币)
【包含】JPG / PNG / GIF 等 ———————————————————————————————————————————————— 【YLD.Studio | 精品设计资料推荐】 原创进口家具组合模块4.0版 2024网红设计施工工艺视频全解 2024设计师精选CAD图库合集 600+精品人物CAD模块大全 2024全新设计制图人物系列CAD模块大全-室内设计-拓者设计吧 (tuozhe8.com) 珍藏版大师CAD平面模块图库 2023施工工艺节点大全 2022豪宅专用设计图库 2022豪宅专用设计图库-室内设计-拓者设计吧 (tuozhe8.com) 工装设计常用平立面图库 2023年工装设计平立面常用图库-室内设计-拓者设计吧 (tuozhe8.com) 酒店设计专用CAD图库 【进口家具合辑 | 精心整理出品】 Reflex-家具图库合辑 Cassina-家具图库合辑 ———————————————————————————————————————————————— 【高端设计素材 & 设计图库定制】 —————— 商 务 合 作 咨 询 —————— 微信公众号:YLDStudio 电子邮箱: yld.studio@foxmail.com 更多详情请进主页了解:YLD.Studio的空间 - 拓者设计吧 |
精华推荐
换一换




发表评论0