|
本帖最后由 i Go 于 2025-12-20 20:27 编辑 “关注i Go,每周学习一个户型改造小技巧” 项目属性/别墅/毛坯 套内面积/450㎡ i Go空间设计事务所 B1:
B1优化方案:
1F:
1F优化方案:
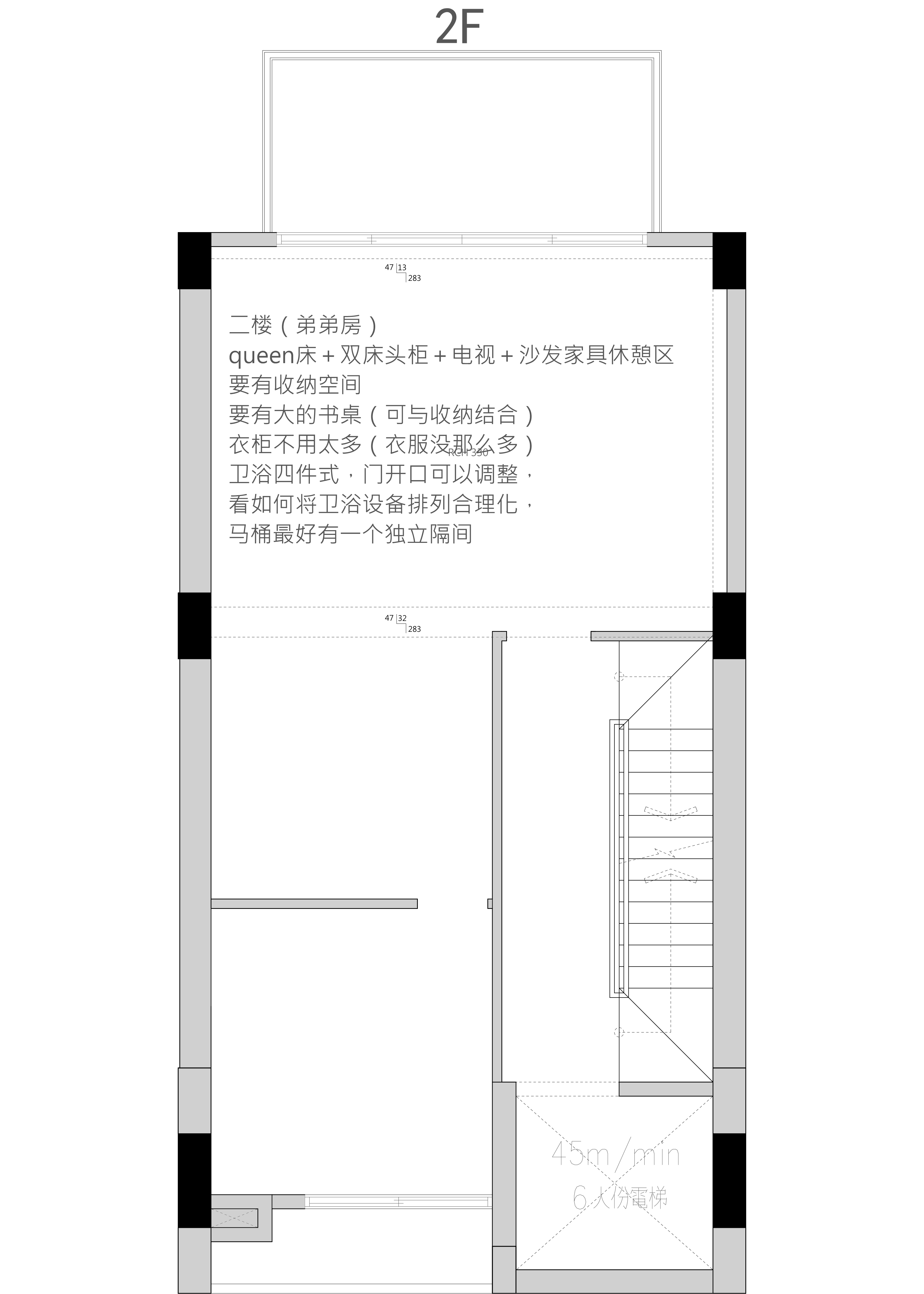
2F:
2F优化方案:
3F:
3F优化方案:
4F:
4F优化方案:
5F:
5F优化方案:
6F:
6F优化方案:
i Go 业务合作 ①高级定制户型优化合作 | ②全案设计托管服务 服务全国设计师 行业首创—九大托管服务为您的全案项目保驾护航 您负责谈单 赚设计费 掌控全场 我们全力辅助 帮助全国设计师签单 官方微信:1131477025 -官方抖音:iGo户型优化(关注抖音 看最新案例) -官方抖音:i Go户型优化 -官方小红书:i Go户型优化 微信公众号:iGo户型优化 *本文以及方案均为i Go原创 禁止转载 分享至其他平台 |
精华推荐
换一换


发表评论0