|
概况/ 这是一处位于超高层公寓高楼层的房子,视野极佳,还带有一个宽阔的露台。户型十分方正,且无柱,室内仅有烟道无法拆除,非常适合改造。
房间因为楼层高且无遮挡,视野相当开阔,东北面是龙泉山脉,西北面天气好时可以看见传说中的雪山,露台欣赏日出日落,云卷云舒,令人心旷神怡。
业主一人独居,有一只猫,有soho办公兼会客的需求,日常喜欢阅读、烹饪、影视、健身。 希望有一个大而复合的公区,可以把大部分活动都放在这个区域里,这样活动起来更方便,能感受到的空间也更开阔。 这个区域的复合性需求,就是业主的核心需求,其他的辅助功能就相对没那么重要了。 可以看到,拆了砌体墙之后的空间非常干净,像一张白纸,可以放下所有想法。
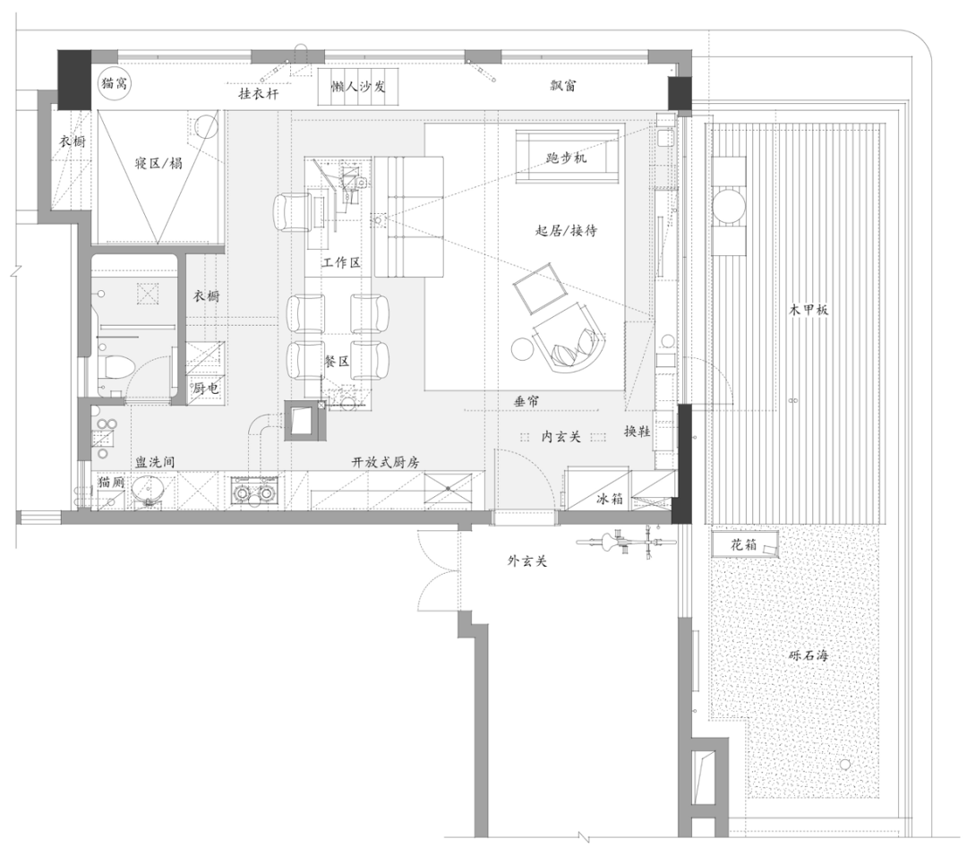
独居空间对于业主来说,就是一个大单间的概念。 什么是大单间?好比一个人住酒店套房,盥洗区不需要封闭,睡眠区也并不是非要关门,因为使用这些区域时, 人的五感敏感度较低,或者是时间较短,那我们就可以压缩非敏感区域的面积,去着重放大那个最重要的复合公区,专注着力。 那么问题来了,这么空旷的房间,我们最重要的空间应该在哪里呢? 可以看到,东北侧的露台和西北侧的窗景观最好(蓝色区域),那么复合公区最合适的位置就是1处, 位于两个景观面的交汇处,紧贴露台,且尽量扩张;而睡眠和洗浴空间可全部压缩在各种条件都不太好的2处。
这样空间的大策略就出来了,接下来的问题就只剩下如何在2区整合辅助功能了。辅助功能主要有如下几个:
/ 辅助功能分区 1、开放式厨房设备和柜体选择在开放空间下部,靠边布置,对公区挤压最小; 2、不希望卫生间的入口正对公区,故而做了一段小走道从侧面进入卫生间,也兼作卫生间的外置干区; 3、卫生间最好采光通风、故放在左侧靠外墙处,平行外墙布置,便于在外侧增加储藏柜; 4、利用卫生间外侧厚度和外墙装饰墙处的空间,做出入墙式储藏柜/衣柜; 5、寝区设置在靠飘窗处,有较好的采光和景观条件。 这样一来,整个空间所有需要的功能,都被清晰的逻辑安排好了,我们就得到如下的概念设计:
解析/ 接下来我们详细看看整个房间的样子。 露台 看过前面的介绍,相信大家对露台的样子十分期待了。因为外立面不允许改动的原因,露台只能布置少量家具和植物。 但基础条件过于优秀,只是简单的布置,也能得到一个十分舒适的休闲露台了。露台有35㎡,非常宽敞,站在露台上可以看很远。 露台上做了防腐木甲板和枯山水,用花池隔开,雨棚上悬挂的风铃在风中低吟。落日的露台可以看到绝色晚霞。 室内看露台 猫咪也喜欢出去露台玩,业主平时不准他独自去露台,但是在大人的监管下可以去。 两侧玻璃栏杆和建筑墙面的间隙用透明亚克力板封闭了,猫咪钻不出去。 玄关 看玄关之前,我们先看下帘子和路径的设置。 图中红色虚线是帘子,黄色虚线是洄游路径。 玄关的帘子起到了照壁的作用,辅助区的帘子遮蔽了衣柜和寝区;而复合公区的两条小洄游路线,让空间更有层次。 隔着玄关的垂帘,隐约可以看到开阔的公区和窗景,吸引视线向内聚拢。 玄关看客厅 在玄关右手边的换鞋区换鞋时,可以看到更多的室内,露台也露出了一部分,窗台的植物生机勃勃。 换鞋区看客厅 悬挂直帘作为软隔断,让入户门若隐若现,形成感官上的玄关空间。书架边上是换鞋区,墙上是伊姆斯糖果衣帽架。 客厅 勿需质疑,将复合的公共区域布置在两个景观面的交汇处,可以最大程度吸纳外部景观,整个区域的采光和视野都是最佳状态。 飘窗上的躺椅很适合在天气好的时候坐在窗边远眺。 寝区和储物空间的帘子分为两段,都是屏风帘(类似软质推拉门),每段三幅,分别控制衣柜和寝区开合,有客人的时候关闭帘子,可以遮挡私密空间。 寝区遮蔽帘开合动态 飘窗上用了落叶松旧木板拼接,稍作打磨,表面刷木蜡油即可。寝区帘子全部打开时,叠合在床头一侧,不影响上下床。 床箱下面的凹槽放置扫地机器人,床尾走道尽端设置了挂衣杆,可挂临睡前换下的衣服或近几日要穿的衣服。梁上挂的十字架是业主外婆的遗物。 飘窗看向寝区 窗角利用结构本来的凹槽,设置了氛围灯。梁上的十字架是业主从梵蒂冈圣彼得大教堂带回来的纪念品。 工作区与就餐区 复合的公区里,有一张显眼的悬挑大桌子,总长3.8米,一端是书桌,一端是餐桌。 从工作/餐桌一侧看向接待区,也可以同时看到两个景观面的外景,不论是工作时还是就餐时,都能随时眺望窗外的美景。 梁顶的天际灯在夜晚散发着柔和的光。 桌面看向客厅 这么长的桌子,没有桌腿,完全是悬挑出来的。如果没有沙发,看起来会更酷。 因为桌面总长度有3.8米,虽然承重没有问题,侧推力还是会让桌面晃动,于是底部增加了斜撑抵抗侧推。 悬挑桌侧面结构示意模型 斜撑隐蔽在沙发和抽屉柜的背后,平时是看不到的。 侧面看向工作区 大桌面在没有就餐时会保持干净的状态,减少物品放置,这样工作时就有一块可以临时扩展的桌面, 显示器和灯具都用夹具和桌面连接,节省出更多的桌面面积。 公区看向厨房深化设计模型 公区看向厨房实拍对比 顶灯全部是明装灯具,镀锌线管也精心设计过路径,路径也是好看的。 墙面搁板也同样隐藏了结构做法,只看得到5mm的白色钢板,简洁又轻薄。 线管近景 吊顶龙骨露明,更方便屏风帘的轨道安装;就连烟机也用了明装镀锌管连接。 寝区 床边的帘子后是入墙式衣柜,飘窗的落叶松旧木板一直延伸到床头作为床头背景板, 床尾是猫咪的窝,但猫咪睡觉的时候其实更喜欢粘着主人,猫窝的利用率并不高。 卫生间 卫生间尝试了微水泥做全部界面,在淋浴间和马桶间之间预埋了一根3cm的极窄条形地漏,隔绝水进入干区。 为了地面过渡流畅,湿区、干区、和室内之间没有做常规的2cm高差,只采用了坡度排水, 最低点设置在条形地漏处,地漏底盘定制了双口排水,实际使用效果不错,水没有外溢过。 后记/ 同样的户型,同样的客观条件,可是居住其中的使用者不一样,设计就应该是不一样的结果。 如何挖掘并找到使用者最强烈的需求,并将个需求整合在一处既有的住宅里,是设计师最为重要的工作,没有之一。 项目名称:3505号公寓 项目类型:住宅公寓室内设计 设计方:基本建筑 设计团队:李愉,李沐然 项目地址:成都 建筑面积:82㎡ 摄影版权:李恒 客户:私人 材料:混凝土,微水泥,旧木地板 |
精华推荐
换一换



发表评论0