|
本帖最后由 拓者r58r4xa5 于 2025-12-25 20:18 编辑 双核心套房+多功能公区的“伴生式”住宅 关注东余 掌握全案设计逻辑 项目类型:大平层 项目面积:86㎡ 项目坐标:江西
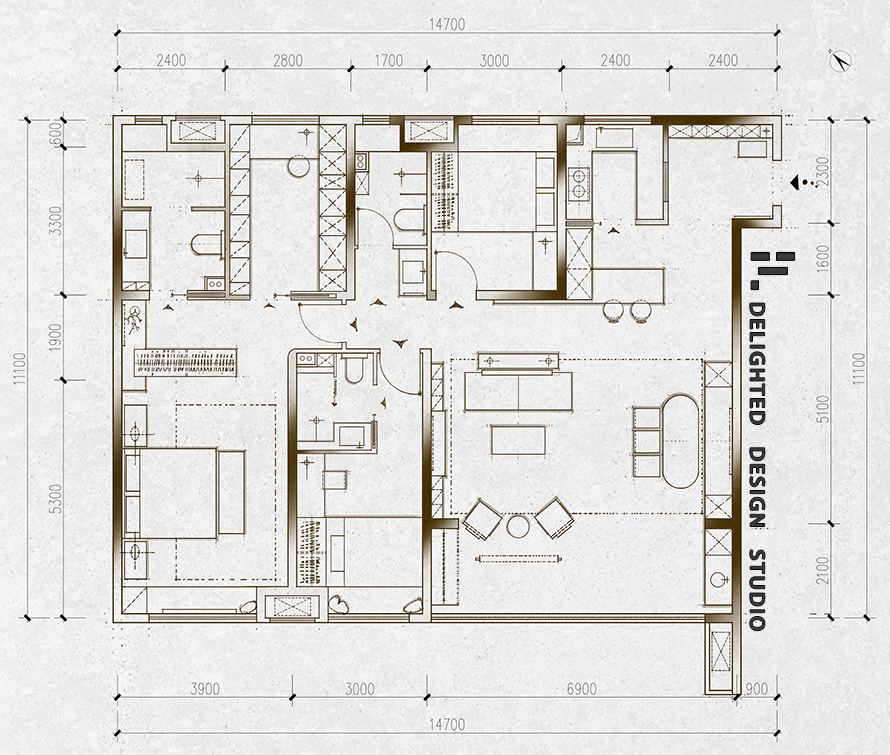
优化设计:东余设计 原始结构图
基本情况和设计需求 基本情况: 1、家庭常住成员:4口人(夫妻2人+1个孩子) 2、房子为改善型住宅 3、孩子分别上小学和幼儿园 设计需求: 1、主卧需要套房(并且需要步入式衣帽间) 2、女孩子的房间需要考虑套房 3、餐厅看看能否考虑吧台(早上吃简餐使) 4、阳台纳入室内使用、考虑家政和其他功能 5、餐厅需要考虑人多(6~8人)的时候使用 手绘方案
平面方案布置图
关注东余、服务全国设计师! 东余业务合作 1、高定户型优化合作 2、SU模型表达 3、全案设计课程 超高性价比、值得你拥有! 联系我:DY1997023 官方公众号:东余设计(关注官方公众号 了解最多项目完整动态) 本文以及方案均为东余原创 已申请原创保护 转载注明出处! |
精华推荐
换一换



发表评论0