精华推荐
换一换
-
yesterday24C 2026-1-9 15:32:59
本帖最后由 yesterday24C 于 2026-1-9 15:50 编辑
大地之息 发表于 2026-1-9 14:45
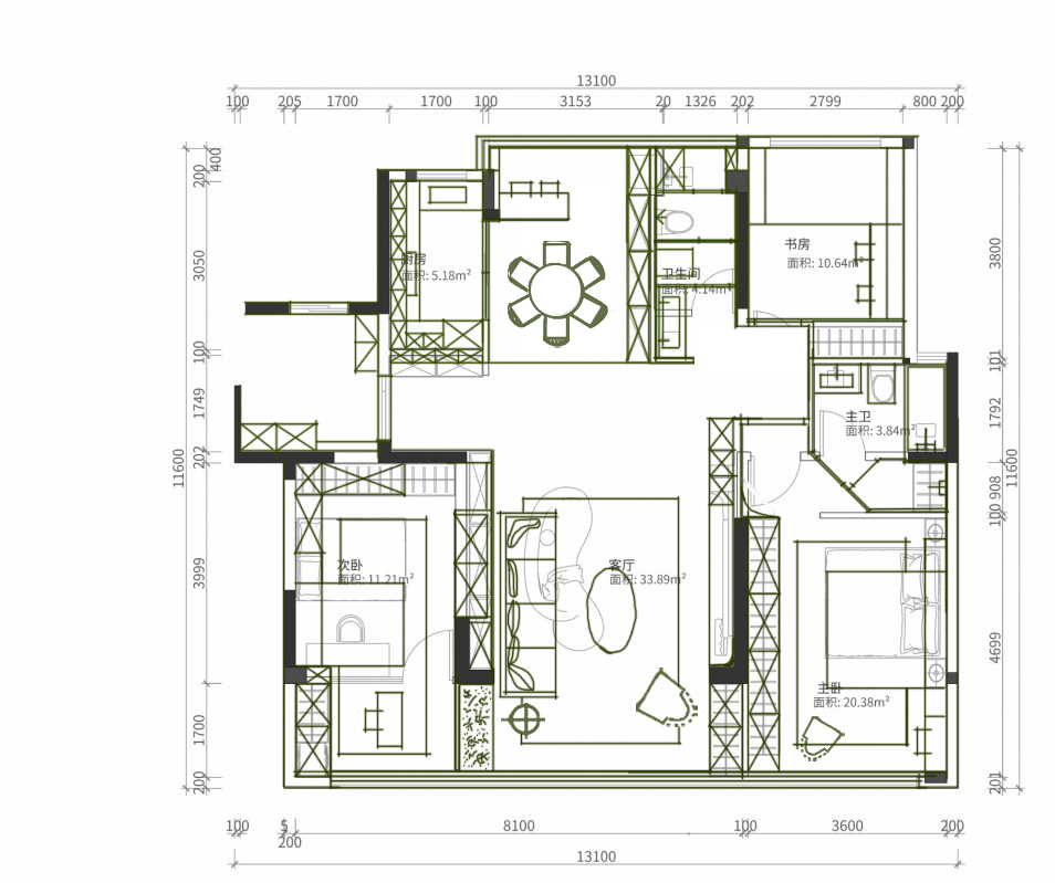
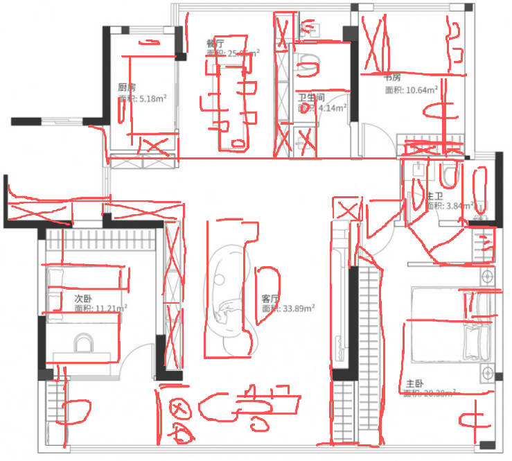
谢谢分享,我原图有点错误,外侧方形空间是电梯厅了,门的位置导出时显示成了窗户
能不能加个鸡腿
-
大地之息 2026-1-9 14:45:30
谢谢分享,我原图有点错误,外侧方形空间是电梯厅了,门的位置导出时显示成了窗户


老师抽空看看我的主页看看怎么优化合适,万分感谢