ku设计
您需要 登录 才可以下载或查看,没有帐号? 注册
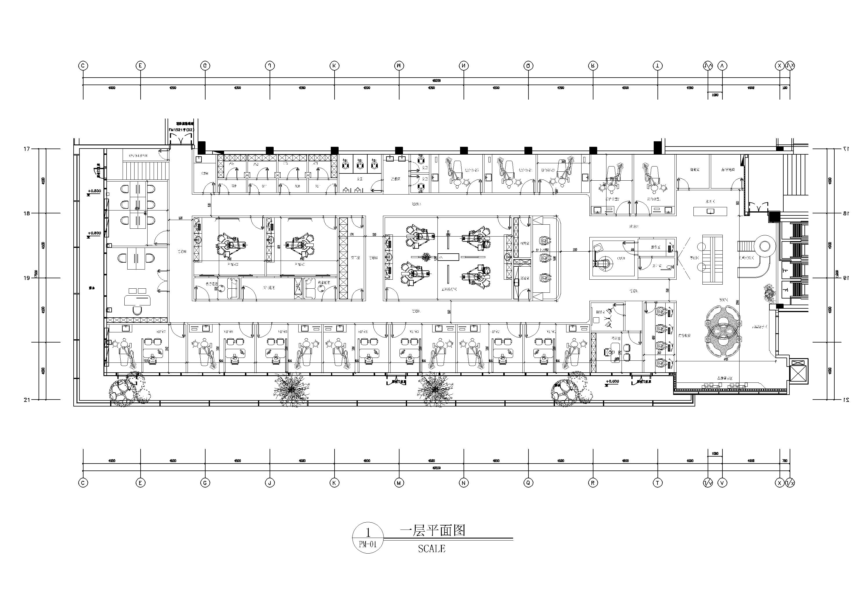
大型牙科口腔医院平面方案图.rar
2025-12-29 13:58 上传
点击文件名下载附件
4.54 MB, 下载次数: 0
售价: 5 交易币 [购买]
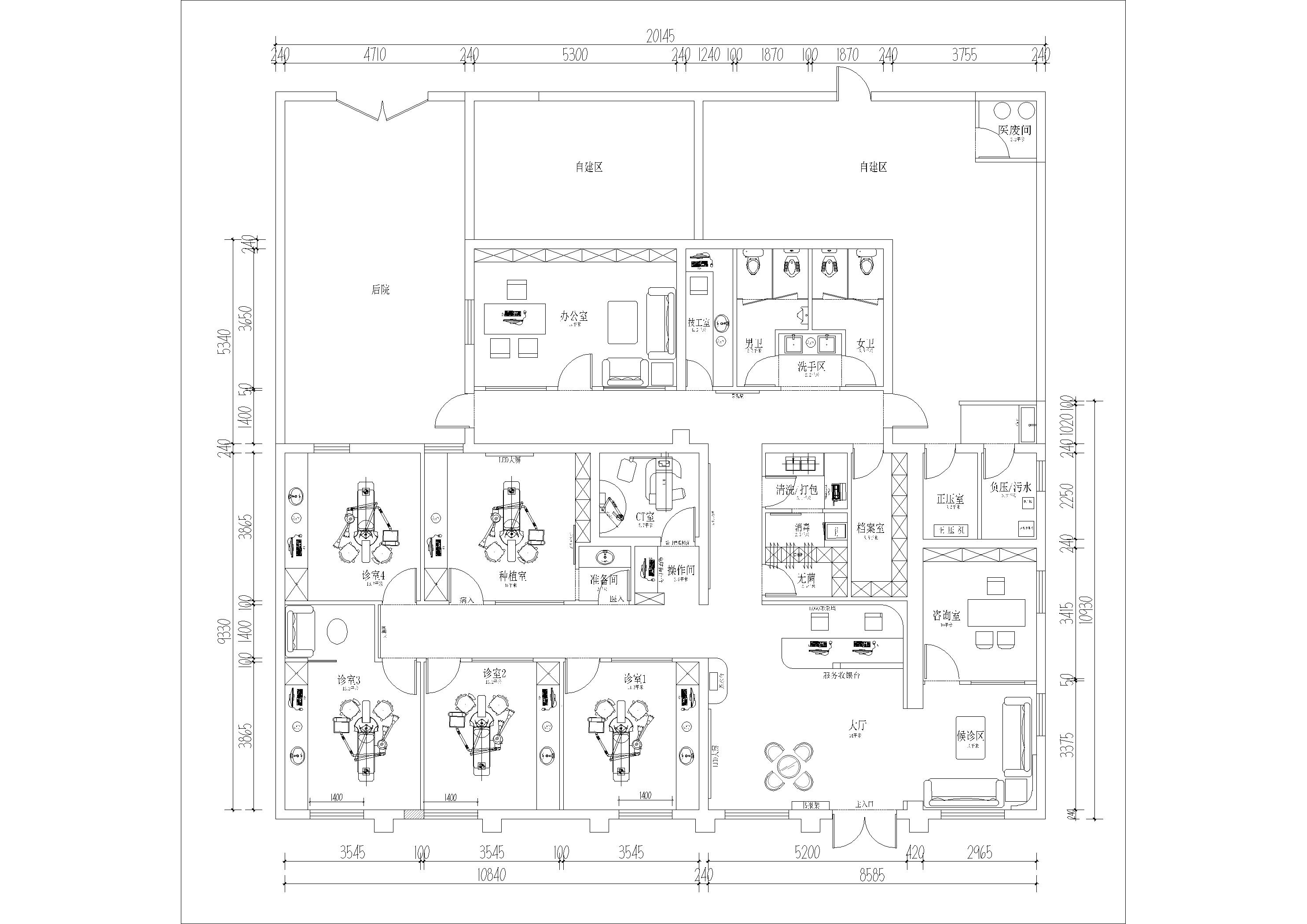
医院手术室办公平面方案图.rar
954.31 KB, 下载次数: 0
售价: 3 交易币 [购买]
发表评论0
406158
工作日:早9点--晚5点
客服QQ微信:406158
关注拓者设计吧让设计更有范
发表评论0