求老师们抽空帮忙看看怎么优化合适

2026-1-11/ 户型方案/ 户型交流/ 只看大图 阅读模式
仅供分享不做任何商业用途,版权归原作者所有,谢谢配合。

马上注册,结交更多好友,享用更多功能,让你轻松玩转社区。

您需要 登录 才可以下载或查看,没有帐号? 注册

x
本帖最后由 起雾 于 2026-1-11 10:20 编辑

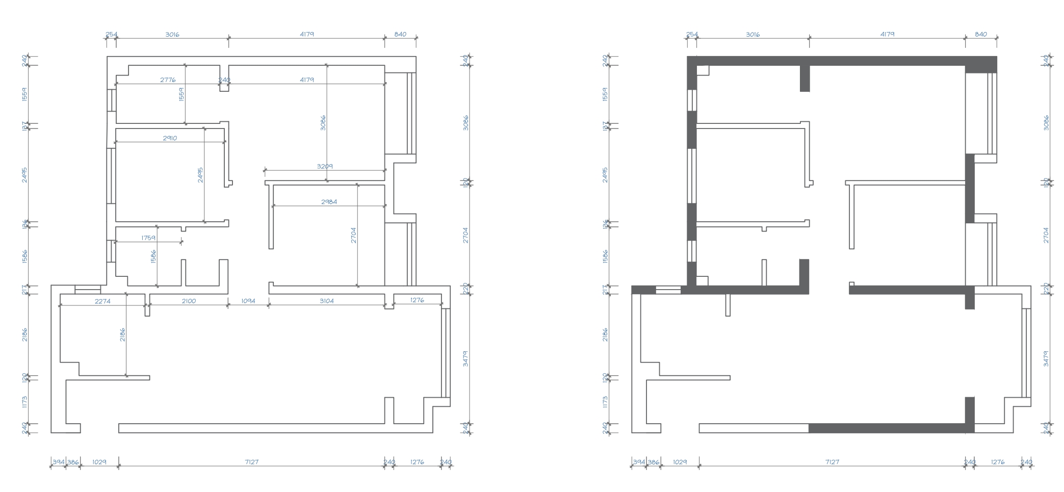
微信截图_20260111100019.png


1,主卧在进门对面墙要整面墙衣柜,主卧宽度不够三个卧室整体墙全都得拆改不知道怎么合适
2,北边卧室相当成衣帽间书房这样的,(卫生间这边的卧室是北,画图仔晚上得画图)小两口居住
3,进门堵,想要开放式厨房对象不同意,怕油烟呛满屋看有没更好的方法隔绝油烟还通透

精华推荐
换一换

发表评论6

求老师们抽空帮忙看看怎么优化合适
拓者推荐
  • 重庆站】精工课(5月27-28日)
  • 郝泽伟设计工作室 | 《木朴》
  • 会讲方案的设计师,行走的印钞机
  • CCD·艺澍家|上海·甘云间!
  • 王小锋 | 1006㎡泉州建发缙湖别墅!
  • CCD-华润 CCBD 889㎡设计方案
  • 【召禾设计]天际江景超大平层方案
  • 【WSD世尊】建发·云启玉诸
  • CCD-华润玺宸上院中叠样板间
  • CCD-武汉绿城外滩玫瑰园别墅
  • 2025拓者年费+案例Vip会员说明!
  • 【 拓者年费--CAD图纸】
  • 【 拓者年费--户型方案】
  • 【 拓者年费--豪宅视频】
  • 【 拓者年费--灵感图库】