|
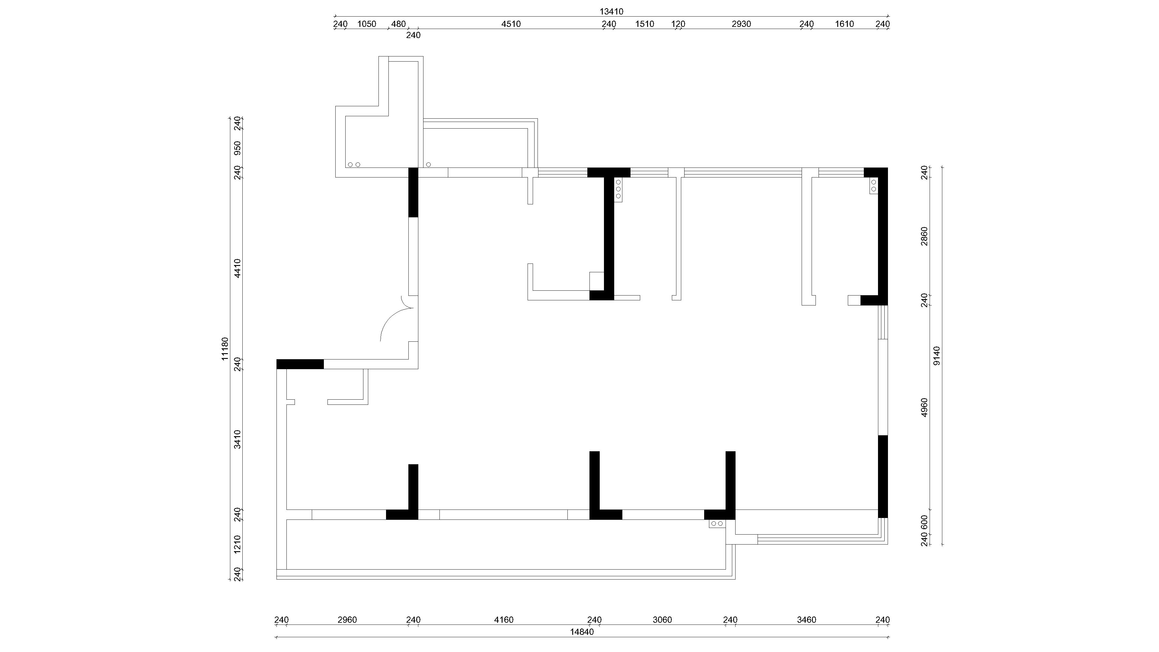
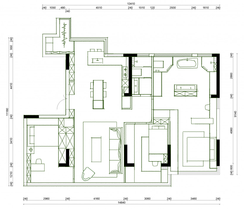
本帖最后由 阿飞z 于 2026-1-15 19:38 编辑 [size=15.0839px]仨房间 [size=15.0839px]最好有单独小储物间,可以是八百库的形式 [size=15.0839px]主卧衣帽间+工作间[size=15.0839px]主卫双台盆 [size=15.0839px]半开放式厨房 厨房操作空间要大[size=15.0839px] [size=15.0839px]北阳台可以外拓
|
精华推荐
换一换
-
阿飞z 2026-2-4 07:12:26
yesterday24C 发表于 2026-2-2 10:50
北阳台外拓的尺寸到哪
北阳台最北面的正方形空间 设备外机应该放到这里,还有厨房怎么做成半开放的
-
yesterday24C 2026-2-2 10:50:04
阿飞z 发表于 2026-1-30 22:41
可以没问题
北阳台外拓的尺寸到哪北阳台最北面的正方形空间 设备外机应该放到这里,还有厨房怎么做成半开放的



鸡腿已转谢谢老板