|
本帖最后由 拓者r58r4xa5 于 2026-1-18 18:59 编辑 美术教师之家的美学与功能革命 关注东余 掌握全案设计逻辑 项目类型:平层 项目面积:108㎡ 项目坐标:重庆
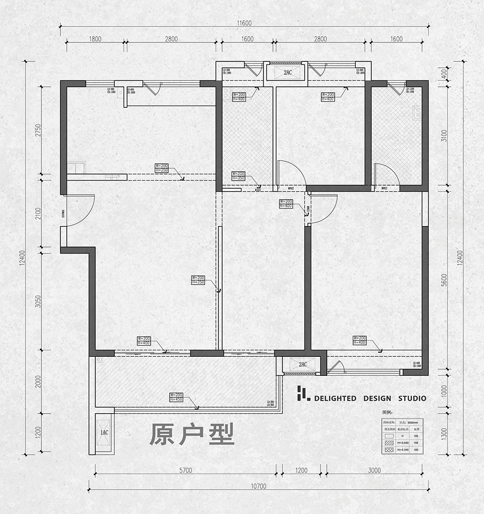
优化设计:东余设计 原始结构图
基本情况和设计需求 基本情况: 1、家庭常住成员:4口人(夫妻2人+1个孩子) 2、不需要考虑客房(父母在同城市) 3、孩子目前6岁 设计需求: 1、一家人喜欢在客厅娱乐、休闲、阅读和玩耍 2、男主人是某单位员工。 3、女主人是美术老师,油画爱好者,喜欢阅读和美学 4、喜欢干净简洁的设计风格 5、能有足够家人使用的储物功能(户外装备也多) 手绘方案
平面方案布置图
关注东余、服务全国设计师! 东余业务合作 1、高定户型优化合作 2、SU模型表达 3、全案设计课程 超高性价比、值得你拥有! 联系我:DY1997023 官方公众号:东余设计(关注官方公众号 了解最多项目完整动态) 本文以及方案均为东余原创 已申请原创保护 转载注明出处! |
精华推荐
换一换



发表评论0