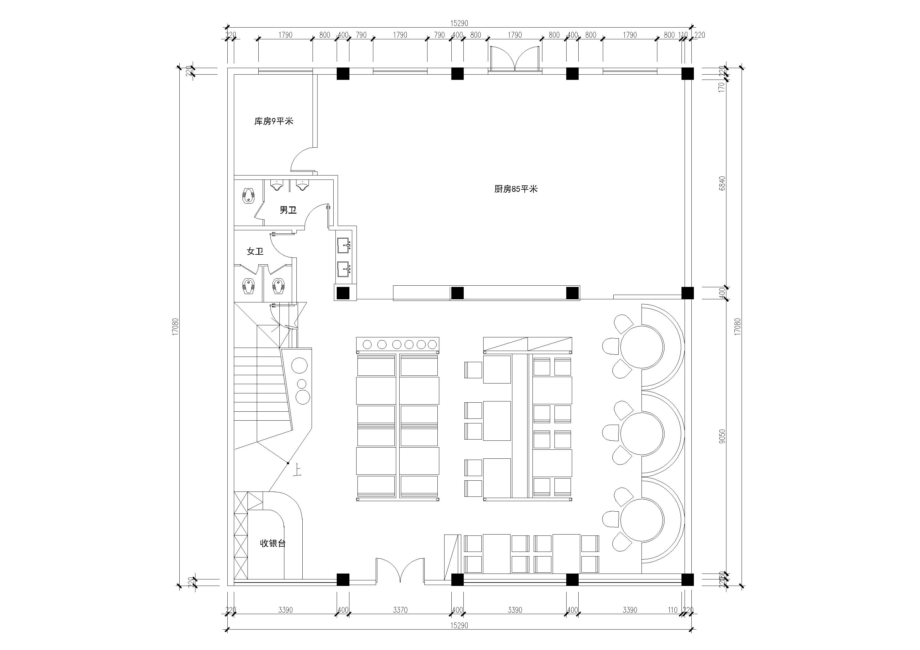
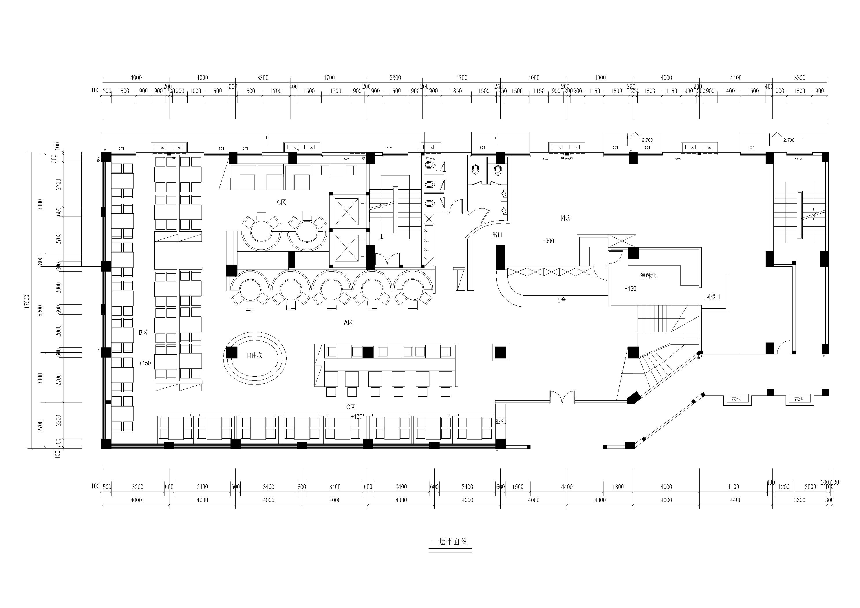
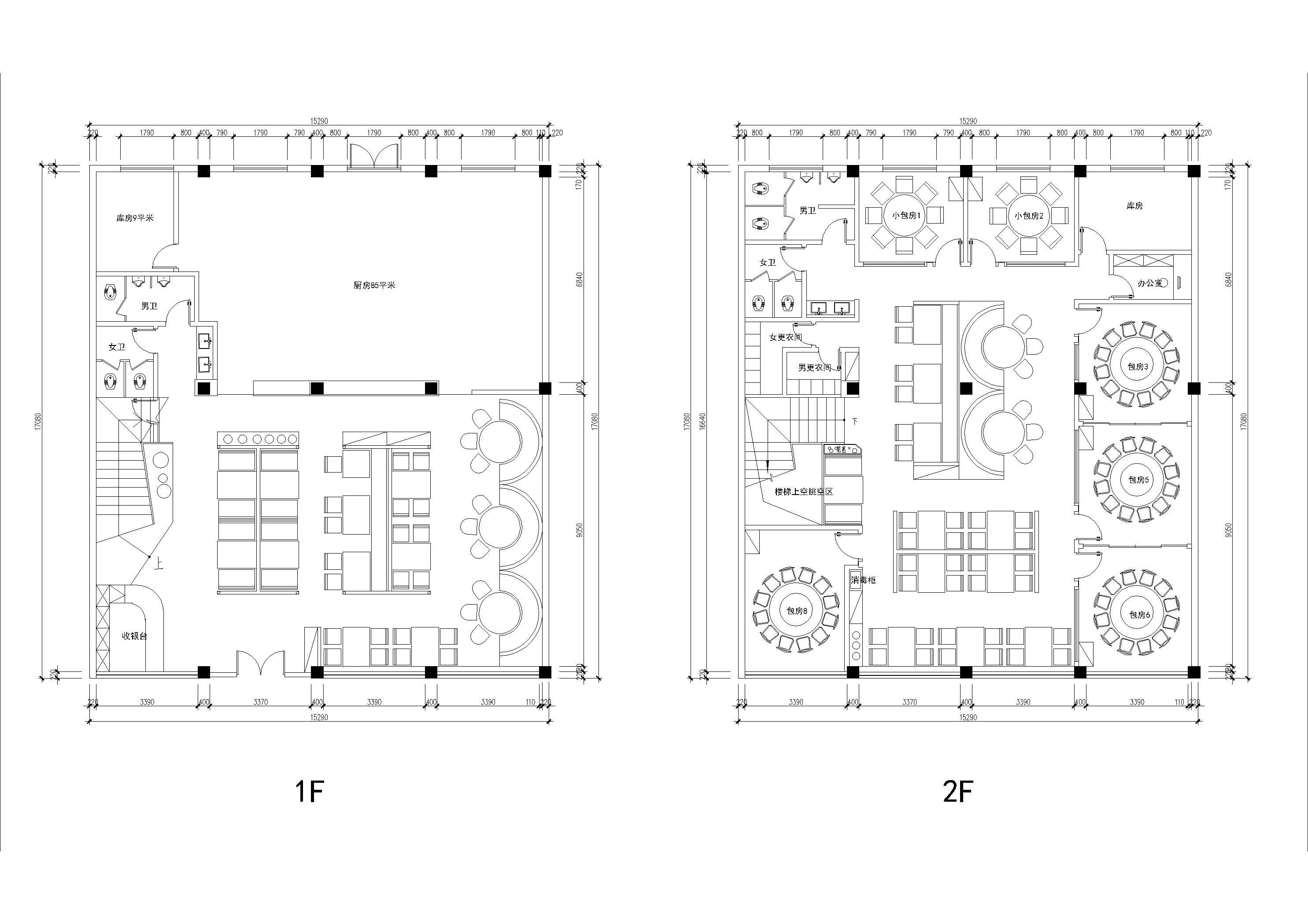
两层广州茶餐厅现代餐厅平面方案图

2026-1-21/ 户型方案/ 付费方案/ 只看大图 阅读模式
仅供分享不做任何商业用途,版权归原作者所有,谢谢配合。

马上注册,结交更多好友,享用更多功能,让你轻松玩转社区。

您需要 登录 才可以下载或查看,没有帐号?注册

x
11.jpg
2.jpg
1.jpg
12.jpg

 

两层广州茶餐厅平面方案图.rar

836.5 KB, 下载次数: 0

售价: 3 交易币  [购买]

两层现代餐厅平面方案图.rar

463.3 KB, 下载次数: 0

售价: 3 交易币  [购买]

精华推荐
换一换

发表评论0

两层广州茶餐厅现代餐厅平面方案图
拓者推荐
  • 2026拓者 CAD户型方案 发布
  • 【武汉站—“樱”你而来】获客实操
  • 【武汉站—“樱”你而来】户型优化
  • 【武汉站—“樱”你而来】风水
  • 【梁志天】西安曲江·九曲松间
  • 无间-上海汤臣君品合院方案
  • 君品-汤臣金桥花园项目方案
  • 无间-上海大宁中建玖上琅宸
  • HWCD-烟台洲際酒店深化方案图册
  • 琚宾新作-资兴东江湖度假酒店
  • 2025拓者年费+案例Vip会员说明!
  • 【 拓者年费--CAD图纸】
  • 【 拓者年费--户型方案】
  • 【 拓者年费--豪宅视频】
  • 【 拓者年费--灵感图库】