qq7758526
您需要 登录 才可以下载或查看,没有帐号?注册
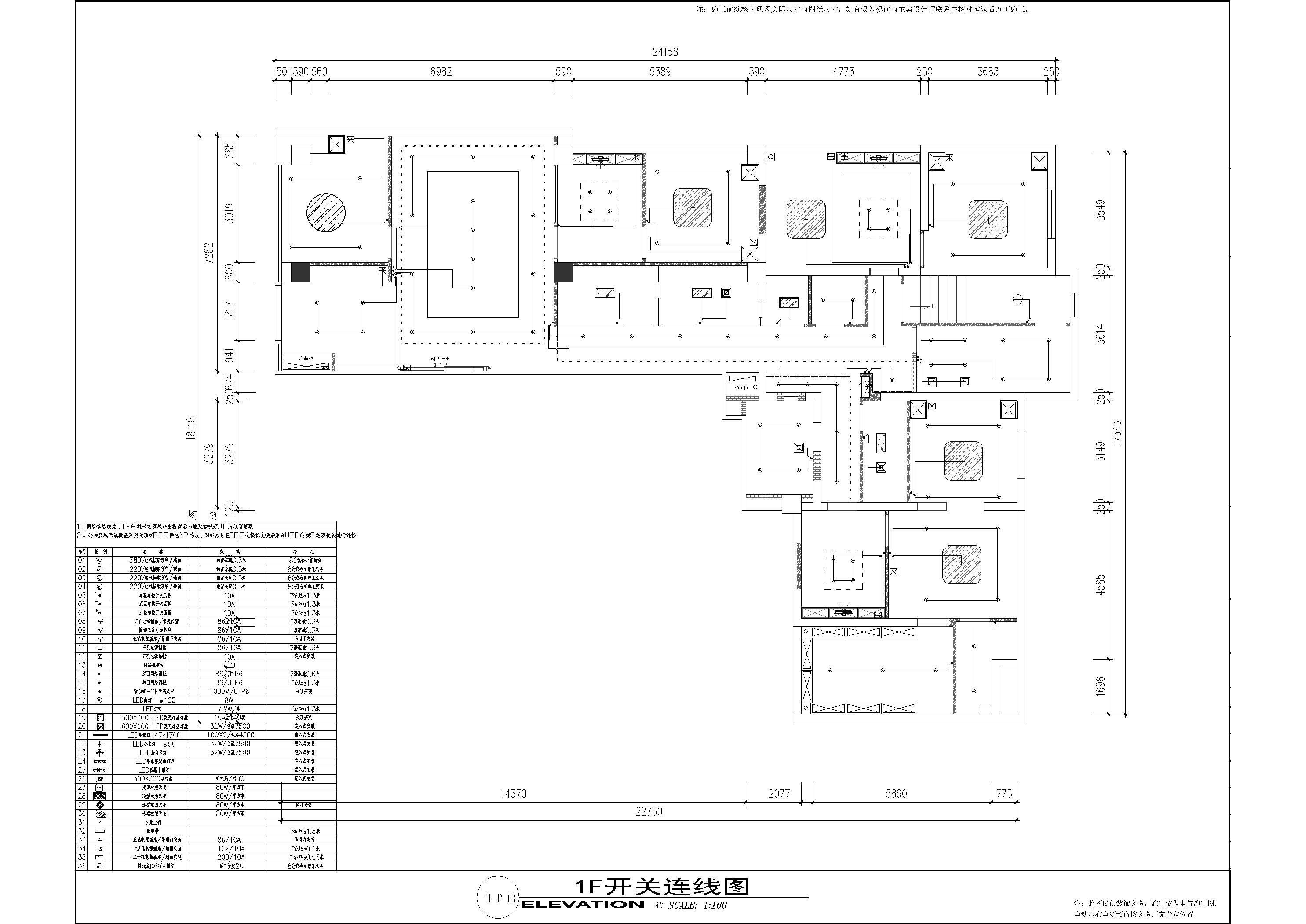
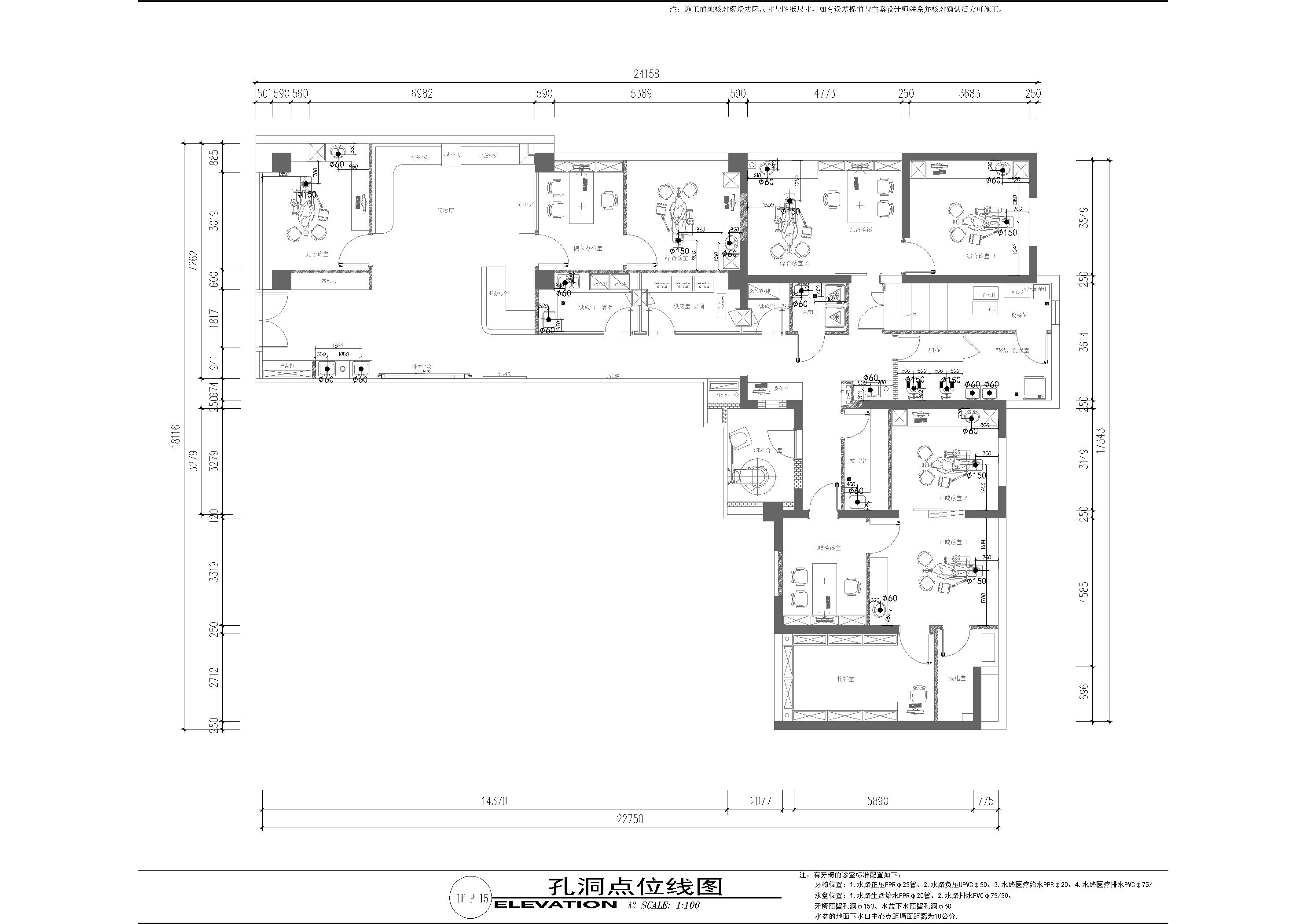
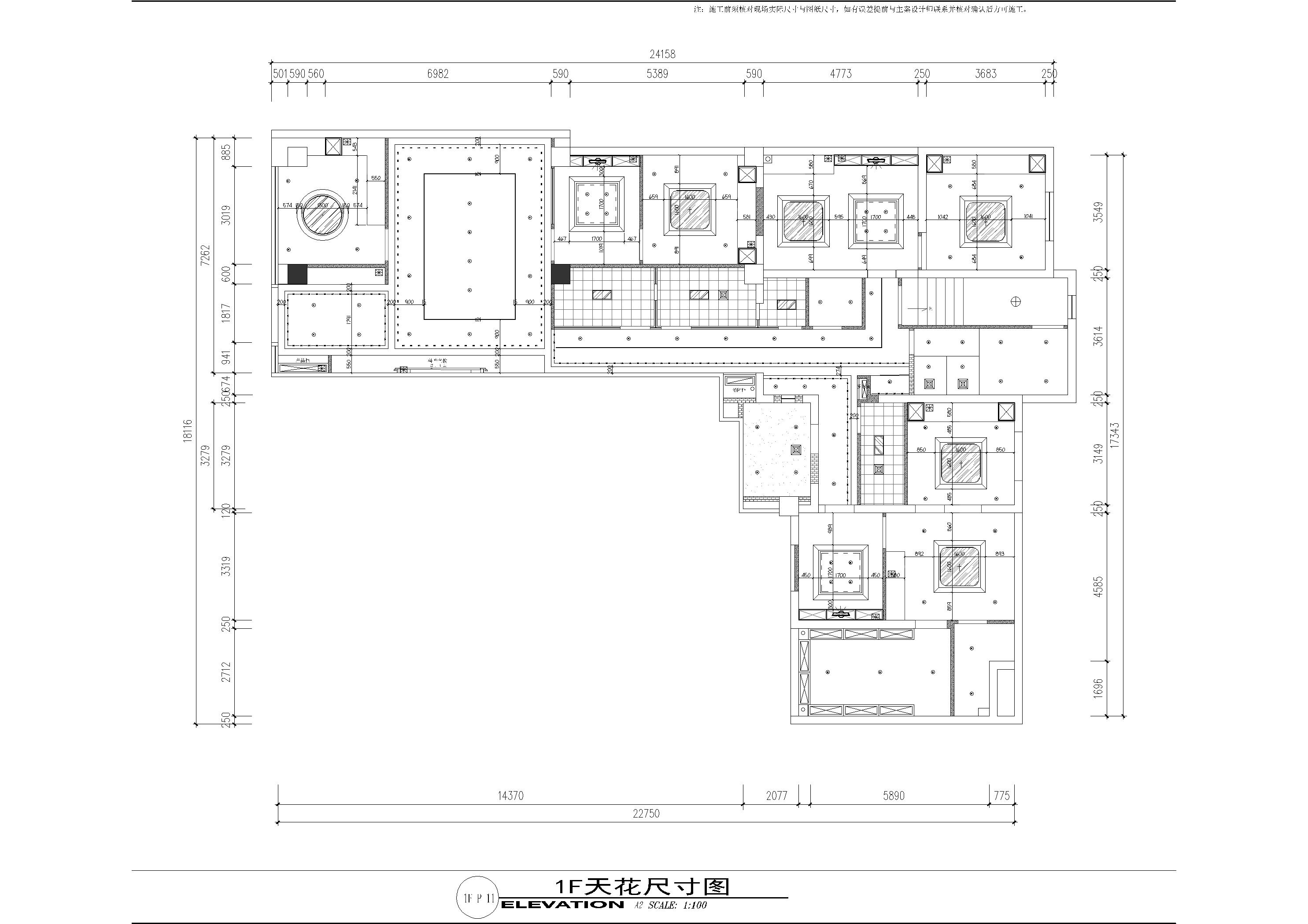
牙科综合诊室平面施工图.rar
2026-1-26 15:13 上传
点击文件名下载附件
2.54 MB, 下载次数: 0
售价: 3 交易币 [购买]
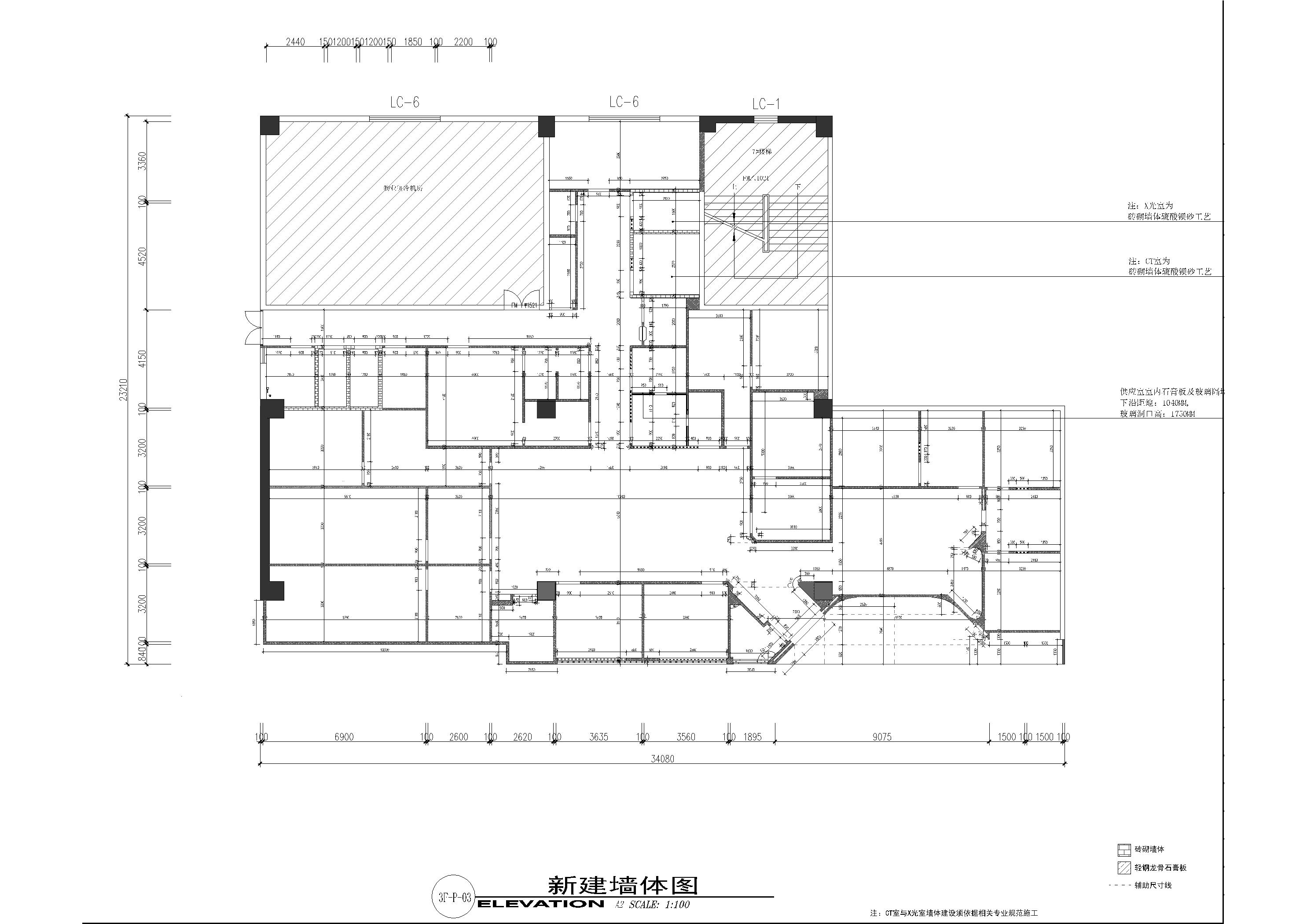
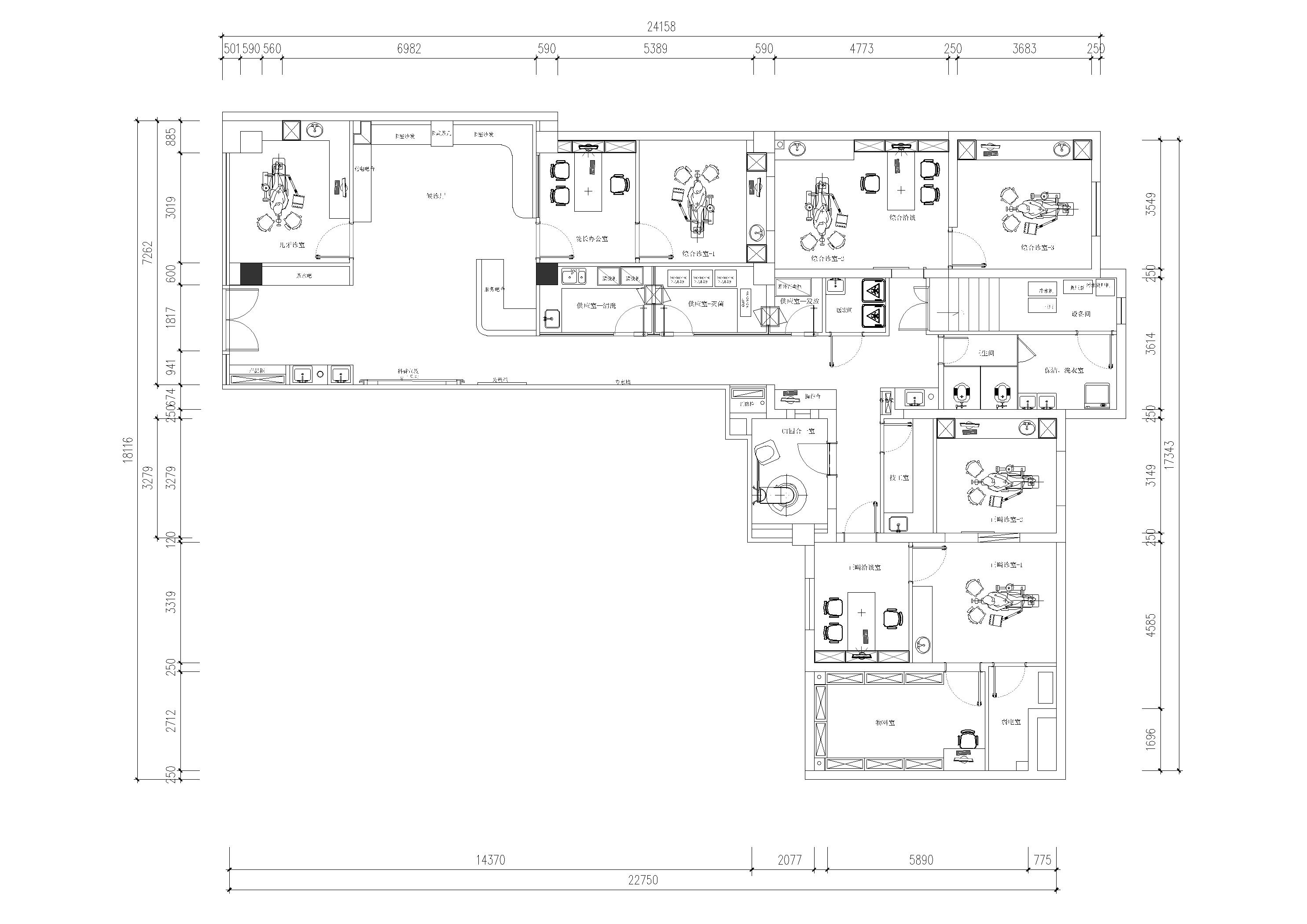
综合牙科口腔医院平面施工图.rar
3.73 MB, 下载次数: 0
发表评论0
406158
工作日:早9点--晚5点
客服QQ微信:406158
关注拓者设计吧让设计更有范
发表评论0