清晨,它穿过厨房小窗,在台面织出晃动的光斑;午后,它漫过长廊,将餐厨区的烟火气与客厅的松弛感温柔串联;黄昏,它从壁炉溢出,在米白墙面上漾开温暖的涟漪。在这光影的节奏里,时间似乎也放慢了脚步。
深炭黑的沙发是空间的锚点,温柔地环抱着每一个陷落的瞬间。猫咪轻巧跃过,留下一串柔软的印记;书本随意摊开,记录着独处的悠长。对面的悬浮壁炉里,火光静静跃动,与纱帘滤过的天光交织,让呼吸不由自主地沉入一场名为“松弛”的叙事。 餐厅是理性与感性的对白。木质温润,石材清冷,在浅灰地面上展开一场无声的对话。长吊灯垂落笔直的光,利落分割空间,也牵引着目光。单椅以一道优雅的弧度静候一旁,仿佛一句未启的邀约,等待着美食与故事的登场。 书房是一首写给热爱的具象诗。洞洞板是灵感的章节,书桌是思考的转合,那枝不经意点缀的红果,便是最鲜活的韵脚。玻璃隔断后,风干的野菊静默成诗,在秩序的框架里,生长出温软的意外。 细节处,皆是低语。复古斗柜上,金属线条如时光的针脚,与木地板的纹理静静相拥。墙面的黑色细线,是设计师留下的呼吸刻度,在极简中勾勒出生活的留白。翡翠绿的石材层架嵌于纯白之间,如一汪凝固的碧水,让空间有了深邃的焦点。 在这里,材质会对话,光影会流动,色彩会呼吸。它不只是一个容器,更是一位沉默的陪伴者,见证着周末的慵懒、傍晚的沉思、猫咪的嬉闹,也将所有这些平凡的碎片,熬煮成一首松弛的、名为“家”的长诗。每一处设计,都在重复着同一句哲学:将热爱,温柔地嵌入日常的脉络里。
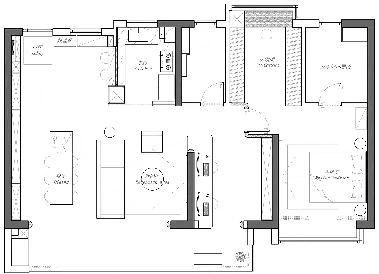
风格|STYLE 极简原木风 面积|AREA 115㎡ 位置|PROJECT南京·保利风起云台 设计:南京澜本设计 |
精华推荐
换一换




发表评论0