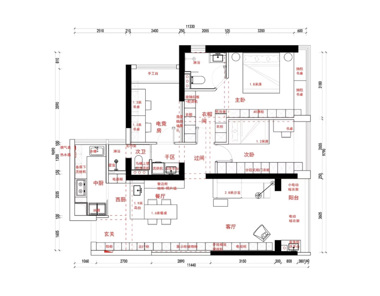
案例背景 这对新婚夫妻第一次找到我们,是在浏览小红书时刷到我们之前做的一套“轻松又好整理”的家。太太当时就在评论区问:“这种柜子真的够用吗?我家东西很多。”我们加上微信后,聊了几次,他们说想要一个干净又有点色彩的小家,不是网红同款,而是属于自己的家。 男生是典型理工,关心动线、插座、收纳量;女生是典型感性派,看到可爱的灯、椅子会尖叫那种。两个人对家的期待不一样,但又真的很甜一一他们说:“我们预算不高,但希望最大程度的让家变的更好,每天回家都开心一点。” 设计过程中他们非常信任我们,甚至到中期时太太还说:“我看到你们做的效果图,感觉比我们脑子里的家更好。”落地前后,我们帮他们确认了几十个细节一一餐边柜的层高、洞洞板的承重、挂画的色彩比例、儿童房金属架的布置方式……所有“看不见的小心思”,都是为了让这家更耐住、好用、好看。最满意的是“每天回家都会心情变好”。而对我们来说,最开心的是:他们真正在这个家里住出了热气和笑声。 户型分析 装修前
客户的问题点: 1.厨房偏小,两人同时使用不顺。 2.公区被阳台切割,尺度受限。 3.次卧面积紧张,使用效率低。 4.卧室数量多余,功能不匹配实际生活。 5.卫生间高峰期易冲突. 6.主卧卫生间转折生硬,动线受阻。 设计师的思考: 1.入户是否需要重新整理收纳逻辑,让进入空间更干净顺手? 2.厨房是否有条件打开边界,从封闭转为半开放,缓解双人操作的拥挤问题? 3.阳台是否应该纳入客厅体系,以释放公共空间的整体尺度? 4.次卧是否存在被压缩的情况,能否通过墙体调整改善使用效率? 5.卧室数量是否真的有必要,是否可以将低频居住空间转化为高使用率的电竞房? 6.是否可以取消原生活阳台,将面积回补给厨房与卫生间等高频空间? 7.卫生间是否可以放大并重组,使高峰使用时互不干扰? 8.主卧床位关系是否顺畅,是否存在不必要的转折?主卫是否可以通过斜切处理,减少阻碍? 装修后
这个项目的出发点,其实不是风格,而是不断被放大的"使用不顺"。厨房偏小,公区被切割,次卧紧张,卧室数量与真实生活脱节,这些问题叠加在一起,让空间看似完整,却始终不够好用。设计过程中,我始终围绕一个核心判断:哪些空间是真正高频的,哪些是可以被重组,被让渡的。通过对动线,面积与功能关系的重新梳理,让空间回到更贴近生活本身的状态。 1.厨房打破原有封闭格局,调整为半开放形式,操作面与通行宽度同步释放,缓解拥挤问题。 2.打通了纳入客厅体系,公共空间不再被切割,整体尺度与采光条件得到明显改善。 3.次卧通过墙体调整释放净使用面积,避免"面积存在但不好用"的尴尬状态。 4.减少一间低频居住卧室,转化为双人电竞房,让空间配置更贴合真实生活方式。 5.取消原生活阳台,将面积回补至厨房与卫生间,优先保障高频空间的舒适与效率。 6.公卫整体放大并重组,优化高峰期使用关系,减少等待与干扰。 7.主卧床位关系重新梳理,消除不必要的转折,让起居动线更直接顺畅。 8.主卫通过斜切处理异形空间,削弱直角阻碍,在有限面积内提升通行体验。 设计详情 玄关
玄关柜整合了鞋物收纳,临时置物,把原本狭窄的入口梳理得有层次,不拥堵。中段的"嵌入式空格区"刻意留白,让进门后的视线更通透,也成为随手放钥匙与包袋的收纳。 客厅 沙发选了软糯的饱满款,坐感松软,也能兼作他们周末一起窝着看综艺的"主场景"。设计里持意没有做传统茶几,而是加入了一只可移动的小边几,并与孩子般的撞色圆凳组合,让空间既轻松又灵活,符合年轻家庭随时调整使用场景的习惯。 地毯是这套客厅的"多巴胺核心"。以拼色,条纹,波点的组合,打破了常规客厅的严肃感,让空间多了一点玩乐气息,也让来访客人一眼就能读懂他们家的个性明亮,轻快,不端着。靠窗用原有的阳台落地窗引光,把光感留到最大。白纱帘柔化了直晒,同时让整客厅始终保持着一种像滤镜一样的亮度。角落的彩色画作与红色立灯,是他们俩在布置新家时第一次"一拍即合"的选择,设计师也有意保留这种情绪价值,让它们成为空间里真正的"主人". 这一整面柜体承担了客厅与玄关的主要收纳任务,通过"封闭储物+开放置物+展示柜"组合,实现不同物品的分类管理。电视区域采用嵌入式方式包容屏幕,减少可视厚度,下方悬空结构让清洁工具能自由进出,不占空间也降低打理成本。右侧展示柜使用玻璃门与分层灯带,兼顾防尘与亮度,让手办,玩具等收藏品具备可视性,同时维持整洁感 玄关段落则强调进出门的即时使用功能:坐凳用于换鞋,底部开放位存放高频鞋;上方挂钩可快速挂置包,钥匙或外套,减少物品散落。中段的开放格带电源口,可放置临时充电物品,快递开箱工具甚至小家电,动线自然且便于回收。高柜区用于储存不常用物品,季节性用品或清洁工具,使公共空间保持简洁 主卧 主卧的布局围绕"静区稳定+动线顺畅"展开。入口处的异形转角通过重新校准柜体深度,让动线在转向时没有压迫感,同时为额外的储物结构留出位置。门板采用奶黄色,与墙体区分度刚好,既维持卧室的柔和氛围,又在夜间开关门时具备更好辨识度。 床头区不做大体量背景,而是将重点放在两侧的"轻量化功能点":色块叠搭的抽屉在低位承接睡前杂物,上方配合壁灯与吊灯,形成清晰的照明分工一一床头阅读,夜间柔光,整体亮度均可独立调节。吊灯位置刻意避开床头正上方,减少视觉遮挡,也让床边留出更多使用空间。 卧室与主卫之间的距离经过刻意控制,让睡眠区尽可能避开湿区的噪音与光线干扰;同时主卫入口处的缓冲过道承担"换衣一洗漱一入睡"的连续动线,使卧室在功能上更完整。异形墙面形成的小角落被利用成辅助柜体,承接家中大件换季衣物与床品,减少卧室外围储物压力。 卧室的主要收纳以整排衣柜完成,但衣柜内部并非单一结构,而是根据异形空间做深度调整:过道段柜体做窄以保持通行宽度,靠床段增加抽屉与半挂区,提高日常衣物的触达效率。最高处设置季节性储物层,避免大件占据黄金操作区。柜门统一做隐形拉手,减少凹槽积尘,也让立面更平整易清洁。 靠窗位置保留全尺寸采光面,未做过多封堵,让卧室保持最长的自然光时间。窗台保留可用宽度,可作为临时折叠区,摆放次日衣物的过渡平台这些小动作大幅提高卧室的日常使用便利。双层帘使遮光,隐私与柔光三者之间更易切换,早晚光线都能被调整到舒适状态。 天花的线性风口避开床头,空调出风不直吹睡眠区,提高睡眠舒适度;风口下方的吊顶留白,让床头上方没有压迫视觉的结构。墙面保持大面积留空,减少多余界面,使床头成为视觉重心,也便于日后更换饰品而不破坏整体感。 通往衣柜区的过道虽为异形,但通过调整柜体的转折角度,让行走时的肩部距离刚好舒适不会在夜间碰撞家具。靠近主卫的门采用柔黄色哑光面,与白色立面区分度刚好,夜间无需强光也能找到方向,同时圆拱玻璃带来微透光效果,有利于早晚光线的柔和过渡。 整体而言,主卧通过灯光偏移,床头收纳分级,风口避开睡眠区,过道转折优化,门色柔化视觉,墙面留白等看似细微的处理,把空间的使用体验落到真实动作里,让卧室在简单的配置下仍然具备高完成度。 次卧 次卧入口的薄荷绿房门是一个小小的情绪点,让空间从打开的那一刻起就变得轻盈。床头灯选择了可调角度的壁灯,既释放床头柜台面,又让阅读,陪伴小孩入睡都更顺手。床尾区域我们安排了一处紧凑但够用的小书桌一木质台面搭配金属框架,让它既不占视觉空间,又能承载日常学习,阅读或简单梳理物品的需求。 为了不牺牲收纳,我们把衣帽储物隐藏在靠窗窗一侧:一整面可调节的金属衣帽架系统被柔软的窗帘遮住,悬挂区,置物区,抽屉区都能根据使用习惯自由调整。这样的开放式结构比传统衣柜更灵活,也让小卧室避免了厚柜体带来的压迫感。窗帘一拉,就是利落的"隐形衣帽间";放下时,则恢复安静纯净的空间表情。 因为次卧本身不适合做大量固定收纳,我们把"轻使用,轻负担"作为策略:床品选择自然柔软的克重,抱枕与画作带入一点治愈的色彩,让居住者一躺下就能放松。夜间开起桌上的氛围灯,墙面留白与柔光反射,让小房间也能呈现安稳的质感。 厨房 一扇玻璃推拉门作为界面,保持了必要的油烟独立,同时不阻断动线的连贯性。岛台位于推拉门外侧,是串联整个公共区的核心节点:早上可以在这里简单准备早餐,出门时顺手取物;晚上从厨房端出餐点,也能直接落到餐桌旁,减少往返与拥挤。餐厅作为开放位置,与玄关,厨房形成一个三点环形,使这一系列动作自然衔接,生活节奏随之变得轻松而流畅。 厨房内部采用独立玻璃门分隔油烟,高频使用的小家电被安排在外侧的一整面操作墙上,既不占内部动线,也强化了"外轻内专"的厨房分区逻辑。内部U型厨房则更注重效率:台面连续,操作顺手,黄油奶油色柜门弱化了狭长厨房的压迫感;冰箱位置刚好与玻璃门对位,形成"冷区"独立,不打断内部的核心烹饪动线。 餐厅 成品餐边柜延续了木质的温度,用玻璃门与木皮结合的方式保持视觉清爽,同时隐掉杂物,把生活的真实留给柜子,干净的画面留给客餐厅。墙面的大白板是这个家最鲜活的表达面,比装饰画更灵活,比常规的相框墙更能承载生活。不论是便签,磁吸小物还是随手画的想法,它都能轻松吸收,成为这对新婚夫妻的共同记事本。 在餐厅与厨房的交界,我们安排了精细的小尺度收纳定制柜,让常用杯具,手办,小家电都能顺手放置,也让烹饪动作自然延伸到岛台区。灯光控制在轻亮的气氛里,原木,奶白与跳色共同构成视觉平衡,让这个空间保持活泼,但不会太过用力,适合长期居住。 这一侧的岛台,衔接了餐厅和厨房,是各自的延伸区以"实用分区"作为重点:高柜区整合微波炉,空气炸锅,破壁机等小家电,将频繁使用的设备固定在顺手高度,减少移动和收纳成本;中段开放格用于日常取放,窄格层板则承担小物件的收纳展示,使物品有序而不堆叠。 兼具备餐,清洗与准备台功能,台面尺寸预留充足,满足多人同时操作;隐藏式强弱电插口提高了家电自由度,也让使用流程更流畅。洗涤区与台面保持同向布局,减少往返,提高日常料理的节奏效率。 卫生间 公卫以"纵向整合+动线效率"为策略,洗烘柜,洗衣池与储物区形成家务中转区,进入内侧则分区布置马桶与淋浴,互不干扰;半隔断保持视觉延展,大面积浅灰搭配白色柜体让空间更显清爽,让公卫在多功能需求下依然保持有序好打理。 主卫以流畅动线为核心,从干区到湿区自然衔接,镜柜整合储物,悬浮浴室柜释放地面,让空间保持干净利落;临窗的淋浴区与半通透玻璃隔断带来自然光与视觉的轻透感。 主卫重体验,公卫重效率,两者都以"轻量化,易清洁,结构顺畅"的设计策略为核心。 这样的双卫体系,让住户在日常节奏中总能保持一种"界面干净,动线流畅,操作顺手"的舒适度。空间不大,但每一个细节都在为居住者的生活做减法。 电竞房 电竞房的双人位长桌按照"彼此独立,光线共享"的思路布置,桌面深度加大,让显示器与键盘保持最佳视距;背后的洞洞板则承载耳机,手办与小物件,灯带顺着柜体底沿铺开,夜晚使用也不刺眼。上方整排吊柜采用玻璃门与木色背板组合,一方面减轻大量柜体带来的压迫感,同时也把氛围灯光纳入视觉层次里。 另一侧的大面积洞洞板是这个空间的亮点之一 -可变的层板,挂件系统让墙面从"背景"变成"工具台",能根据不同阶段的爱好调整布局,不限制未来的使用方式。窗边留出了完整的采光面,让长时间久坐的人能够自然缓冲视线,保持更舒适的状态。 整体用色保持安静中性,让五颜六色的外设,椅子与兴趣物件成为空间的视觉主角。设备再多也不会乱,氛围很宅,但不会累赘是属于这对年轻夫妻非常真实且可持续的生活方式。 |
精华推荐
换一换


发表评论0