|
“光,是人间与神境相互对话的一种语言, 并且是人性与神性共同显身具象化的领域。” ——路易斯·康
空间的灵感来自对光与尺度关系的研究,其如何把光引入以及对尺度的控制,唤起空间中更细腻的情绪变化。
这座约700㎡的独栋别墅立足中式园林的原始语境,设计师以当代视角回应生活,通过光与空间节奏的重塑,完成一次克制而纯粹的极简转译。
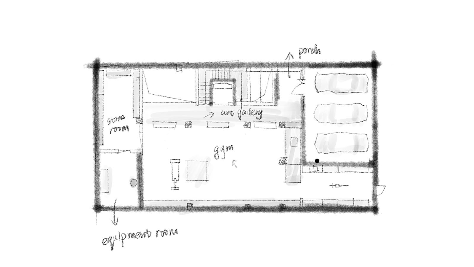
在当下,骑行、滑雪与健身逐渐成为一种被主动选择的生活方式,推动着居住空间的新理解。也重新定义了人们对居住空间的期待。 而对这座住宅的业主而言,运动并非兴趣标签,而是日常的一部分,直接参与了空间功能与使用方式的塑造。 因此在空间规划之初,负二层并未单纯的被视为“储藏”或“辅助”,而是被完整地规划为围绕单车与健身展开的功能区域。 新中式园林建筑以“游园” 为动线逻辑,通过挑空关系与体块划分重构入户序列, 原本直白的玄关,被转化为具有仪式感的过渡空间,暗合“移步异景”的美学内核。 线性灯带模拟“流水引路”的意境,弱化空间原有的沉闷感,入户的仪式体验,从踏入的第一步便已展开。 单车维修区采用通体不锈钢橱柜,应对高频使用更为耐磨可靠,洞洞板墙面整合雪板与骑行奖牌,实现展示与收纳的统一。 挑空区域通过采光井与体块之间的层次关系,引导自然光进入室内,随着时间变化,明暗在空间中产生细腻而丰富的层次。 负一层通过清晰的服务与被服务空间划分,将主要活动区域完整释放,日常功能被有序收纳于边界之内。 由负一层拾级而上,银色圆形镂空体块作为隔断介入空间,在划分动线的同时,保留视线的通透与延续。 细腻的金属表面随光影变化而呈现层次,为空间注入克制而当代的气质。 弧形顶以连续曲面包裹空间,弱化地下层的边界感,光线与动线因此更显流动而连贯。 弧形顶下,黑色实墙与白色虚面形成强烈对比,光从虚面漫入,在空间里写下“虚实相生” 的哲思。 采光天井以克制的尺度引入自然光,避免直射,让光线以更柔和的方式进入室内。 在结构的过滤与转化下,空间呈现出清晰而稳定的明暗层次,随时间悄然变化。 以大面积留白为基底,黑与灰勾勒空间轮廓,克制之中,空间逐渐形成呼吸感。 暖光滑过酒架,哑光银与木色在餐桌旁形成平衡,为夜晚的小酌留出恰到好处的氛围。 麻绳编织的躺椅自带度假气息,白天随光影舒展,夜晚在烛光中静坐片刻,成为客厅一侧最适合放空的角落。 白天,空间呈现极简而冷静的艺术气质,夜晚在烛光与暖光中,于黑白灰的框架下展开另一种情绪层次。 金属格栅作为界面,将空间划分为半开放的阅读与思考区域,暖调灯光漫过整墙藏书,在理性的线条中融入松弛气息。 格栅引导光影在墙面与地面间流动,形成“隔而不断”的游园体验,短暂停留之间,东方的松弛与现代的克制在此相遇。 天光自穹顶天井缓缓落入,在几何墙体间游走,客厅与厨房因此被自然串联,生活气息与松弛感在此衔接。 当厨房的烟火升起,镂空设计让客厅的温度与气息一同流入,烹饪时的抬头相望,成为家中最自然的互动。 以光为径,以灯为引,极简长廊被重新定义,光线自脚下延展至尽头,立灯如同稳定而温柔的光锚。 客卫干区以玻璃取代实体墙,引入挑空天光,缓解空间的局促感。悬浮洗手池在通透与私密之间取得平衡。 灯膜顶以均匀光感覆盖楼梯,柔化行走过程中的视觉边界,雕塑与体块的叠加,使这一段上下转换更富观赏性。 通过玻璃采光井,将三楼的天光引入狭长的楼梯间,圆形天窗与踏步灯相互呼应,使原本逼仄的空间变得明亮而轻盈。 一层中式窗的比例与节奏被完整保留,沙发正对园景布置,将视线自然引向室外。 坐下的瞬间,四时更迭悄然进入日常,窗外的园林退为背景,也成为空间最安静的一部分。 窗外是苏式园林的白墙黛瓦,窗内是当代极简的日常生活,秩序与尺度,在空间中缓缓流淌。 家具退居为背景角色,线条低调而当代,留白与光影成为主角,在克制中显露东方气质。 格栅以半遮的方式处理入户界面,弱化视线的直接暴露,同时让灯光与雕塑轮廓在其间若隐若现。 通过弧形内凹打破空间限制,在主卧一隅形成过渡,原本局促的楼梯出口,被转化为进入私区前的温柔序章。 主卧以极简线条界定睡眠区域,深色木墙与柜体兼顾功能与美感,弧形墙体柔化边界,使私密空间更具包裹感。 △负二层平面 △负一层平面 △一层平面 △二层平面 △三层平面 项目名称|与光骑行 项目地点|中国 上海 项目面积|约700㎡ 设计机构|FF DESIGN 设计总监丨费崎峰 项目运营丨陈晓峰 设计团队丨李智民 参与人员丨柳 文 王宇栋 李研蓓 项目摄影丨徐义稳 费崎峰/FITCH 上海费弗空间设计有限公司设计总监兼创始人 设计最大的成就感就是把想法变成现实 费弗空间设计(FF DESIGN)成立于2017年,是一家在业内享有声誉的室内设计公司。设计团队由一批高素质国际化的资深设计师组成,为客户提供专业及优质的硬软装整体设计服务,设计范畴包括建筑设计、高端住宅、样板间及售楼中心、精装交楼标准、酒店及餐饮俱乐部、商业中心、办公空间等。FF DESIGN拥有才华横溢的专业人士与管理团队,其资源与技术优势完全可以胜任完整的项目运作,即:市场分析定位、总体规划以及贯穿整个项目施工过程中的施工图设计、现场管理等。 我们的作品应当是对当下的社会问题作出的一种回应,是在解决过去、现在和未来的连续性问题。我们认为设计应在普遍性当中寻求与众不同,差异性和多样性,这些是设计进步的源动力。设计不应只是追求夸张、惊人的形式,应当是对现代人行为方式的研究。我们跟很多设计师一样,在资源过度消耗的今天追求负设计,负设计是在满足人们需求的前提下将能耗降到最低。我们希望用最合适的设计语言让人跟空间产生对话、交流与情感共鸣。 |
精华推荐
换一换




发表评论0