|
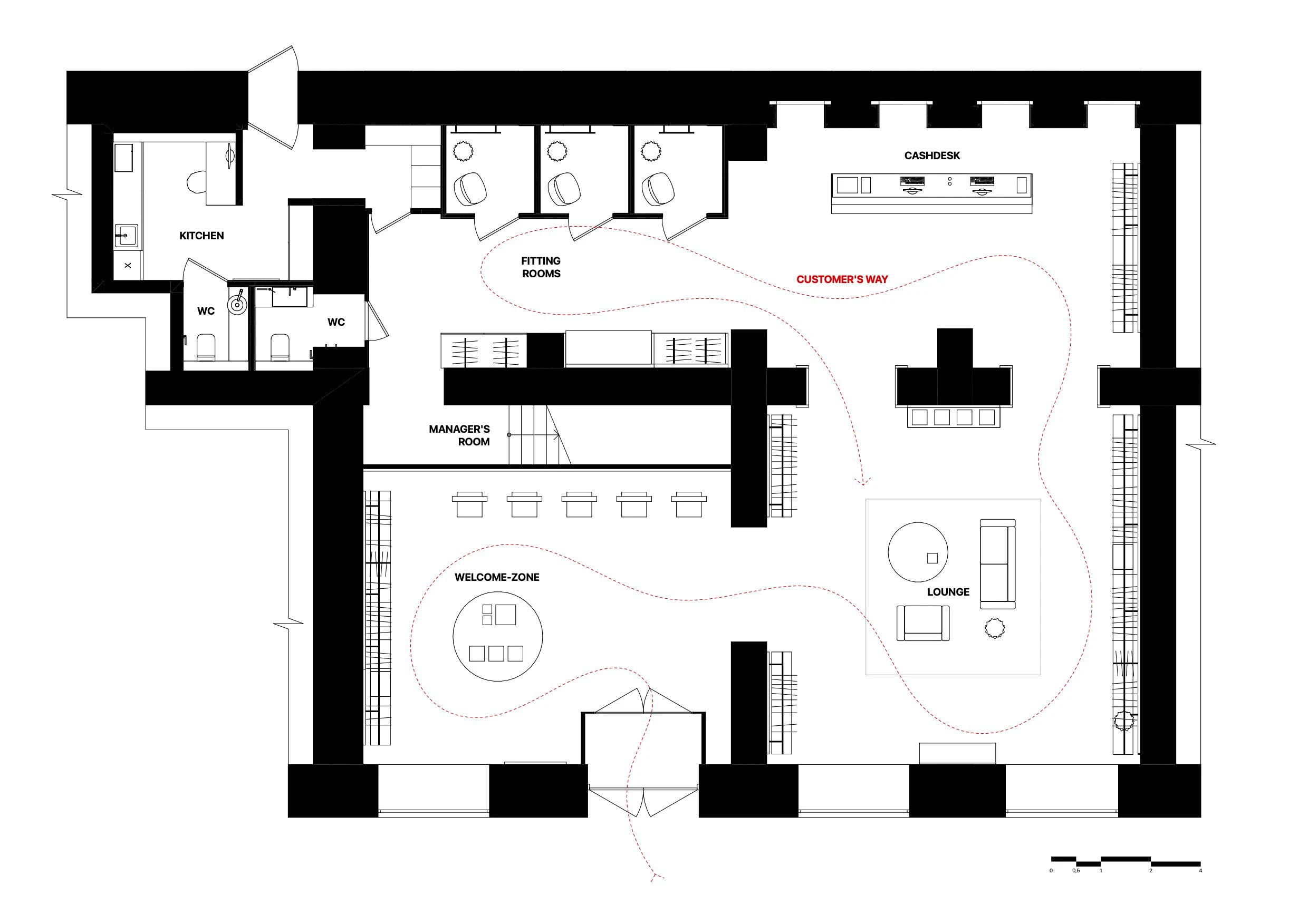
Nude Story商店 建筑师:Roman Gulyaev、Maria Tsakharias 摄影:Daniel Annenkov 时尚之家、数字画廊还是意大利家具目录中的宫殿?我们希望将这三个主题融合在位于库兹涅茨克大街的新旗舰店Nude Story中。宏伟而鼓舞人心的建筑、通风的布局和高高的天花板,将这三种趋势紧密相连。该品牌为旗舰店选择了建于1899年的建筑——位于库兹涅茨克大街和彼得罗夫卡交汇处的A.S.霍米亚科夫的盈利房屋。 这家精品店分为四个大厅:其中两个大厅用作零售空间,其中主前厅设有数字吊灯和一个小型休息区;第三个大厅用作收银区,窗户上装有媒体面板,收银台为4米长的缟玛瑙材质;第四个大厅是试衣区。此外,还可以在一楼整合一个设施齐全的休闲区,包括员工厨房和打包区,而办公和仓库区则设在夹层。 主厅的中心是一块石制“地毯”,等候区就设在这块“地毯”上。意大利设计的特色在于,休息区的沙发和扶手椅以特定的组合方式布置,我们甚至咨询了意大利家具专家。我们试图设计的室内环境并非刻意追求意大利风格,而是运用只有指尖才能感受到的技巧来展现我们的设计理念。然而,我们的主要出发点是房子本身及其建筑风格。我们希望移除所有不必要的装饰和前租户建造的隔断。
|
精华推荐
换一换



发表评论0