|
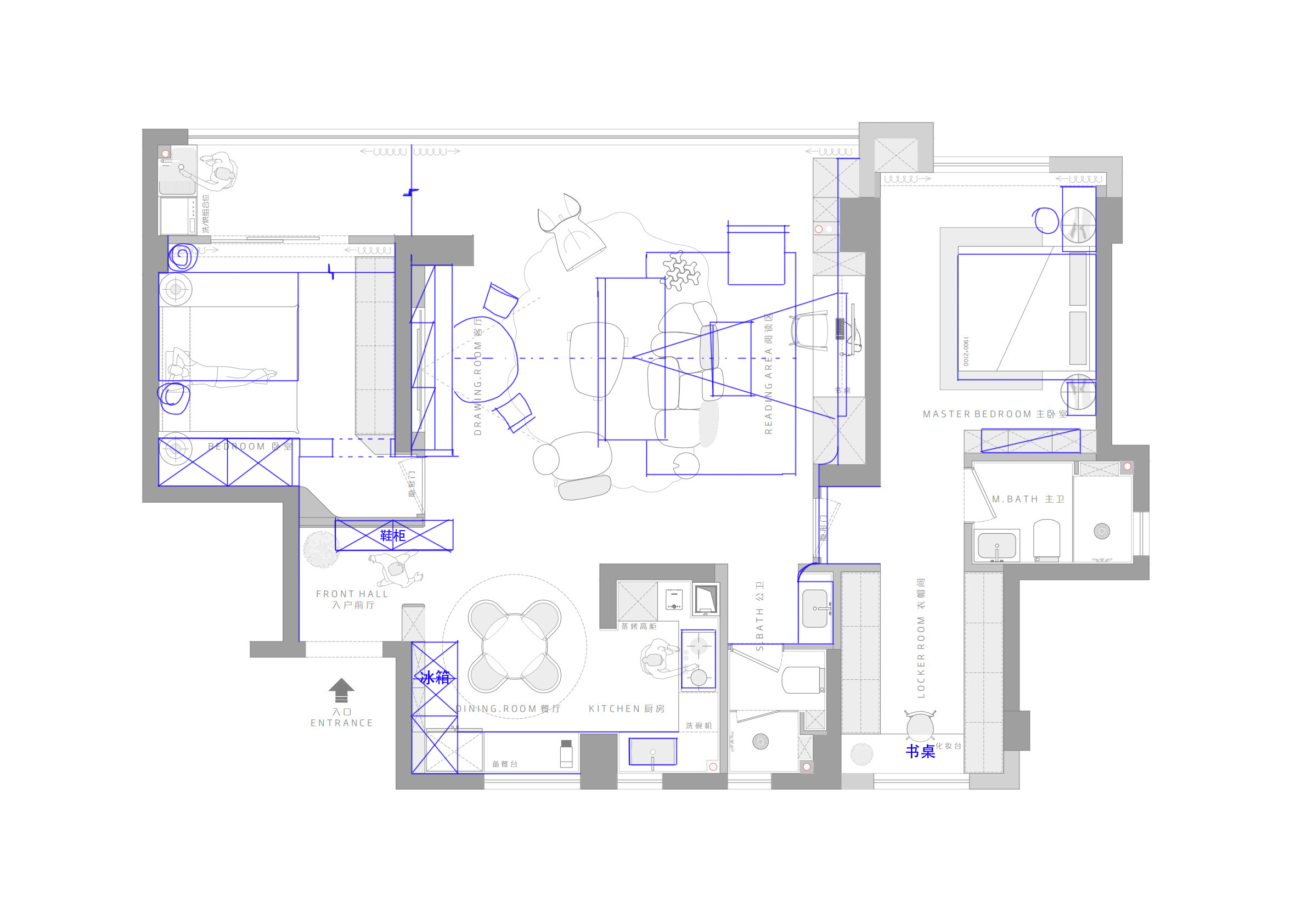
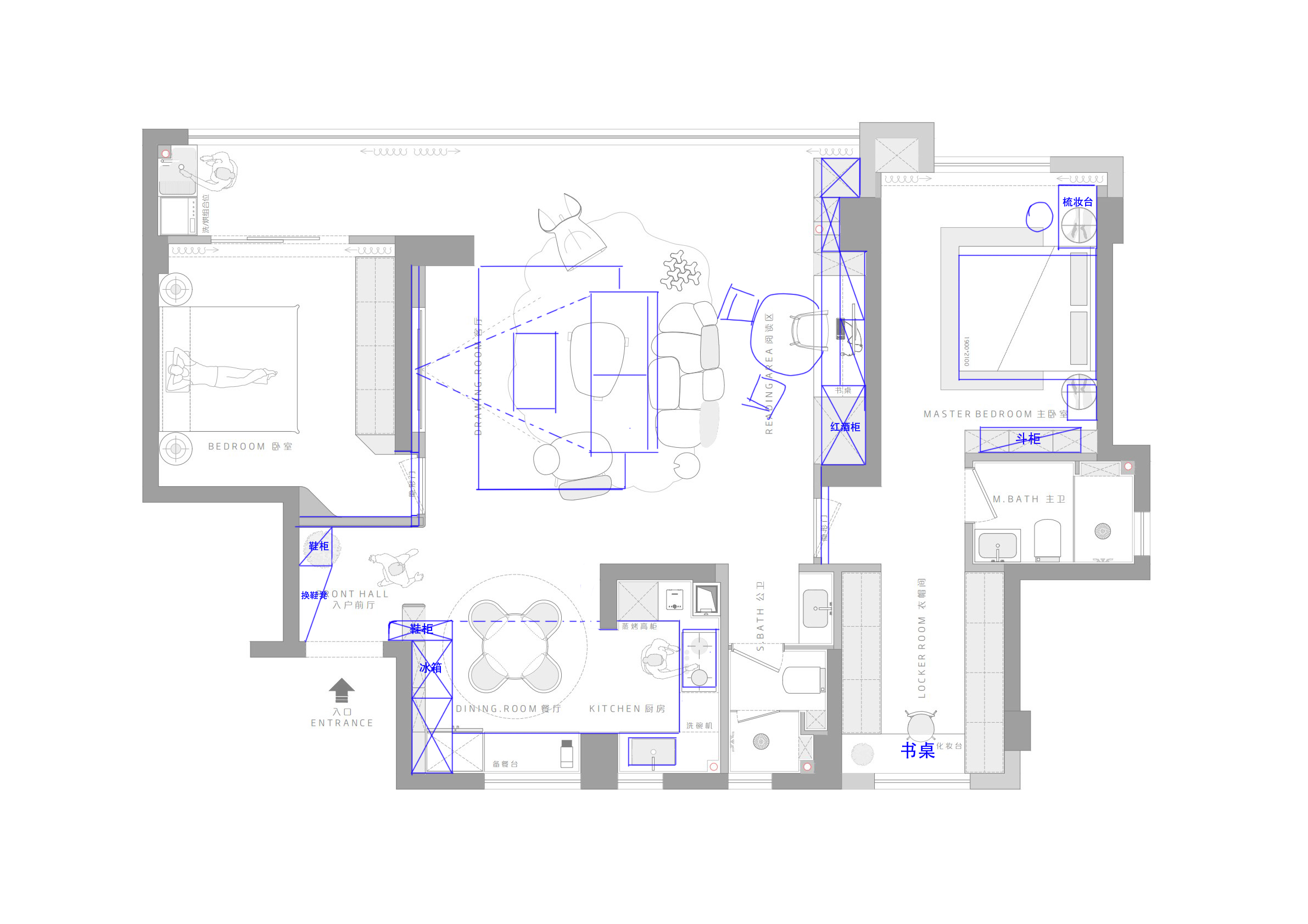
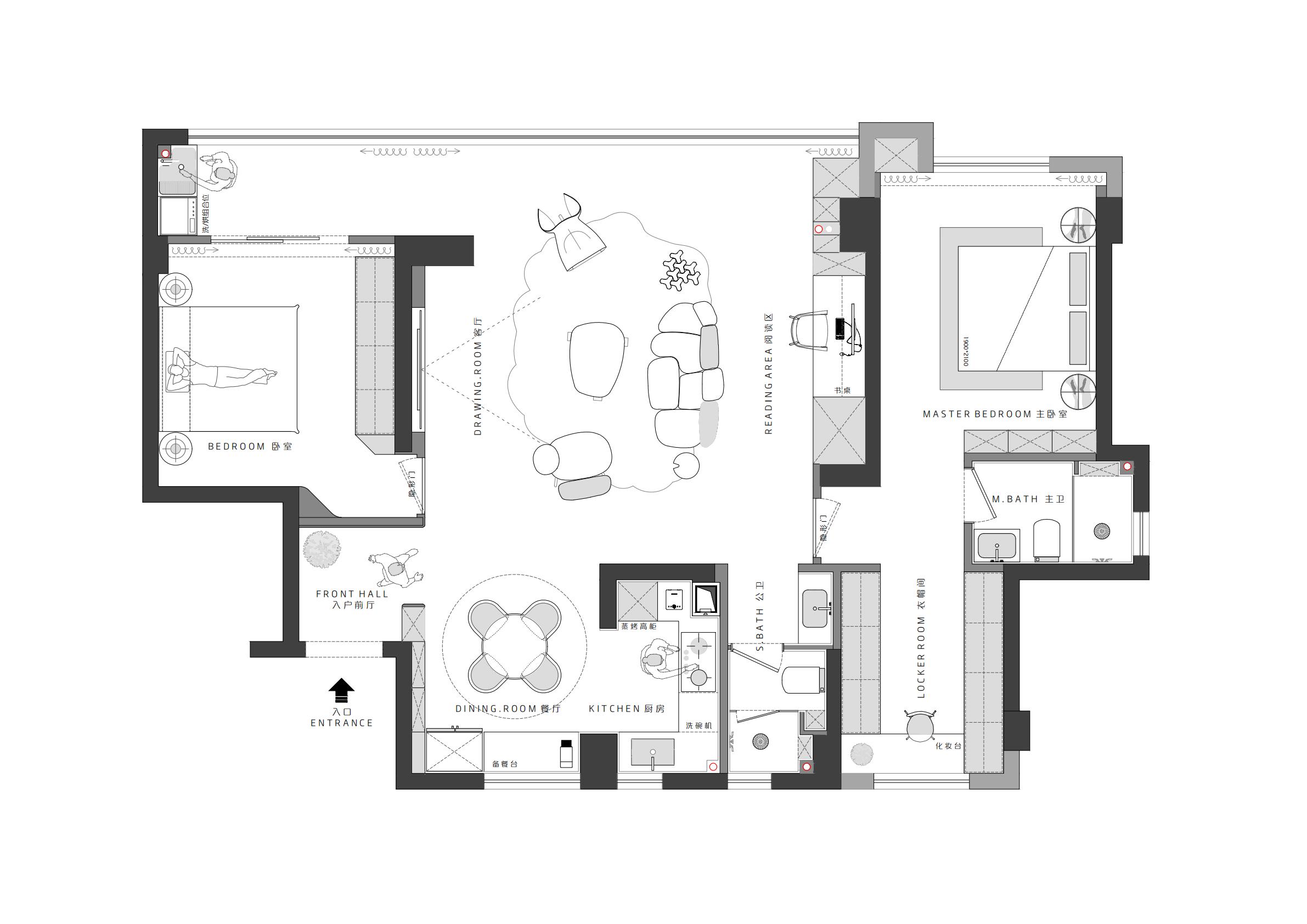
本帖最后由 妖先生 于 2026-3-13 16:55 编辑 需求是两个卧室加一个书房,书房可以在客厅敞开式,现在这个方案做了一半做不下去,感觉太常规,没有什么设计感。而且有很多不满意的地方,1、次卧的房门,从前面进的话要么多个角,要么跟玄关冲突,从阳台走的话感觉又比较偏; 2、餐厅厨房感觉偏小,酒柜鞋柜都没地方做; 3、整体方案感觉太平庸了 以上请各位老师们指点一下,万分感谢!
|
-
-
121.56 KB, 下载次数: 34
-
-
47.88 KB, 下载次数: 27
精华推荐
换一换



谢谢,我觉得把厨房扩大的方案非常好