“每一个空间都有它的意义,不只是房子,更是一个可以生活、放松、陪伴的地方。”
好的设计不是空间的堆砌,而是对生活的梳理与回应。 在本案中,设计团队以克制的干预,将原本封闭的复式空间转化为开阔、有序且充满生命力的居所。当光线自由流动,功能各归其位,每一个角落都在讲述居住者的故事——这便是“美式慢节奏”的真正内涵:从容、温暖、且长久。 屋主对新家的期待很清晰:
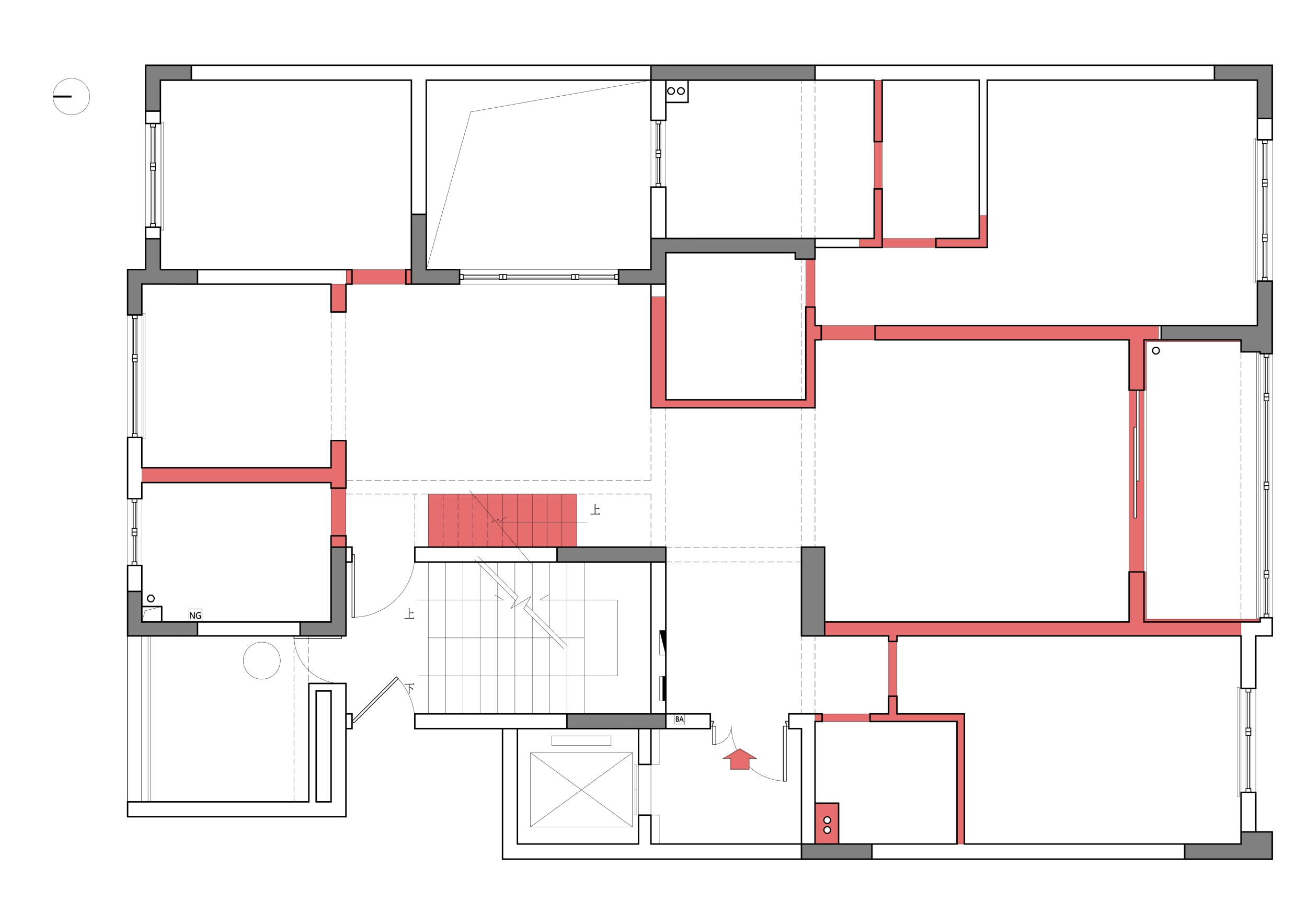
第一次走进这套顶层复式,我们感受到的是典型的“大房子的小尴尬”——面积不小,却各自封闭;采光面多,却中部昏暗;功能齐全,却动线冗长。
· 各空间相互独立 ,布局封闭, 南北纵向距离过长,导致中部及门厅采光严重不足 · 厨房面积局促, 电梯位置缺乏合理规划 · 主卧空间大但收纳严重不足 · 公卫远离主要生活区, 动线冗长 · 无独立家政间与晾晒区 · 取消入户卧室,南向客厅扩展为横厅,融合茶室+书房 · 打开北侧厨房,全U形布局,增设岛台与小吧台 · 整合主卧,合理规划衣帽间与收纳柜 · 公卫移至房屋中部 · 原客厅与主卧之间挤出南向家政间
· 坡顶结构, 梁体交错 · 层高参差不齐中部露台将空间割裂为南北两区 · 无法有效联动孩子的活动领地需在有限条件下平衡睡眠与娱乐功能 二层将睡眠区与娱乐活动区分离,实现动静分区,低矮区域用于收纳,中部花园小巧精致,提升空间趣味性。 【光线与仪式感】 门厅向客厅与茶室打开, 自然光线充分引入 。一侧衣帽柜满足日常出入收纳。对景处选用藏毯作为视觉焦点,入户便有了仪式感与温馨氛围。 门厅与客厅之间的承重墙,恰如其分地成为空间稳定感的屏障。 【一种空间,六种可能】 原二合一空间转化为:茶室 + 书房 + 客厅 + 植物角 + 轻音乐区 + 飘窗休闲区的复合场域,既可满足家人分区使用, 亦能应对好友相聚。 飘窗区域可供坐读或卧睡, 采光通风条件优越, 成为植物角的理想位置,下方暗藏收纳。 客厅后方设家政间:朝南通风, 洗烘晾晒一站式解决,亦是理想的晾晒区域。 客厅的改造不仅回应了屋主对"美式慢节奏"生活的向往, 更真正实现了"空间开阔 、氛围温馨"的居住体验 。 【打开之后,别有洞天】 厨房完全打开, 沿窗布置超大全U形操作台。 中置岛台与小吧台满足早餐与轻食需求 。利用电梯结构错位,挤出独立常温储物区, 实现立体收纳,不占用柜内空间。 餐区容纳岛台 、吧台 、餐桌三种尺度, 适应从早餐到正宴的多种就餐场景 。西厨边柜补充收纳与操作功能。 【动线清晰,收纳有序】 开门即见衣帽间, 动线简洁直接。 睡眠区温馨舒适,光线柔和, 营造放松氛围。 【坡顶下的年轻领地】 南侧阁楼:满足阅读 、观影 、游戏等多元需求。 北侧阁楼:通过电梯或公用楼梯与一层相连, 可联通也可独立使用 【城市上空的留白】 露台是屋主最珍视的角落,也是这个家向外延伸的留白之地 。 木质铺面搭配轻盈户外家具, 围合出一方可小憩 、可待客的半私密场所;角落的绿植与花坛延续了室内"有花有草"的生活气质; 入夜后,暖色串灯与壁挂灯笼营造出柔和氛围,既适合独处发呆,也宜邀三五好友围坐闲聊。 在这里 ,城市的喧嚣被屋顶隔绝,只剩天光与风声陪伴。 |
精华推荐
换一换




发表评论0