本帖最后由 范超设计 于 2026-3-27 16:59 编辑
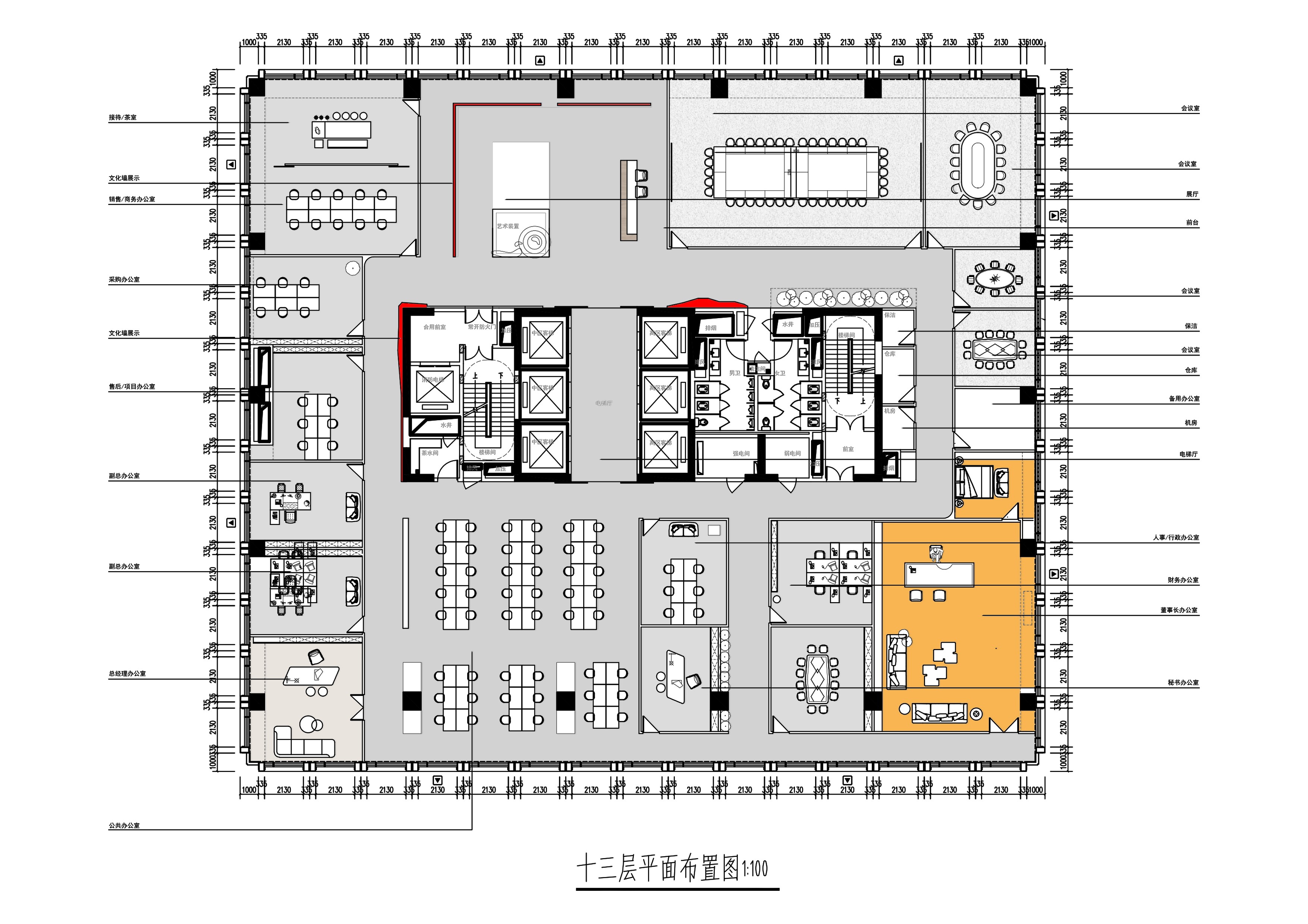
独墅湖畔 这套单层2000方的场域 设计一家自动化科技公司的办公场所 容纳百人以上的办公室 同时需要多间会议,接待,独立办公室的功能 要问我怎么设计
延中庭电梯通道的位置画一个圈 向外偏移三米做走道 临窗的位置做办公室 这不就出来了 不信 你看 进门超过5米长的前台迎宾 背后设计接待办公室 左侧会议与休闲 右侧接待与展示 向下 左右两侧依次办公室等空间 董事的办公室的位置设计在西南角的场域 如此是否可行
甲方意见 董事长需要在东南角的场域 调整一下 是否可行
甲方意见 董事长的办公室得从南边做入口 且全部红木家居,不能阳光直射 再来一稿 是否可以
进门空间设计为接待大厅 选用著名艺术家史金淞老师的雕塑作品《树》作为空间的灵魂 左侧设计为接待茶室与商务办公,主要开放给外协的伙伴们 向下依次设计为销售,采购,副总,老总的办公室 进门设计四间大一不一的会议室 正南中庭的位置设计为公共办公 依临人事,秘书,财务等办公场域 东南角给到董事长 坐拥豪华无敌独墅湖湖景观 视野一打开,好梦自然来
|
精华推荐
换一换




发表评论0