F L Y ¢ D E S I G N ⊙ # 浮光境 # 当晨光漫过窗台,在现代简约的空间里,一场关于材质与色彩的风格对话正悄然展开。包豪斯时代的混凝土与金属材质的碰撞,原始肌理与冷冽质感以静默张力诉说着工业美学的理性秩序;蒙德里安的三原色如灵动的音符跳跃其间,情感的激昂在每一方材质的衔接、每一处转身悄然绽放。家,是理性与感性的共生体,是一湾情感丰沛、暗流涌动的爱河。
客厅 / Living Room
客厅 / Living Room 客厅 / Living Room 客厅 / Living Room 以空间设计为载体,用克制的专业语言构建理性框架,再以诗意的意象注入情感温度。电视背景墙铲出原始混凝土保留其质感,搭配复古罗马柱,与简约的现代空间碰撞,犹如在一马平川的草原前行,忽而转身撞见雪山刺破天际般的冲突与浪漫。蒙德里安的红黄蓝三原色跃动在家具饰品之间、墙体之上,灵动热烈却以均衡之势游走在沉稳骨架之中,感受到秩序与自由的和谐共生。 客厅 / Living Room 客厅 / Living Room 客厅 / Living Room 餐厅 / Dining Room 当经典碰撞融入现代居所,利落笔触勾勒轮廓打造开放式厨房,餐厨0界限拓展空间尺度与通透感,以不同地砖的衔接界定空间区划,灵巧的组合式餐边柜和铁艺悬挂置物架,与橱柜、餐椅一同展露中古包豪斯家居美学。 餐厅 / Dining Room 餐厅 / Dining Room 书房 / Study 书房 / Study 书房 / Study 由四室改三室契合使用者实际需求,其中一间卧室改为开放性书房,与客厅密语强化公区通透感、放大空间体积。以粗犷混凝土墙面为基底,金属置物架与木质书桌衔接组合,冷冽与温润感并不冲突,如人物情绪一般更为立体丰满,贴合主人翁情绪起伏变化。 书房 / Study 书房 / Study 书房 / Study 书房 / Study 日暮西沉暖黄的光线撒入书房,在墙壁与书桌上漫游,混凝土墙面突然褪去工业感的粗犷,反倒变得温润质朴,顿感平和包容。理性的几何线条在此刻被赋予感性温度,时间在此凝固成一首静默的诗。一侧飘窗加以改造,设地台式书柜,上可盘腿而坐,下可收纳书籍,静享舒展时光。 书房 / Study 书房 / Study 书房 / Study 主卧 / Master Bedroom 主卧 / Master Bedroom 更改空间骨骼,动线的变动使得主卧入口改由书房进入。双开门增加入室仪式感,拆除原衣帽间墙体归还卧室宽敞体感,在床头一侧及卧室门所在墙体做收纳柜解决储物需求。合理的动线变动与功能区的更改调整,卧室布局展现其应有的条理性,契合人物工程学与家居美学。黑色与紫色点缀交织的睡眠空间,即有深邃的静谧感,又不失优雅的浪漫气息。 主卧 / Master Bedroom 主卧 / Master Bedroom 主卧 / Master Bedroom 次卧 / Second Bedroom 儿童房 / Children's Bedroom
原始图
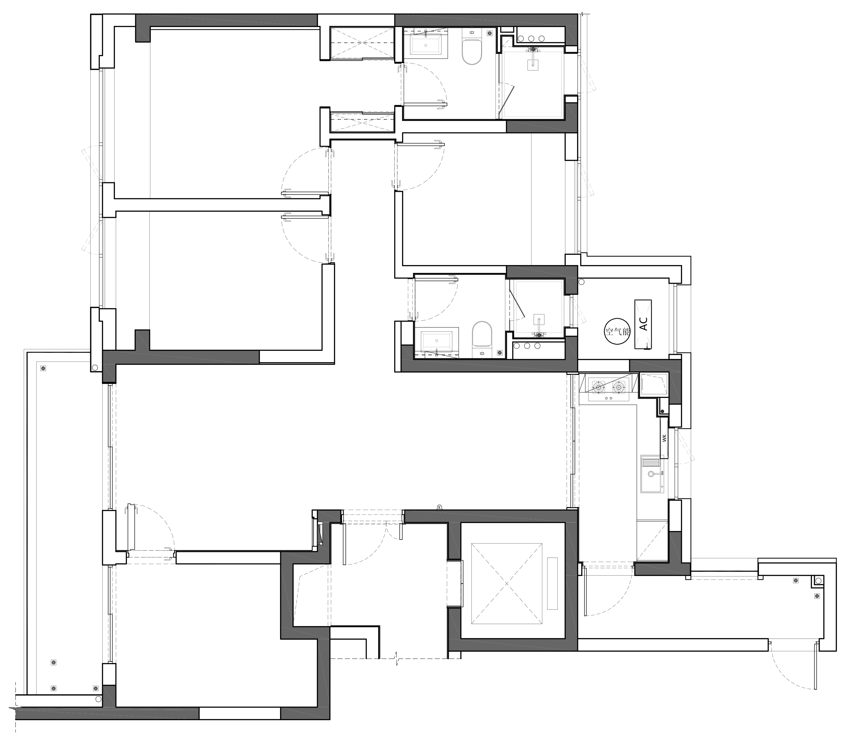
平面图 电话&微信/ 13456976319 QQ / 2696964275 抖音 / 菲拉设计 邮箱/ flydc_co@qq.com 地址/杭州市上城区顺福商务中心3幢1703室 来自群组: 杭州菲拉装饰 |
精华推荐
换一换




发表评论0