大佬们可以帮帮忙吗,头脑风暴了

昨天 13:57/ 户型方案/ 户型交流/ 只看大图 阅读模式
仅供分享不做任何商业用途,版权归原作者所有,谢谢配合。

马上注册,结交更多好友,享用更多功能,让你轻松玩转社区。

您需要 登录 才可以下载或查看,没有帐号?注册

x
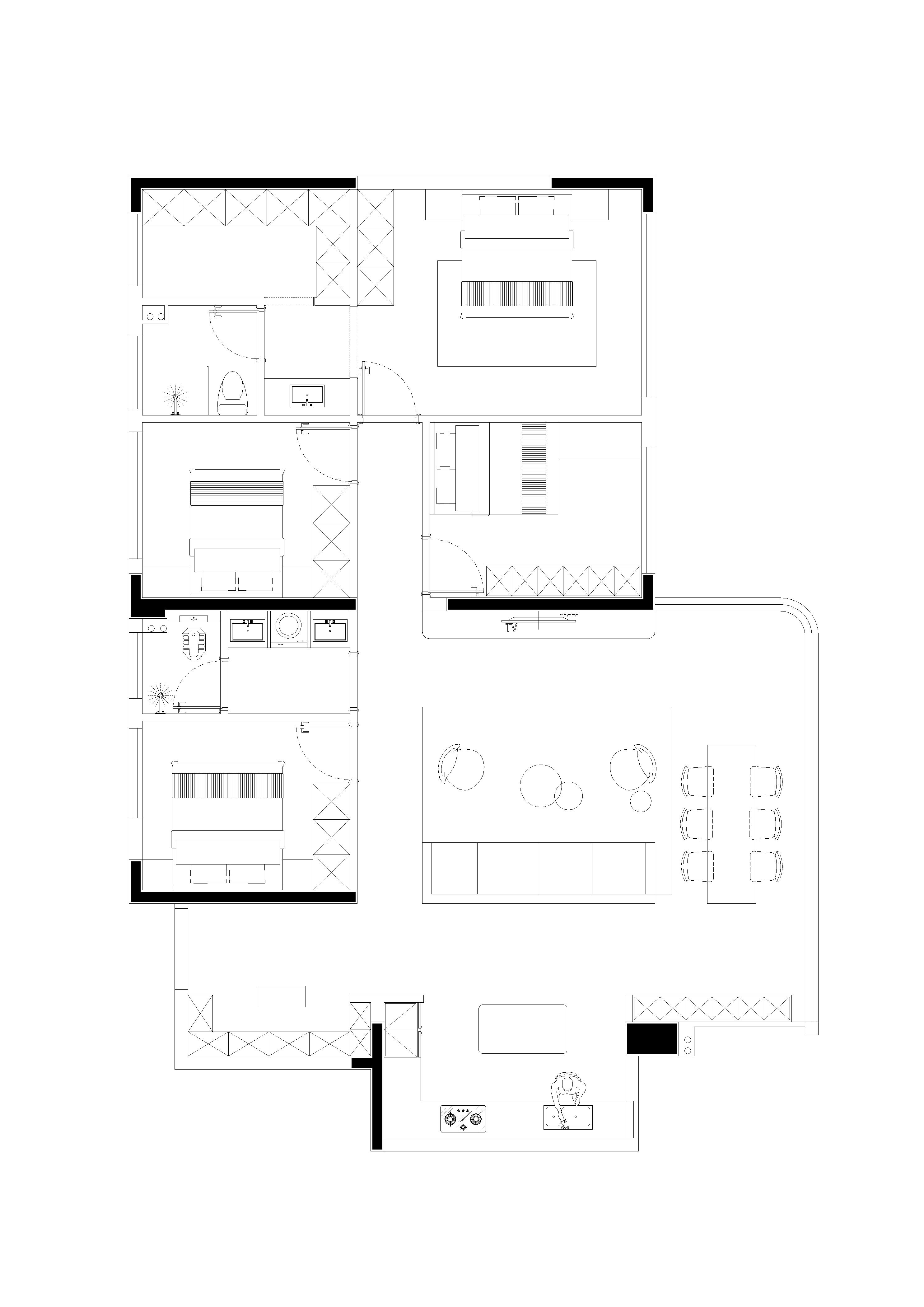
给客户做了一个基础方案,按他的需求,我实在是灵感枯竭了。大佬们可以帮忙看看吗。业主一共六人,夫妻两人,父母两人,一个儿子8岁,一个女儿12岁,硬性需求两个卫生间,公卫两个洗手盆。他们不想这样中规中矩的布局,想要创新一点的,改造空间实在有限。恳求各位大佬帮帮忙。
原始结构.jpg
平面.jpg

 

户型.rar

146.99 KB, 下载次数: 0

标签: 户型交流
精华推荐
换一换

发表评论0

大佬们可以帮帮忙吗,头脑风暴了
拓者推荐
  • 孟也新作-七都岛640法式别墅拓者空 600㎡极简别墅
  • 【武汉站—“樱”你而来】获客实操
  • 【武汉站—“樱”你而来】户型优化
  • 【武汉站—“樱”你而来】风水
  • LSD-宁波鳳栖雲庐合院样板间
  • CCD-华润 CCBD 889㎡设计方案
  • 孟也新作-七都岛640法式别墅
  • 【WSD世尊】建发·云启玉诸
  • 苏州绿城樾庐合院样板房
  • 无间设计-上海万科中兴傲舍
  • 2025拓者年费+案例Vip会员说明!
  • 【 拓者年费--CAD图纸】
  • 【 拓者年费--户型方案】
  • 【 拓者年费--豪宅视频】
  • 【 拓者年费--灵感图库】