「南法的松弛与慵懒」 归家入玄关,如同电影的开场,入幕布局以暖色系为主,砂岩质地的墙面石材,带来温润的呼吸感。 悬挂的陶瓷艺术,如自然海浪的波纹,将海岸浪漫融入到家宅气质中。
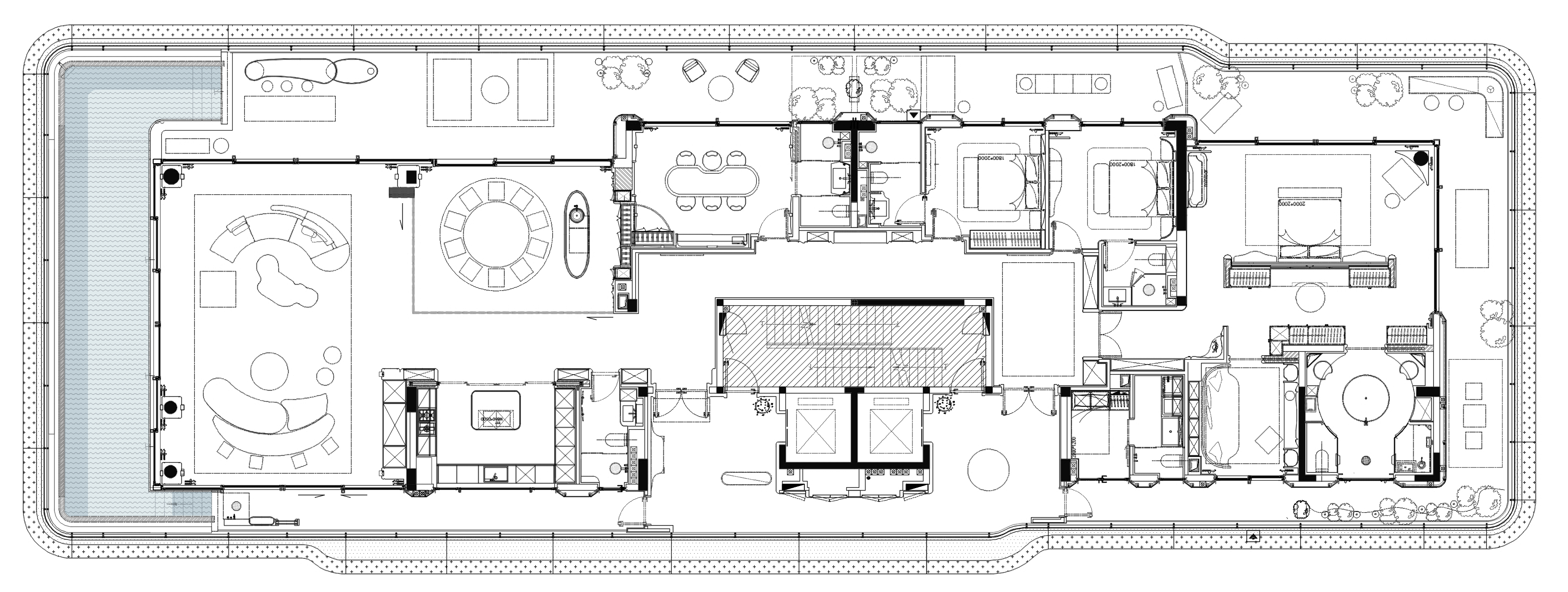
一侧客餐厅的圆形餐桌,临窗而居,可瞰海聚谈,圆形地毯与吊顶上下呼应,如亲友间亲密的涟漪,荡漾开来。
岛台之后,设计师为酒柜特别设计了轨道移门,可随心意开合,变成隐秘空间。
巧妙之处在于酒柜之后,藏匿着一方雪茄、棋牌与饮酒的娱乐室。 木纹砖铺就的地面,配以马毛材质的墙面,珍贵的是每一面纹路都不尽相同,搭上自然手绘的壁纸,雅致脱俗。 同时,亦可推开门来到阳台,室内外空间自由切换。 「一室三重境」 从社交场域到私密休憩区的距离,是从海到梦、从光到影、从声音到寂静的过渡。 整个主卧采用中轴式布局,尺度阔朗的同时,更巧妙地将生活场景分为三个独立又相连的专属空间: 首先是主卧床区域,背板两侧如同艺术藏品的手绘植物墙纸,让每日起居都伴随画廊级的审美体验。 主卧外侧的阳台,更搭建了度假感的场景:定制款羊毛材质手工挂毯、搭配看景的躺椅和迷你Bar, 构成主人可静谧私享的平台,无论是清晨舒展、傍晚落日,还是夜观星辰,都能让身心得到彻底焕活。 除此之外,主卧套房内还设有独立按摩房和私享松木SPA区。 主卫摒弃了封闭式格局,以开放式淋浴区与柔和的帷幔相搭,光影间泛起似有似无的珍珠光泽,萦绕着浅滩微风般的度假气息。 第二个专属空间是晚归房,也是一方备有书案与床榻的小书房,若男主人宴请晚归可从阳台动线直接进入这里, 这份对现代生活节奏与亲密关系的深刻洞察,超越简单的功能隔断,是一种优雅的共情智慧。 三亚·超级地中海·憘悦 这里,不止是610㎡的家宅,更是海岸天际线作背景的生命底色。是一个永不散场的私人俱乐部,一座传承给未来的藏品。 特别鸣谢:复星 项目名称:超级地中海·憘悦 项目地点:三亚·海棠湾 天际610样板间设计:召禾设计 项目摄影:朱海 |
精华推荐
换一换




发表评论0