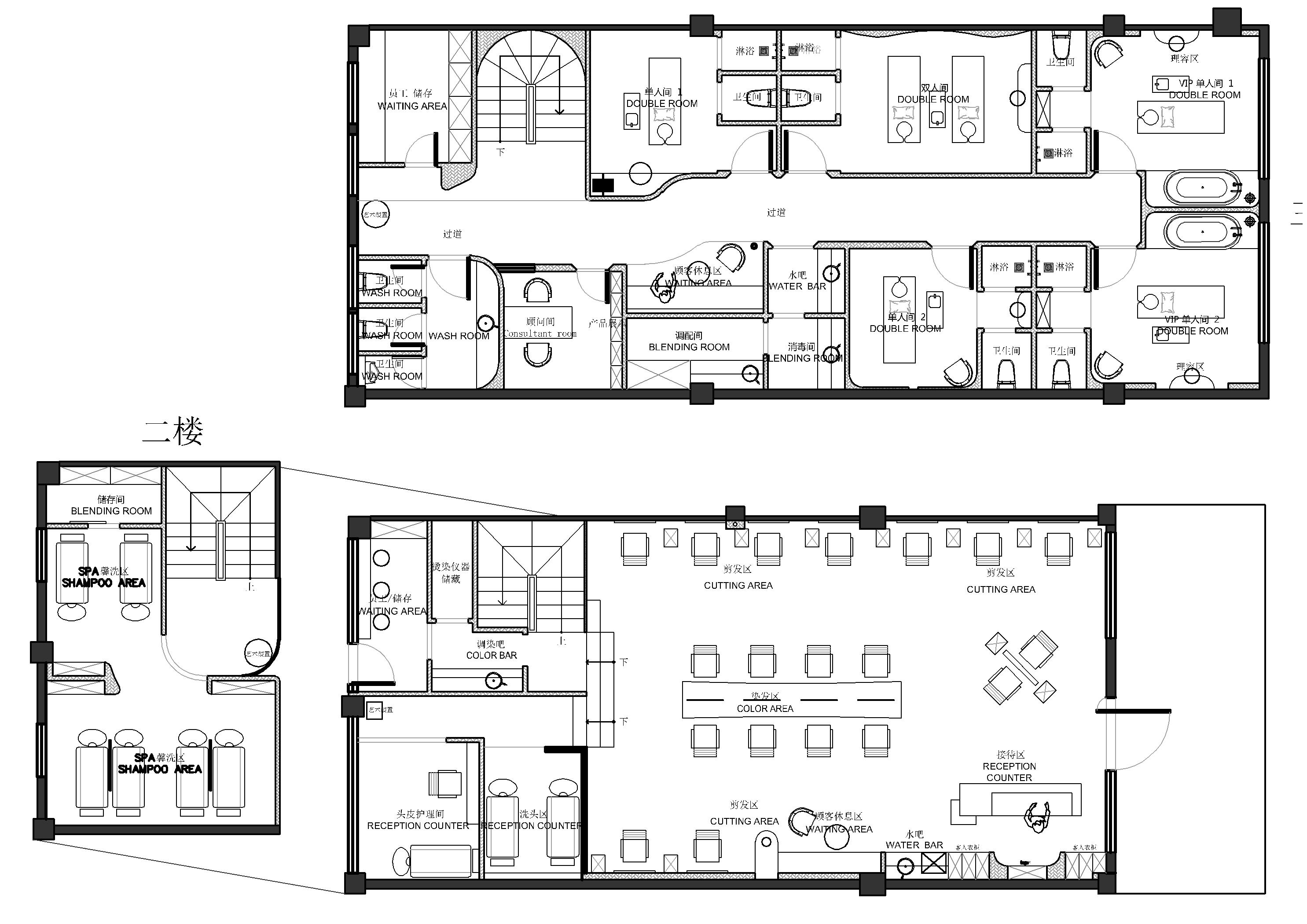
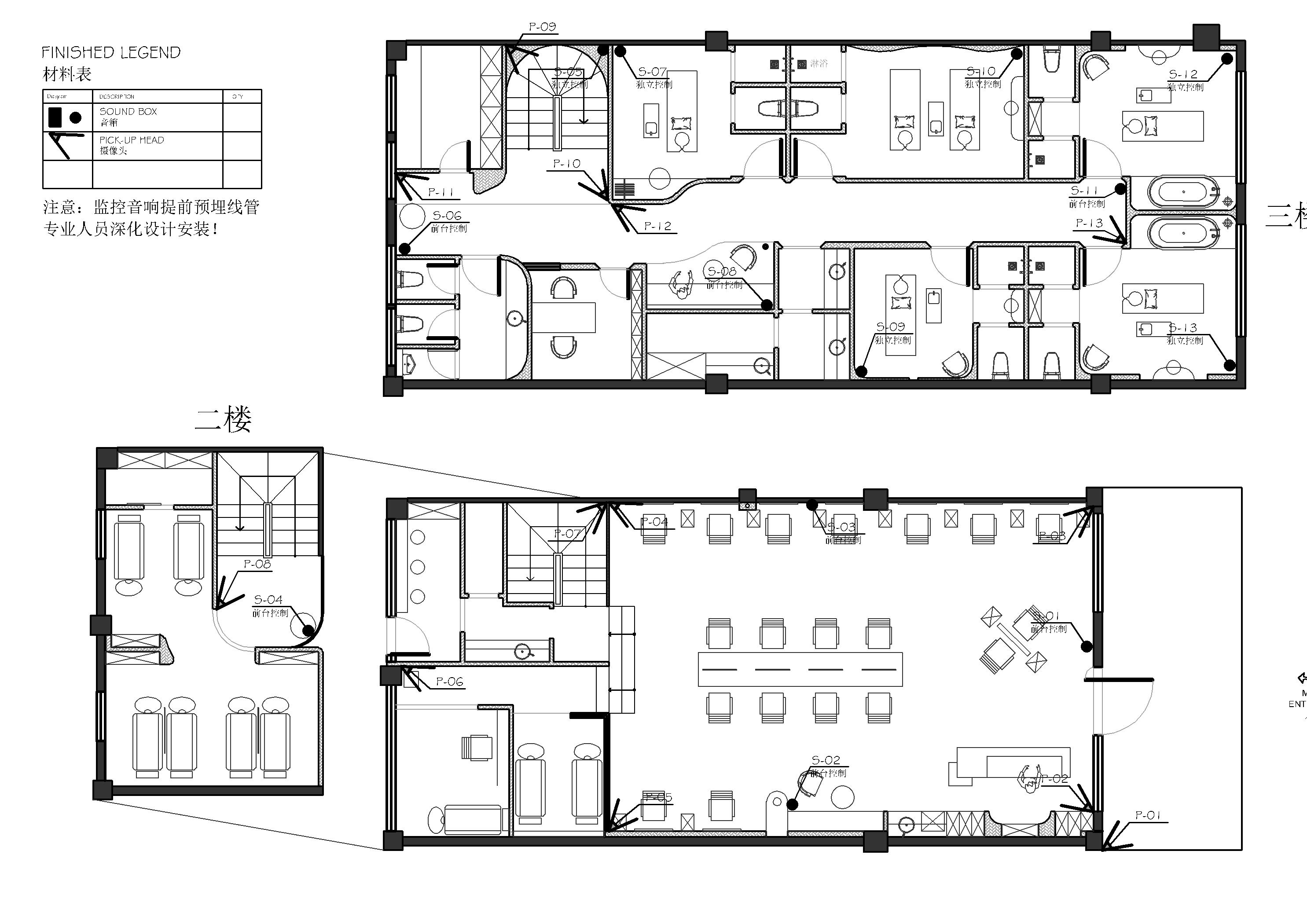
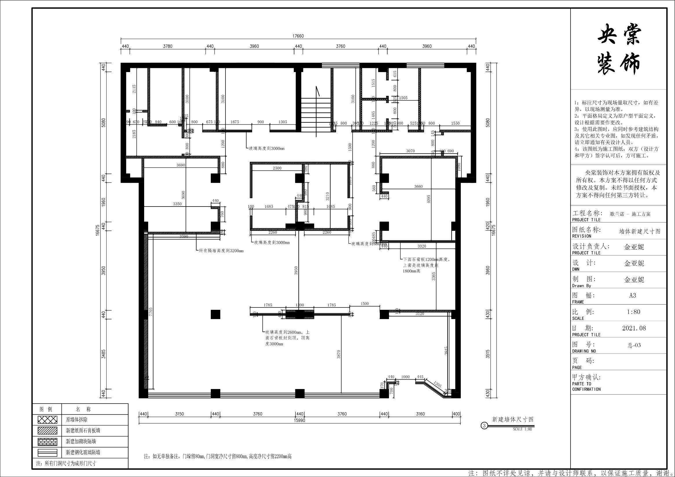
现代创意美容理发歌兰诺理发店施工图效果图

2026-4-1/ CAD图纸/ 商业空间/ 只看大图 阅读模式
仅供分享不做任何商业用途,版权归原作者所有,谢谢配合。

马上注册,结交更多好友,享用更多功能,让你轻松玩转社区。

您需要 登录 才可以下载或查看,没有帐号? 注册

x
1 (1).jpeg 1 (7).jpeg
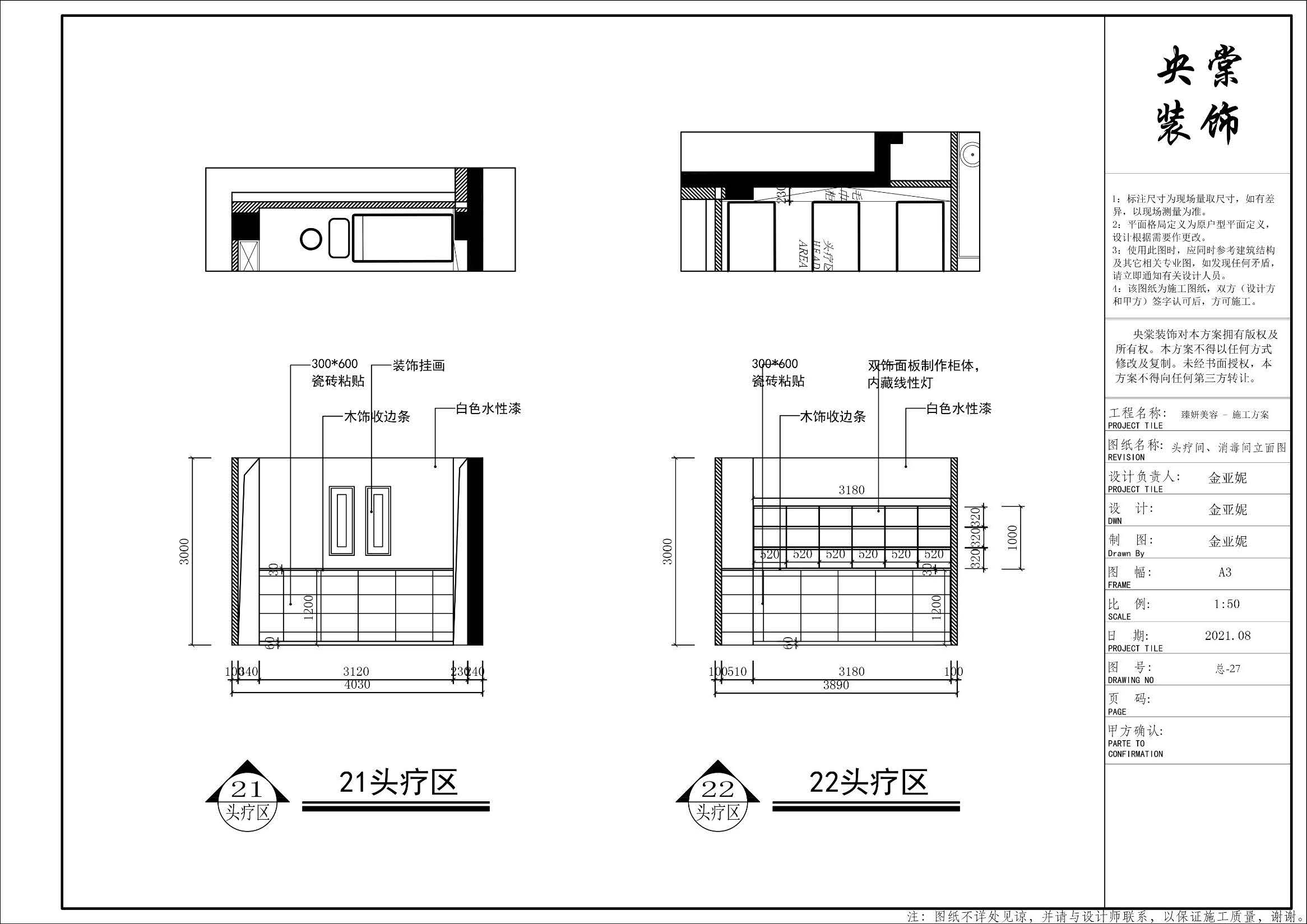
歌兰诺施工文件_页面_32.jpg
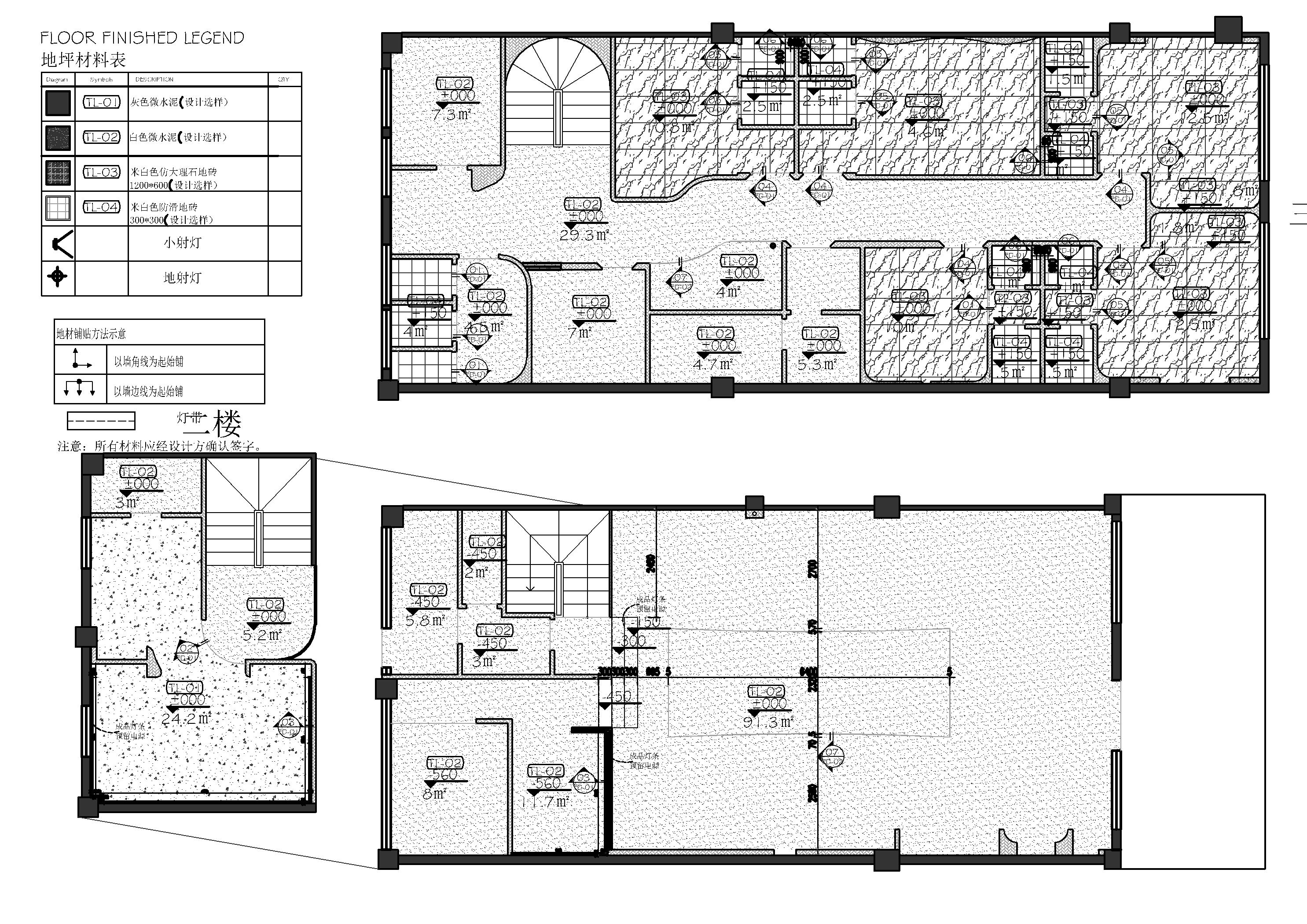
歌兰诺施工文件_页面_14.jpg
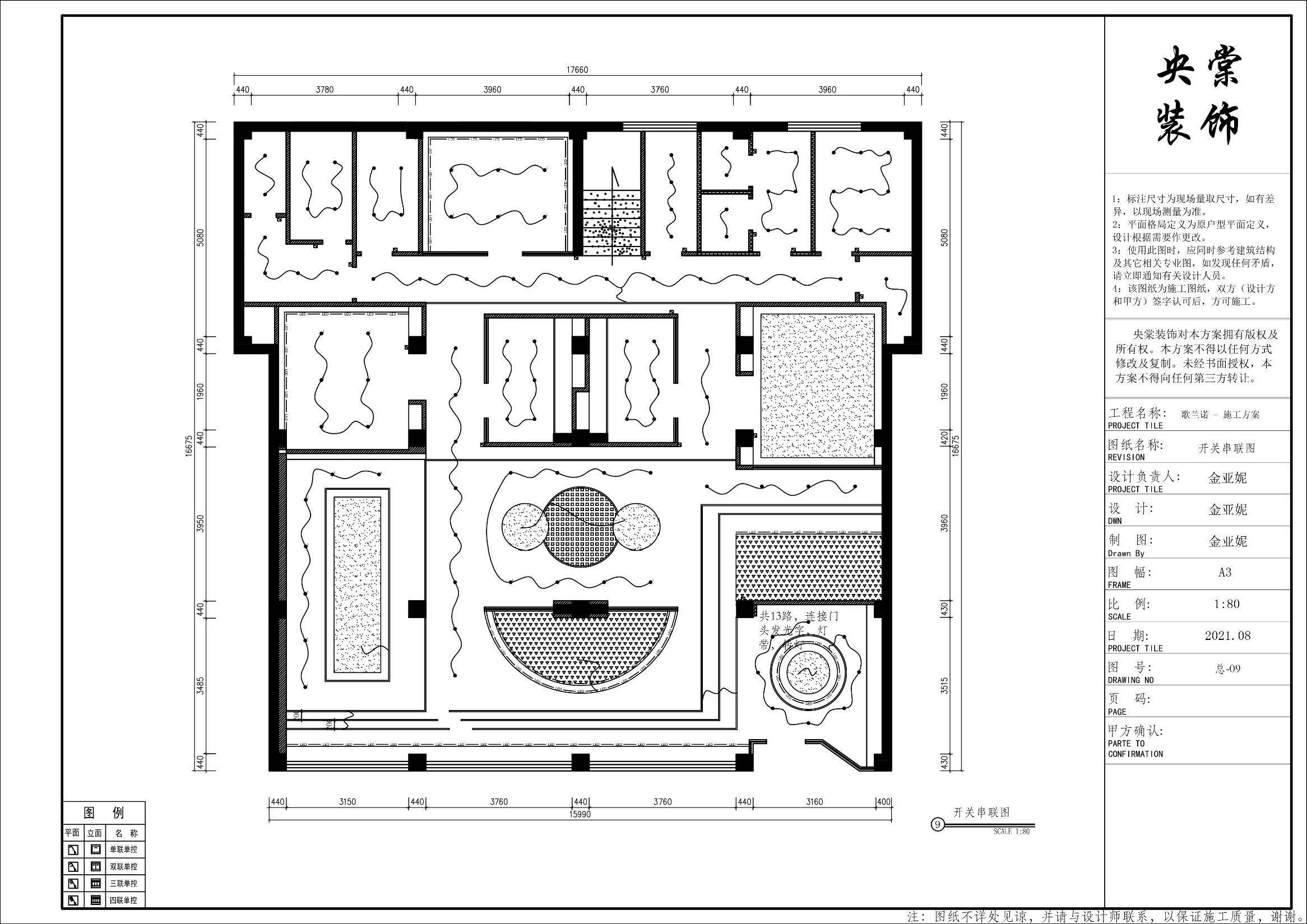
歌兰诺施工文件_页面_10.jpg
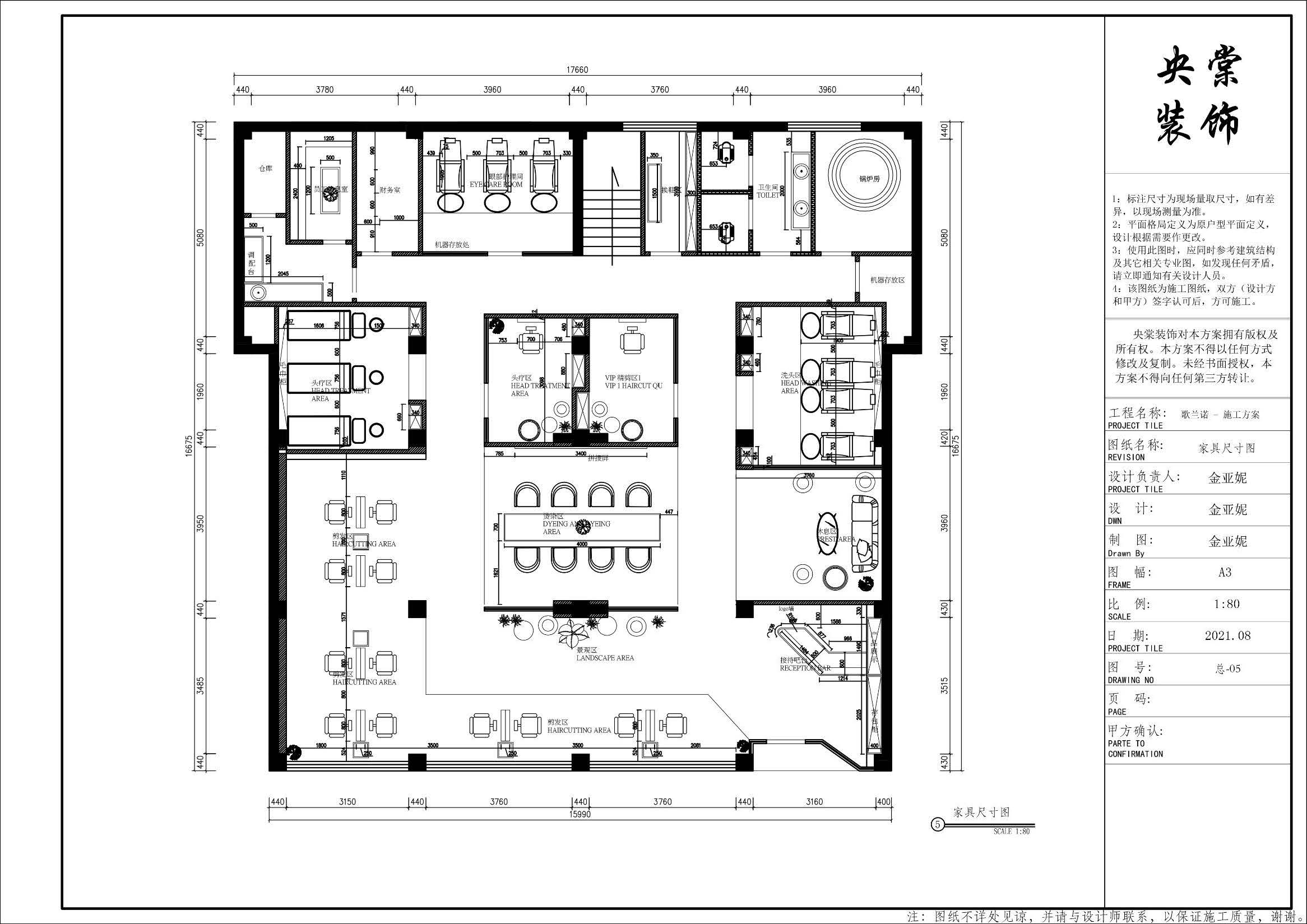
歌兰诺施工文件_页面_08.jpg
1 (5).jpeg
1 (4).jpeg
5.jpg
4.jpg
3.jpg
2.jpg
1.jpg

 

现代创意美容理发施工图 效果图.rar

98.24 MB, 下载次数: 1

售价: 5 交易币

现代歌兰诺理发店施工图 效果图.rar

31.2 MB, 下载次数: 1

售价: 5 交易币

精华推荐
换一换

发表评论0

现代创意美容理发歌兰诺理发店施工图效果图
拓者推荐
  • 朴悦-华润小径湾-悦海白兰墅
  • 琚宾-杭州保亿观云钱塘城
  • 召禾设计-上海汤臣君品
  • CCD-华润置地南通澐璟
  • HBA&DAS-中海江南玖序
  • CCD-华润 CCBD 889㎡设计方案
  • 【召禾设计]天际江景超大平层方案
  • 【WSD世尊】建发·云启玉诸
  • CCD-华润玺宸上院中叠样板间
  • CCD-武汉绿城外滩玫瑰园别墅
  • 2025拓者年费+案例Vip会员说明!
  • 【 拓者年费--CAD图纸】
  • 【 拓者年费--户型方案】
  • 【 拓者年费--豪宅视频】
  • 【 拓者年费--灵感图库】