i Go·平面方案户型优化周刊254期 ▏250㎡大平层:23米纵深采光壁垒 用设计破局

3 小时前/ 户型方案/ 户型交流/ 只看大图 阅读模式
仅供分享不做任何商业用途,版权归原作者所有,谢谢配合。

马上注册,结交更多好友,享用更多功能,让你轻松玩转社区。

您需要 登录 才可以下载或查看,没有帐号? 注册

x
“关注i Go,每周学习一个户型改造小技巧”



项目属性/平层/毛坯
项目套内面积/250
执行设计/i Go空间设计事务所

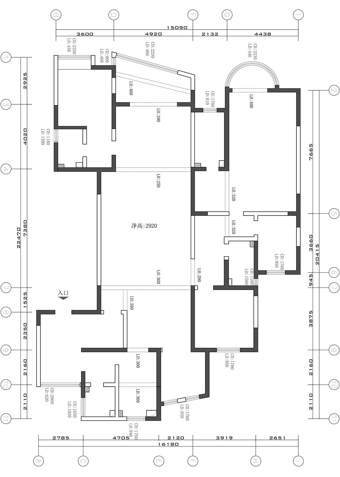
原始户型
Party A's demand.
原始.jpg

甲方需求-
Demand of Party A.
1:需要俩个小孩房,一间书房(男女主用),还需要一间客房,偶尔客人留宿
2:想要一个品酒区,吧台、酒架
3:不考虑浴缸,不考虑保姆间
4:餐厅要大圆桌
5:其他设计师随意发挥,要做不一样,有意思


优化方案
Optimization scheme.
水印1.jpg

细节展示
Detail display
水印2.jpg

细节展示
Detail display
水印3.jpg

细节展示
Detail display
水印4.jpg
i Go 业务合作
高级定制户型优化合作 | 全案设计托管服务
服务全国设计师
行业首创—九大托管服务为您的全案项目保驾护航
您负责谈单 赚设计费 掌控全场
我们全力辅助 帮助全国设计师签单
官方微信:1131477025
-官方抖音:iGo户型优化(关注抖音 看最新案例)
-官方抖音:i Go户型优化
-官方小红书:i Go户型优化
微信公众号:iGo户型优化
*本文以及方案均为i Go原创 禁止转载 分享至其他平台
精华推荐
换一换

发表评论0

i Go·平面方案户型优化周刊254期 ▏250㎡大平层:23米纵深采光壁垒 用设计破局
拓者推荐
  • 孟也新作-七都岛640法式别墅拓者空 600㎡极简别墅
  • 【武汉站—“樱”你而来】获客实操
  • 【武汉站—“樱”你而来】户型优化
  • 【武汉站—“樱”你而来】风水
  • LSD-宁波鳳栖雲庐合院样板间
  • CCD-华润 CCBD 889㎡设计方案
  • 孟也新作-七都岛640法式别墅
  • 【WSD世尊】建发·云启玉诸
  • 苏州绿城樾庐合院样板房
  • 无间设计-上海万科中兴傲舍
  • 2025拓者年费+案例Vip会员说明!
  • 【 拓者年费--CAD图纸】
  • 【 拓者年费--户型方案】
  • 【 拓者年费--豪宅视频】
  • 【 拓者年费--灵感图库】